さいたまの貸事務所から希望エリアの物件を検索!
0120-33-9533
ご相談、お問合せ

お問合せはこちら

※ご入居を検討されているお客様向けの情報サイトです。
※駐車場単体・管理会社・テナントに関するお問合せにはお応えいたしかねます。
ご相談、お問合せ
0120-33-9533
※ご入居を検討されているお客様向けの情報サイトです。
※駐車場単体・管理会社・テナントに関するお問合せにはお応えいたしかねます。

の(60~80坪)の貸事務所・賃貸オフィス一覧

 
 

総数:18棟(28件)
  • 1
UPROVEMENTの外観
物件番号:083447
更新日:2026/4/16
豊島区南池袋2-17-7
【竣工】2025/6
【階建て】地上13F
【最寄駅】
池袋駅2分
【耐震】 新耐震
【基準階】 71.88坪 【エントランス】 全日開放(制限有)
【駐車場】 - 【エレベーター】 2基
UPROVEMENTは、東京都豊島区南池袋2丁目に位置する新築のオフィスビルで、住所は東京都豊島区南池袋2-17-7です。2025年6月に竣工したこのビルは、最新の設備とデザインを取り入れた地上13階建て…
図面 階数 面積 賃料(共益費込)
(坪単価)
保証金/敷金 礼金 入居可能日
6階 G 71.88坪
(237.62m2)
2,372,040
(33,000)
(未公開) 即日
8階 G 71.88坪
(237.62m2)
2,372,040
(33,000)
(未公開) 即日
10階 G 71.88坪
(237.62m2)
2,372,040
(33,000)
(未公開) 即日
11階 G 71.88坪
(237.62m2)
2,372,040
(33,000)
(未公開) 即日

4件を確認する

NBF池袋イーストビルの外観
物件番号:027238
更新日:2026/4/15
豊島区東池袋3-4-3
【竣工】1993/4
【階建て】地上14F 、地下1F
【最寄駅】
東池袋駅6分
池袋駅7分
【耐震】 新耐震
【基準階】 244.91坪 【エントランス】 全日開放(制限有)
【駐車場】 有り 【エレベーター】 5基
NBF池袋イーストビルは、豊島区東池袋3-4-3にある物件です。徒歩6分圏内で東京メトロ有楽町線の東池袋駅、徒歩7分圏内でJR山手線・JR埼京線・東京メトロ丸ノ内線・西武池袋線の池袋駅が利用可能…
図面 階数 面積 賃料(共益費込)
(坪単価)
保証金/敷金 礼金 入居可能日
3階 N 71.82坪
(237.42m2)
(未公開) (未公開) 2026/6/1
HI池袋ビルの外観
物件番号:027506
更新日:2026/4/17
豊島区南池袋3-9-7
【竣工】1992/8
【階建て】地上8F 、地下1F
【最寄駅】
池袋駅5分
東池袋駅7分
【耐震】 新耐震
【基準階】 72.13坪 【エントランス】 平日のみ開放
【駐車場】 有り 【エレベーター】 2基
HI池袋ビルは、東京都豊島区南池袋3-9-7に位置するオフィスビルです。西武池袋線「池袋」駅から徒歩5分、JR山手線・JR埼京線・丸ノ内線の「池袋」駅から徒歩7分、有楽町線「東池袋」駅から徒歩7…
図面 階数 面積 賃料(共益費込)
(坪単価)
保証金/敷金 礼金 入居可能日
2階 G 77.54坪
(256.33m2)
(未公開) 8ヶ月 2026/8
予定
本澤ビルの外観
物件番号:060114
更新日:2026/4/23
豊島区駒込1-28-16
【竣工】1992/7
【階建て】地上8F
【最寄駅】
駒込駅2分
【耐震】 新耐震
【基準階】 67.90坪 【エントランス】 オートロック
【駐車場】 無し 【エレベーター】 1基
本澤ビルは、東京都豊島区駒込1丁目に位置する地上8階建ての賃貸オフィスビルです。1992年7月に竣工し、新耐震基準に適合した鉄骨鉄筋コンクリート造(SRC造)によって設計されています。耐震性…
図面 階数 面積 賃料(共益費込)
(坪単価)
保証金/敷金 礼金 入居可能日
2階 G 66.97坪
(221.39m2)
1,385,000
(20,681)
6ヶ月 1.0ヶ月 2026/6
中旬
池袋KSビルの外観
物件番号:027270
更新日:2026/4/21
豊島区東池袋3-23-13
【竣工】1992/1
【階建て】地上8F 、地下1F
【最寄駅】
向原駅5分
東池袋駅9分
大塚駅10分
【耐震】 新耐震
【基準階】 64.12坪 【エントランス】 平日・土開放
【駐車場】 有り 【エレベーター】 1基
池袋エリアに建つ「池袋KSビル」は、春日通り沿いに位置し、視認性に優れた賃貸オフィスビルです。東京都豊島区東池袋3-23-13に所在し、全面ガラス張りのスタイリッシュな外観が印象的で、企業の…
図面 階数 面積 賃料(共益費込)
(坪単価)
保証金/敷金 礼金 入居可能日
3階 G 64.12坪
(211.96m2)
1,130,000
(17,623)
6ヶ月 即日
4階 G 64.12坪
(211.96m2)
1,130,000
(17,623)
6ヶ月 即日
8階 G 63.05坪
(208.43m2)
1,130,000
(17,922)
6ヶ月 2026/8
上旬
いちご川崎ビルの外観
物件番号:044044
更新日:2026/4/7
川崎市川崎区東田町1-2-7
【竣工】1990/9
【階建て】地上9F 、地下2F
【最寄駅】
川崎駅6分
京急川崎駅8分
【耐震】 新耐震
【基準階】 131.47坪 【エントランス】 平日・土開放
【駐車場】 有り 【エレベーター】 3基
川崎駅エリア。シャープな重厚感のある外観と気品あるオフィスビル。いちご川崎ビルは、川崎市川崎区東田町、JR川崎駅、京急本線・京急川崎駅より徒歩6分圏内の立地です。新川通りに面しており、…
図面 階数 面積 賃料(共益費込)
(坪単価)
保証金/敷金 礼金 入居可能日
2階 G 64.66坪
(213.75m2)
(未公開) 10ヶ月 即日
6階 G 69.04坪
(228.24m2)
(未公開) 10ヶ月 2026/8/1
JRE南池袋ビルの外観
物件番号:027411
更新日:2026/4/6
豊島区南池袋1-13-23
【竣工】1989/12(改修:2007)
【階建て】地上8F 、地下1F
【最寄駅】
池袋駅6分
【耐震】 新耐震
【基準階】 250.94坪 【エントランス】 平日・土開放
【駐車場】 有り 【エレベーター】 2基
JRE南池袋ビルは、豊島区南池袋1丁目に位置するハイグレードな賃貸オフィスビルです。明治通りに面した角地に立地しており、視認性に優れたロケーションが魅力です。車でのアクセスも良好で、来…
図面 階数 面積 賃料(共益費込)
(坪単価)
保証金/敷金 礼金 入居可能日
7階 G 69.96坪
(231.27m2)
(未公開) 12ヶ月 2026/10/1
東信東池袋ビルの外観
物件番号:027325
更新日:2026/4/21
豊島区東池袋5-44-15
【竣工】1989/11
【階建て】地上7F 、地下1F
【最寄駅】
向原駅3分
新大塚駅4分
大塚駅5分
【耐震】 新耐震
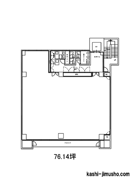
【基準階】 76.14坪 【エントランス】 平日・土開放
【駐車場】 有り 【エレベーター】 1基
東信東池袋ビルは、豊島区東池袋5-44-15にある物件です。徒歩3分圏内で都電荒川線の向原駅、徒歩4分圏内で東京メトロ丸ノ内線の新大塚駅、徒歩5分圏内でJR山手線の大塚駅、都電荒川線の大塚駅前…
図面 階数 面積 賃料(共益費込)
(坪単価)
保証金/敷金 礼金 入居可能日
5階 G 76.14坪
(251.70m2)
(未公開) 12ヶ月 即日
川崎テックセンターの外観
物件番号:045509
更新日:2026/4/13
川崎市幸区堀川町580-16
【竣工】1988/2
【階建て】地上20F 、地下3F
【最寄駅】
京急川崎駅6分
川崎駅8分
【耐震】 新耐震
【基準階】 360.29坪 【エントランス】 平日・土開放
【駐車場】 有り 【エレベーター】 11基
川崎テックセンターは、川崎市幸区堀川町580-16に位置する、利便性と機能性を兼ね備えたハイグレードオフィスビルです。最寄りの交通機関には、京急本線の「京急川崎駅」から徒歩6分、JR京浜東北…
図面 階数 面積 賃料(共益費込)
(坪単価)
保証金/敷金 礼金 入居可能日
13階 N 79.98坪
(264.40m2)
(未公開) (未公開) 即日
興和川崎西口ビルの外観
物件番号:039690
更新日:2026/4/6
川崎市幸区堀川町66-2
【竣工】1988/2
【階建て】地上21F 、地下2F
【最寄駅】
京急川崎駅6分
川崎駅7分
【耐震】 新耐震
【基準階】 595.19坪 【エントランス】 平日・土開放
【駐車場】 有り 【エレベーター】 13基
興和川崎西口ビルは、川崎市幸区堀川町66-2に位置する重厚感あふれる大型オフィスビルです。1998年に竣工されたこのビルは、鉄骨鉄造で地下2階、地上21階建ての構造となっており、新耐震基準を満…
図面 階数 面積 賃料(共益費込)
(坪単価)
保証金/敷金 礼金 入居可能日
3階 N 63.51坪
(209.95m2)
(未公開) 12ヶ月 即日
3階 N 64.09坪
(211.87m2)
(未公開) 12ヶ月 即日
明治安田生命川崎ビルの外観
物件番号:042362
更新日:2026/4/30
川崎市川崎区宮本町6
【竣工】1983/9
【階建て】地上13F 、地下1F
【最寄駅】
京急川崎駅6分
川崎駅8分
【耐震】 新耐震
【基準階】 188.06坪 【エントランス】 平日・土開放
【駐車場】 有り 【エレベーター】 3基
川崎市役所隣接、重厚感あるデザインが目を惹くオフィスビルです。明治安田生命川崎ビルは、川崎市川崎区宮本町6に位置し、京急本線の京急川崎駅から徒歩6分、JR京浜東北線・東海道本線・南武線…
図面 階数 面積 賃料(共益費込)
(坪単価)
保証金/敷金 礼金 入居可能日
6階 N 79.78坪
(263.74m2)
(未公開) 12ヶ月 即日
タカセビル別館の外観
物件番号:027150
更新日:2026/4/30
豊島区東池袋1-25-9
【竣工】1983/5
【階建て】地上9F
【最寄駅】
東池袋駅5分
池袋駅7分
【耐震】
【基準階】 70.54坪 【エントランス】 平日のみ開放
【駐車場】 有り 【エレベーター】 1基
タカセビル別館は、東京都豊島区東池袋1-25-9に位置する利便性の高いオフィスビルです。有楽町線の東池袋駅から徒歩3分、JR山手線、埼京線、西武池袋線の池袋駅から徒歩5分という非常に便利な立…
図面 階数 面積 賃料(共益費込)
(坪単価)
保証金/敷金 礼金 入居可能日
2階 G 70.54坪
(233.19m2)
1,213,288
(17,200)
10ヶ月 即日
3階 G 70.54坪
(233.19m2)
1,213,288
(17,200)
10ヶ月 2027/4/1
日本生命川崎ビルの外観
物件番号:038734
更新日:2026/4/27
川崎市川崎区南町1-1
【竣工】1981/6(改修:2006)
【階建て】地上12F 、地下1F
【最寄駅】
川崎駅5分
京急川崎駅5分
【耐震】 旧耐震+補強済 or 基準OK
【基準階】 235.00坪 【エントランス】 平日・土開放
【駐車場】 有り 【エレベーター】 4基
日本生命川崎ビルは、神奈川県川崎市川崎区南町1-1に位置する、大規模で機能的なオフィスビルです。1981年6月に竣工したこのビルは、地上12階・地下1階建てのSRC(鉄骨鉄筋コンクリート)造で、…
図面 階数 面積 賃料(共益費込)
(坪単価)
保証金/敷金 礼金 入居可能日
10階 N 76.70坪
(253.56m2)
(未公開) 12ヶ月 即日
大晴ビルの外観
物件番号:040142
更新日:2026/4/9
豊島区西池袋3-25-2
【竣工】1976(改修:2025)
【階建て】地上5F
【最寄駅】
池袋駅2分
【耐震】 旧耐震
【基準階】 53.72坪 【エントランス】 全日開放(制限有)
【駐車場】 無し 【エレベーター】 1基
大晴ビルは、1976年竣工の商業ビルです。最寄り駅は、JR山手線、JR埼京線、東京メトロ丸ノ内線、東京メトロ有楽町線、さらに東武東上線の池袋駅で、いずれの路線も徒歩2分という絶好の立地条件を…
図面 階数 面積 賃料(共益費込)
(坪単価)
保証金/敷金 礼金 入居可能日
2階 G 64.43坪
(212.99m2)
1,159,740
(18,000)
6ヶ月 1.0ヶ月 2026/7/1
山の手ビル東館の外観
物件番号:027458
更新日:2026/4/24
豊島区南池袋1-19-12
【竣工】1974/1(改修:2010)
【階建て】地上12F 、地下1F
【最寄駅】
池袋駅2分
【耐震】 旧耐震+補強済 or 基準OK
【基準階】 79.94坪 【エントランス】 全日開放(制限有)
【駐車場】 無し 【エレベーター】 1基
東京都豊島区南池袋に位置する「山の手ビル東館」は、オフィス物件をお探しの企業様にとって非常に魅力的な選択肢です。池袋駅から徒歩2分というアクセスの良さが大きな特長であり、西武池袋線、…
図面 階数 面積 賃料(共益費込)
(坪単価)
保証金/敷金 礼金 入居可能日
8階 G 60.07坪
(198.58m2)
1,291,505
(21,500)
6ヶ月 即日
9階 G 60.07坪
(198.61m2)
1,291,505
(21,500)
6ヶ月 即日
10階 G 60.07坪
(198.61m2)
1,291,505
(21,500)
6ヶ月 即日
巣鴨第一ビルの外観
物件番号:057333
更新日:2026/4/27
豊島区巣鴨2-11-5
【竣工】1973/12
【階建て】地上8F
【最寄駅】
巣鴨駅3分
新庚申塚駅10分
大塚駅12分
【耐震】 旧耐震
【基準階】 32.98坪 【エントランス】 平日のみ開放
【駐車場】 無し 【エレベーター】 1基
東京都豊島区巣鴨2丁目に位置する巣鴨第一ビルは、巣鴨駅から徒歩圏内にある利便性の高い賃貸オフィスビルです。都営三田線巣鴨駅から徒歩3分、JR山手線巣鴨駅から徒歩5分と、2路線が利用できる…
図面 階数 面積 賃料(共益費込)
(坪単価)
保証金/敷金 礼金 入居可能日
1-2階 G 64.64坪
(213.70m2)
1,100,000
(17,017)
3ヶ月 2.0ヶ月 相談
藤久ビル西2号館の外観
物件番号:040421
更新日:2026/4/14
豊島区西池袋3-28-1
【竣工】1970/12
【階建て】地上8F 、地下1F
【最寄駅】
池袋駅1分
【耐震】 旧耐震+補強済 or 基準OK
【基準階】 76.42坪 【エントランス】 全日開放(制限有)
【駐車場】 無し 【エレベーター】 1基
藤久ビル西2号館は、東京都豊島区西池袋3-28-1に位置するアクセス抜群のオフィスビルです。池袋駅から徒歩1分という近さで、丸ノ内線、有楽町線、副都心線の各駅に直結。さらに、JR山手線や埼京…
図面 階数 面積 賃料(共益費込)
(坪単価)
保証金/敷金 礼金 入居可能日
4階 G 76.42坪
(252.64m2)
1,528,400
(20,000)
10ヶ月 即日
タカセセントラルビルの外観
物件番号:027330
更新日:2026/4/30
豊島区東池袋1-1-4
【竣工】1962/5(改修:1992)
【階建て】地上10F 、地下1F
【最寄駅】
池袋駅1分
【耐震】 旧耐震
【基準階】 76.34坪 【エントランス】 全日開放(制限有)
【駐車場】 無し 【エレベーター】 3基
豊島区東池袋1丁目にある、タカセセントラルビルです。最寄駅は、池袋駅です。JR山手線・JR埼京線・東京メトロ丸ノ内線・東京メトロ有楽町線・東京メトロ副都心線等が徒歩1分圏内でアクセス可能…
図面 階数 面積 賃料(共益費込)
(坪単価)
保証金/敷金 礼金 入居可能日
B1階 G 64.56坪
(213.42m2)
1,433,232
(22,200)
10ヶ月 即日

※取引態様:媒介
※フロア図面と現況が異なる場合は現況を優先いたします。
※貸室内部の写真・貸室からの景色に関しては、現在の募集フロアと異なる場合がございます。

総数:18棟(28件)
  • 1

(さいたま)の賃料相場

(さいたま)エリアの平均賃料

で募集している物件の、1坪あたりの賃料(共益費を含む)の平均価格です。
数値の右側にある矢印は、一週間前の数値と比較した結果を表しています。
賃料価格は毎日集計をしている最新の値です。

  • 2040 未調査
  • 4060 未調査
  • 60100 未調査
  • 100坪以上 未調査

(さいたま)エリアの募集賃料

の1坪あたりの賃料(共益費を含む)価格帯ごとの募集物件数です。
表の数値をクリックすると募集物件の一覧表が表示します。

【2026/04/30更新】