さいたまの貸事務所から希望エリアの物件を検索!
0120-33-9533
ご相談、お問合せ

お問合せはこちら

※ご入居を検討されているお客様向けの情報サイトです。
※駐車場単体・管理会社・テナントに関するお問合せにはお応えいたしかねます。
ご相談、お問合せ
0120-33-9533
※ご入居を検討されているお客様向けの情報サイトです。
※駐車場単体・管理会社・テナントに関するお問合せにはお応えいたしかねます。

の貸事務所・賃貸オフィス一覧

 
 

総数:82棟(151件)
IT TOWER TOKYOの外観
物件番号:081624
更新日:2025/12/5
豊島区西池袋3-28-4
【竣工】2025/12
【階建て】地上27F 、地下4F
【最寄駅】
池袋駅1分
【耐震】 新耐震+制震
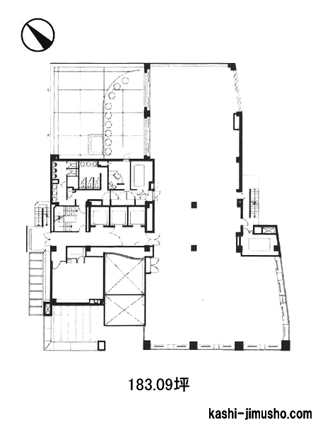
【基準階】 291.37坪 【エントランス】 平日のみ開放
【駐車場】 有り 【エレベーター】 5基
東京都豊島区西池袋3丁目に位置するIT TOWER TOKYOは、2025年12月に竣工のオフィスビルです。池袋駅からのアクセスに非常に優れており、副都心線池袋駅からは徒歩1分、JR山手線・埼京線、東武東…
図面 階数 面積 賃料(共益費込)
(坪単価)
保証金/敷金 礼金 入居可能日
10階 N 291.37坪
(963.21m2)
(未公開) 12ヶ月 相談
21階 N 291.37坪
(963.21m2)
(未公開) 12ヶ月 2026/1
22階 N 291.37坪
(963.21m2)
(未公開) 12ヶ月 2026/1
23階 N 291.37坪
(963.21m2)
(未公開) 12ヶ月 2026/1
24階 N 291.37坪
(963.21m2)
(未公開) 12ヶ月 2026/1
25階 N 291.37坪
(963.21m2)
(未公開) 12ヶ月 2026/1

6件を確認する

UPROVEMENTの外観
物件番号:083447
更新日:2025/11/19
豊島区南池袋2-17-7
【竣工】2025/6
【階建て】地上13F
【最寄駅】
池袋駅2分
【耐震】 新耐震
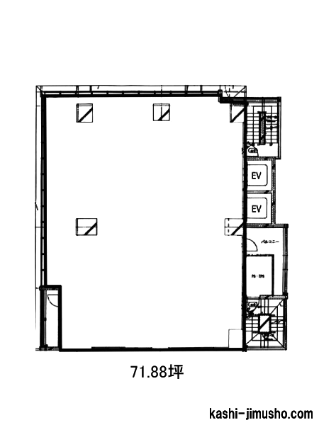
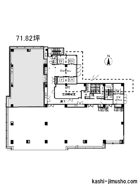
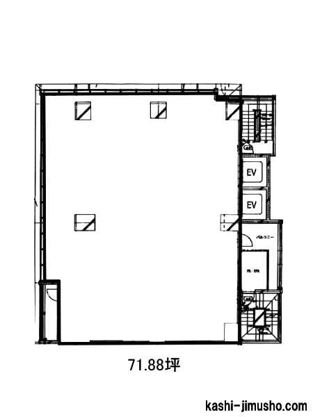
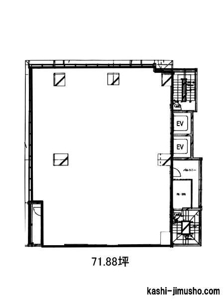
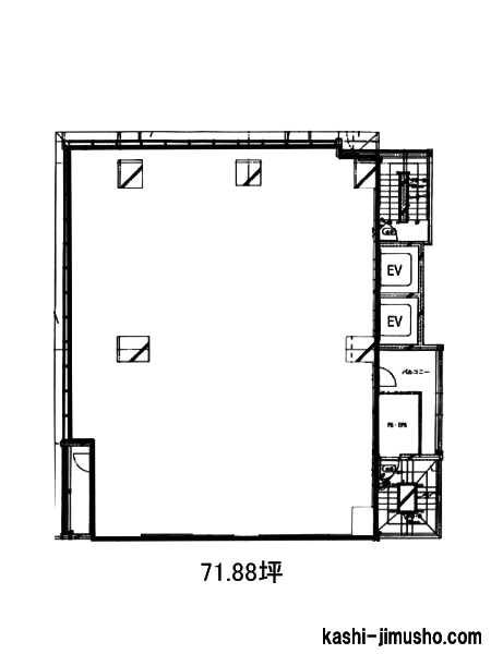
【基準階】 71.88坪 【エントランス】
【駐車場】 - 【エレベーター】 2基
UPROVEMENTは、東京都豊島区南池袋2丁目に位置する新築のオフィスビルで、住所は東京都豊島区南池袋2-17-7です。2025年6月に竣工したこのビルは、最新の設備とデザインを取り入れた地上13階建て…
図面 階数 面積 賃料(共益費込)
(坪単価)
保証金/敷金 礼金 入居可能日
6階 G 71.88坪
(237.62m2)
2,372,040
(33,000)
(未公開) (未公開) 相談
7階 G 71.88坪
(237.62m2)
2,372,040
(33,000)
(未公開) (未公開) 相談
8階 G 71.88坪
(237.62m2)
2,372,040
(33,000)
(未公開) (未公開) 相談
10階 G 71.88坪
(237.62m2)
2,372,040
(33,000)
(未公開) (未公開) 相談

4件を確認する

大塚carnaの外観
物件番号:082102
更新日:2025/12/2
豊島区南大塚3-34
【竣工】2024/9
【階建て】地上10F 、地下1F
【最寄駅】
大塚駅1分
大塚駅前駅1分
【耐震】 新耐震
【基準階】 41.23坪 【エントランス】 全日開放(制限有)
【駐車場】 無し 【エレベーター】 1基
大塚Carnaは、東京都豊島区南大塚3-34に位置する最新のオフィスビルで、2024年9月に竣工の物件です。JR山手線「大塚駅」と都電荒川線「大塚駅前駅」から徒歩1分という抜群の立地が最大の特徴です…
図面 階数 面積 賃料(共益費込)
(坪単価)
保証金/敷金 礼金 入居可能日
8階 G 41.23坪
(136.30m2)
742,140
(18,000)
5,937,120
(8ヶ月)
1.0ヶ月 即日
PMO池袋の外観
物件番号:080252
更新日:2025/12/9
豊島区東池袋1-25-10
【竣工】2023/5
【階建て】地上12F
【最寄駅】
東池袋駅3分
池袋駅5分
【耐震】 新耐震
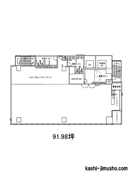
【基準階】 91.98坪 【エントランス】 オートロック
【駐車場】 有り 【エレベーター】 2基
池袋エリアに位置するPMO池袋は、2023年に竣工した最新のハイグレードオフィスビルです。東京都豊島区東池袋1-25-10に所在し、グリーン大通りに面した好立地を誇ります。交通アクセスは非常に便…
図面 階数 面積 賃料(共益費込)
(坪単価)
保証金/敷金 礼金 入居可能日
8階 G 91.98坪
(304.09m2)
(未公開) (未公開) 即日
アウルタワーの外観
物件番号:058831
更新日:2025/11/13
豊島区東池袋4-21-1
【竣工】2011/1
【階建て】地上52F 、地下2F
【最寄駅】
東池袋駅2分
東池袋四丁目駅4分
池袋駅11分
【耐震】 新耐震
【基準階】 286.25坪 【エントランス】 平日・土開放
【駐車場】 有り 【エレベーター】 9基
アウルタワーは、豊島区東池袋4-21-1にある物件です。最寄駅は、東京メトロ有楽町線の東池袋駅です。東池袋駅から地下プロムナードで直結しています。徒歩2分圏内でアクセス可能な好立地です。徒…
図面 階数 面積 賃料(共益費込)
(坪単価)
保証金/敷金 礼金 入居可能日
4階 N 36.75坪
(121.49m2)
900,432
(24,502)
10,804,500
(294,000)
2025/12
上旬
NTT新池袋ビルの外観
物件番号:082561
更新日:2025/11/28
豊島区東池袋3-21-14
【竣工】2008/6
【階建て】地上9F 、地下1F
【最寄駅】
東池袋駅9分
池袋駅10分
東池袋四丁目駅10分
【耐震】 新耐震
【基準階】 298.60坪 【エントランス】 平日のみ開放
【駐車場】 無し 【エレベーター】 5基
NTT新池袋ビルは、東京都豊島区東池袋3-21-14に位置するモダンなオフィスビルです。有楽町線の東池袋駅から徒歩9分、JR山手線や西武池袋線の池袋駅から徒歩10分と、複数路線にアクセス可能な便利…
図面 階数 面積 賃料(共益費込)
(坪単価)
保証金/敷金 礼金 入居可能日
1階 N 225.85坪
(746.61m2)
(未公開) 10ヶ月 2026/8
予定
2階 N 298.60坪
(987.11m2)
(未公開) 10ヶ月 2026/8
予定
3階 N 298.60坪
(987.11m2)
(未公開) 10ヶ月 2026/8
予定
4階 N 298.60坪
(987.11m2)
(未公開) 10ヶ月 2026/8
予定
5階 N 298.60坪
(987.11m2)
(未公開) 10ヶ月 2026/8
予定
6階 N 298.60坪
(987.11m2)
(未公開) 10ヶ月 2026/8
予定
7階 N 298.60坪
(987.11m2)
(未公開) 10ヶ月 2026/8
予定
8階 N 298.60坪
(987.11m2)
(未公開) 10ヶ月 2026/8
予定

8件を確認する

ライズアリーナビルの外観
物件番号:071919
更新日:2025/12/3
豊島区東池袋4-5-2
【竣工】2007/1
【階建て】地上15F 、地下2F
【最寄駅】
東池袋駅1分
池袋駅9分
【耐震】 新耐震
【基準階】 530.12坪 【エントランス】
【駐車場】 有り 【エレベーター】 8基
豊島区東池袋4丁目にある、ライズアリーナビルです。最寄駅は、東京メトロ有楽町線の東池袋駅です。東池袋駅に直結しているので、雨に濡れずにビル内へアクセス可能な好立地です。JR山手線・JR埼…
図面 階数 面積 賃料(共益費込)
(坪単価)
保証金/敷金 礼金 入居可能日
6階 N 149.45坪
(494.05m2)
(未公開) 12ヶ月 2026/4
ミューザ川崎セントラルタワーの外観
物件番号:043319
更新日:2025/12/4
川崎市幸区大宮町1310
【竣工】2003/12
【階建て】地上27F 、地下2F
【最寄駅】
川崎駅1分
京急川崎駅8分
【耐震】 新耐震+制震
【基準階】 639.78坪 【エントランス】 全日開放(制限有)
【駐車場】 有り 【エレベーター】 16基
ミューザ川崎セントラルタワーは、川崎市幸区大宮町1310に位置する、制振ダンパーを備えたシンボリックなオフィスビルです。物件はJR川崎駅から徒歩1分という至便な場所にあり、JR京浜東北線、JR…
図面 階数 面積 賃料(共益費込)
(坪単価)
保証金/敷金 礼金 入居可能日
24階 N 174.04坪
(575.34m2)
(未公開) 12ヶ月 即日
26階 N 298.52坪
(986.85m2)
(未公開) 12ヶ月 即日
川崎ダイヤビルの外観
物件番号:039687
更新日:2025/12/4
川崎市川崎区砂子2-4-13
【竣工】2002/7
【階建て】地上9F 、地下1F
【最寄駅】
京急川崎駅3分
川崎駅4分
【耐震】 新耐震
【基準階】 171.62坪 【エントランス】
【駐車場】 有り 【エレベーター】 2基
川崎ダイヤビルは、神奈川県川崎市川崎区砂子2丁目に位置する地上9階・地下1階建てのオフィスビルです。2002年7月に竣工し、構造は鉄骨造(S造)です建てられています。新耐震基準に対応しており…
図面 階数 面積 賃料(共益費込)
(坪単価)
保証金/敷金 礼金 入居可能日
5階 N 171.62坪
(567.34m2)
(未公開) (未公開) 2026/4
6階 N 118.01坪
(390.13m2)
(未公開) (未公開) 2026/2
オリックス池袋ビルの外観
物件番号:027525
更新日:2025/12/2
豊島区南池袋1-19-6
【竣工】2002/7
【階建て】地上9F 、地下1F
【最寄駅】
池袋駅3分
東池袋駅3分
【耐震】 新耐震
【基準階】 185.05坪 【エントランス】 全日開放(制限有)
【駐車場】 有り 【エレベーター】 3基
豊島区南池袋1丁目にある、オリックス池袋ビルです。最寄駅は、池袋駅で徒歩3分圏内でアクセス可能な便利な立地となっています。JR山手線・JR埼京線・西武池袋線・東京メトロ丸ノ内線・東京メト…
図面 階数 面積 賃料(共益費込)
(坪単価)
保証金/敷金 礼金 入居可能日
4階 G 186.15坪
(615.37m2)
(未公開) 12ヶ月 2026/4/1
5階 G 186.15坪
(615.37m2)
(未公開) 12ヶ月 2026/4/1
ソリッドスクエアの外観
物件番号:035074
更新日:2025/12/3
川崎市幸区堀川町580
【竣工】1995/5
【階建て】地上24F 、地下2F
【最寄駅】
京急川崎駅3分
川崎駅5分
【耐震】 新耐震
【基準階】 639.66坪 【エントランス】 全日開放(制限有)
【駐車場】 有り 【エレベーター】 28基
ソリッドスクエアは、川崎市幸区堀川町に位置する川崎駅周辺を代表する大型賃貸オフィスビルで、京急本線「京急川崎駅」から徒歩3分圏内、JR「川崎駅」からも徒歩5分圏内という利便性抜群のロケ…
図面 階数 面積 賃料(共益費込)
(坪単価)
保証金/敷金 礼金 入居可能日
2階 N 32.65坪
(107.93m2)
(未公開) 12ヶ月 即日
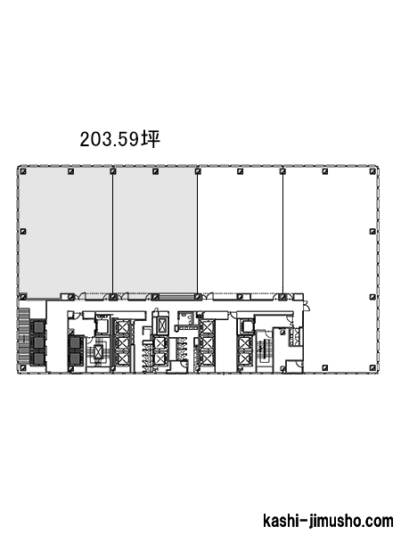
5階 N 320.05坪
(1058.02m2)
(未公開) 12ヶ月 即日
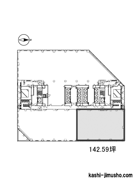
9階 N 142.59坪
(471.37m2)
(未公開) 12ヶ月 2026/1/1
10階 N 142.58坪
(471.35m2)
(未公開) 12ヶ月 2026/5/1
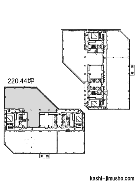
15階 N 220.44坪
(728.72m2)
(未公開) 12ヶ月 即日
15階 N 220.44坪
(728.72m2)
(未公開) 12ヶ月 即日
15階 N 245.07坪
(810.15m2)
(未公開) 12ヶ月 即日
16階 N 220.44坪
(728.73m2)
(未公開) 12ヶ月 即日
16階 N 311.89坪
(1031.04m2)
(未公開) 12ヶ月 即日
17階 N 248.19坪
(820.46m2)
(未公開) 12ヶ月 即日
17階 N 248.19坪
(820.46m2)
(未公開) 12ヶ月 即日
17階 N 311.89坪
(1031.05m2)
(未公開) 12ヶ月 即日
18階 N 176.75坪
(584.30m2)
(未公開) 12ヶ月 即日

13件を確認する

グレイスロータリービルの外観
物件番号:027187
更新日:2025/11/19
豊島区東池袋2-60-3
【竣工】1993/9
【階建て】地上10F 、地下1F
【最寄駅】
池袋駅7分
【耐震】 新耐震
【基準階】 227.75坪 【エントランス】 全日開放(制限有)
【駐車場】 有り 【エレベーター】 3基
グレイスロータリービルは、東京都豊島区東池袋2-60-3に位置する賃貸事務所ビルです。この物件の最大の魅力は、池袋駅から徒歩7分という駅至近の立地と、春日通りに面した視認性の高さにあります…
図面 階数 面積 賃料(共益費込)
(坪単価)
保証金/敷金 礼金 入居可能日
7階 G 182.20坪
(602.32m2)
3,425,360
(18,800)
16,398,000
(6ヶ月)
即日
巣鴨THビルの外観
物件番号:051946
更新日:2025/11/25
豊島区巣鴨1-21-9
【竣工】1993/4
【階建て】地上7F
【最寄駅】
巣鴨駅5分
千石駅5分
駒込駅10分
【耐震】 新耐震
【基準階】 17.48坪 【エントランス】 全日開放(24h)
【駐車場】 無し 【エレベーター】 1基
巣鴨THビルは、東京都豊島区巣鴨1丁目に位置する地上7階建てのオフィスビルです。1993年4月に竣工し、鉄骨造(S造)で建てられており、新耐震基準に適合しています。JR山手線と都営三田線の「巣…
図面 階数 面積 賃料(共益費込)
(坪単価)
保証金/敷金 礼金 入居可能日
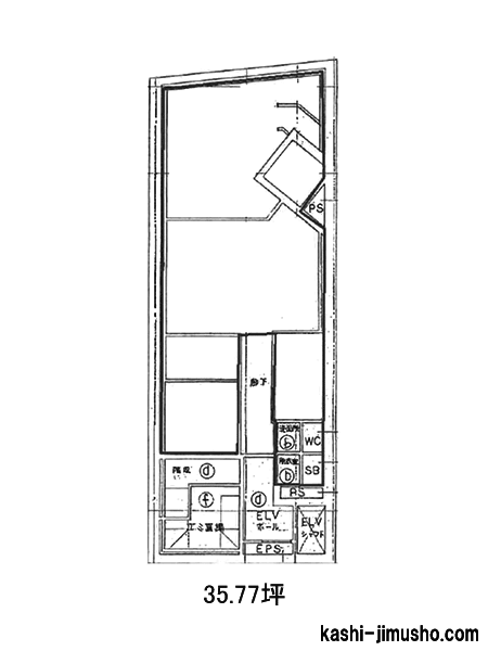
6-7階 G 33.10坪
(109.40m2)
350,000
(10,574)
1,050,000
(3ヶ月)
1.0ヶ月 即日
NBF池袋イーストビルの外観
物件番号:027238
更新日:2025/11/13
豊島区東池袋3-4-3
【竣工】1993/4
【階建て】地上14F 、地下1F
【最寄駅】
東池袋駅6分
池袋駅7分
【耐震】 新耐震
【基準階】 244.91坪 【エントランス】 全日開放(制限有)
【駐車場】 有り 【エレベーター】 5基
NBF池袋イーストビルは、豊島区東池袋3-4-3にある物件です。徒歩6分圏内で東京メトロ有楽町線の東池袋駅、徒歩7分圏内でJR山手線・JR埼京線・東京メトロ丸ノ内線・西武池袋線の池袋駅が利用可能…
図面 階数 面積 賃料(共益費込)
(坪単価)
保証金/敷金 礼金 入居可能日
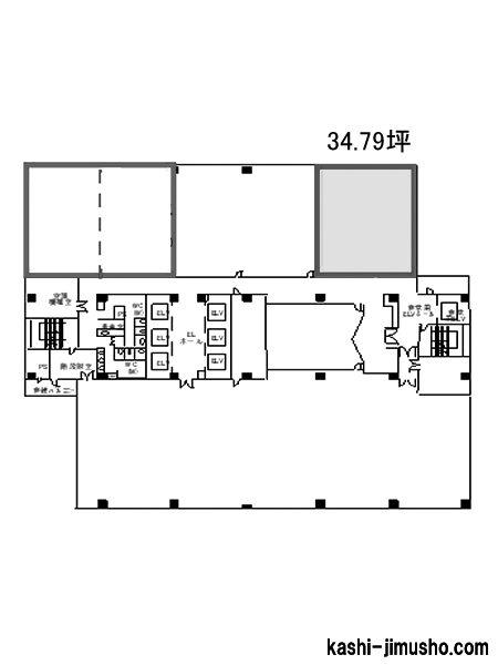
11階 N 71.07坪
(234.94m2)
(未公開) (未公開) 2026/5/1
第2キンズメンビルの外観
物件番号:027166
更新日:2025/12/8
豊島区東池袋4-23-15
【竣工】1993/3
【階建て】地上8F
【最寄駅】
東池袋駅2分
池袋駅8分
【耐震】 新耐震
【基準階】 89.76坪 【エントランス】 平日・土開放
【駐車場】 有り 【エレベーター】 2基
東池袋エリア。サンシャインシティ至近、ガラス張りのインテリジェンスオフィスビル。池袋原ビルは、豊島区東池袋1丁目、最寄り駅は東京メトロ有楽町線・東池袋駅7番出口から徒歩2分圏内です。J…
図面 階数 面積 賃料(共益費込)
(坪単価)
保証金/敷金 礼金 入居可能日
6階 G 89.76坪
(296.74m2)
(未公開) 12ヶ月 2026/2/1
東宝駒込ビルの外観
物件番号:026761
更新日:2025/12/5
豊島区駒込3-3-17
【竣工】1993/3
【階建て】地上7F 、地下1F
【最寄駅】
駒込駅2分
【耐震】 新耐震
【基準階】 51.94坪 【エントランス】
【駐車場】 無し 【エレベーター】 1基
東宝駒込ビルは、豊島区駒込3-3-17にある物件です。最寄駅は、JR山手線・東京メトロ南北線の駒込駅です。徒歩2分圏内でアクセス可能な好立地です。複数路線が利用可能でアクセス良好です。電車の…
図面 階数 面積 賃料(共益費込)
(坪単価)
保証金/敷金 礼金 入居可能日
3階 N 57.15坪
(188.93m2)
914,400
(16,000)
10,972,800
(12ヶ月)
2026/5/1
日本綜合地所大塚ビルの外観
物件番号:026701
更新日:2025/12/3
豊島区北大塚1-13-17
【竣工】1993/3
【階建て】地上5F 、地下1F
【最寄駅】
大塚駅3分
大塚駅前駅3分
新大塚駅8分
【耐震】 新耐震
【基準階】 239.64坪 【エントランス】 平日・土開放
【駐車場】 有り 【エレベーター】 2基
日本綜合地所大塚ビルは、東京都豊島区北大塚1-13-17に建つ地上5階・地下1階のオフィスビルです。1993年3月に竣工し、新耐震基準に適合したSRC造(鉄骨鉄筋コンクリート造)で建てられています。…
図面 階数 面積 賃料(共益費込)
(坪単価)
保証金/敷金 礼金 入居可能日
1階 N 72.70坪
(240.33m2)
1,163,200
(16,000)
7,560,800
(8ヶ月)
1.0ヶ月 2026/1
3階 N 119.55坪
(395.23m2)
1,912,800
(16,000)
12,433,200
(8ヶ月)
1.0ヶ月 即日
ランドマークビルの外観
物件番号:026816
更新日:2025/11/6
豊島区巣鴨3-20-3
【竣工】1993/2
【階建て】地上7F
【最寄駅】
巣鴨駅3分
大塚駅前駅9分
巣鴨新田駅10分
【耐震】 新耐震
【基準階】 37.09坪 【エントランス】 平日のみ開放
【駐車場】 有り 【エレベーター】 1基
ランドマークビルは、東京都豊島区巣鴨3丁目に位置するオフィスビルで、交通の利便性と快適なオフィス環境を兼ね備えた物件です。最寄り駅は都営三田線「巣鴨駅」から徒歩3分、JR山手線「巣鴨駅…
図面 階数 面積 賃料(共益費込)
(坪単価)
保証金/敷金 礼金 入居可能日
3階 G 37.09坪
(122.61m2)
500,000
(13,480)
2,880,000
(6ヶ月)
1.0ヶ月 相談
第3グロビスビルの外観
物件番号:026805
更新日:2025/11/18
豊島区巣鴨1-24-1
【竣工】1992/7(改修:2022)
【階建て】地上6F
【最寄駅】
巣鴨駅4分
駒込駅13分
大塚駅前駅14分
【耐震】 新耐震
【基準階】 45.62坪 【エントランス】 全日開放(制限有)
【駐車場】 有り 【エレベーター】 1基
第3グロビスビルは、東京都豊島区巣鴨1丁目に所在する賃貸オフィスビルです。1992年に竣工し、新耐震基準を満たした鉄筋コンクリート造の地上6階建てで、安心してご利用いただける建物です。基準…
図面 階数 面積 賃料(共益費込)
(坪単価)
保証金/敷金 礼金 入居可能日
3階 G 48.48坪
(160.28m2)
632,000
(13,036)
3,510,000
(6ヶ月)
1.0ヶ月 即日
本澤ビルの外観
物件番号:060114
更新日:2025/11/11
豊島区駒込1-28-16
【竣工】1992/7
【階建て】地上8F
【最寄駅】
駒込駅2分
【耐震】 新耐震
【基準階】 67.90坪 【エントランス】 オートロック
【駐車場】 無し 【エレベーター】 1基
本澤ビルは、東京都豊島区駒込1丁目に位置する地上8階建ての賃貸オフィスビルです。1992年7月に竣工し、新耐震基準に適合した鉄骨鉄筋コンクリート造(SRC造)によって設計されています。耐震性…
図面 階数 面積 賃料(共益費込)
(坪単価)
保証金/敷金 礼金 入居可能日
2階 G 66.97坪
(221.39m2)
1,385,000
(20,681)
8,040,000
(6ヶ月)
1.0ヶ月 相談
リバーセンタービルの外観
物件番号:063096
更新日:2025/11/11
川崎市幸区南幸町3-97
【竣工】1992/6
【階建て】地上11F
【最寄駅】
尻手駅2分
川崎駅10分
京急川崎駅10分
【耐震】 新耐震
【基準階】 33.23坪 【エントランス】 オートロック
【駐車場】 有り 【エレベーター】 1基
「リバーセンタービル」は、神奈川県川崎市幸区南幸町3丁目に位置する地上11階建てのオフィスビルです。1992年6月に竣工したSRC(鉄骨鉄筋コンクリート)造で、新耐震基準に適合しており、災害時…
図面 階数 面積 賃料(共益費込)
(坪単価)
保証金/敷金 礼金 入居可能日
11階 G 40.38坪
(133.50m2)
450,000
(11,144)
1,800,000
(4ヶ月)
1.0ヶ月 即日
川崎日進町ビルディングの外観
物件番号:039781
更新日:2025/12/3
川崎市川崎区日進町7-1
【竣工】1992/4
【階建て】地上15F 、地下2F
【最寄駅】
八丁畷駅6分
川崎駅10分
京急川崎駅12分
【耐震】 新耐震
【基準階】 298.62坪 【エントランス】 平日・土開放
【駐車場】 有り 【エレベーター】 7基
川崎日進町ビルディングは、川崎市川崎区日進町7-1に位置するハイグレードな賃貸オフィスビルです。川崎駅東口エリアにあり、複数の駅からアクセス可能な利便性の高い立地が特徴です。最寄りのJR…
図面 階数 面積 賃料(共益費込)
(坪単価)
保証金/敷金 礼金 入居可能日
9階 N 53.68坪
(177.45m2)
(未公開) (未公開) 2026/2
予定
リードシー大塚ビルの外観
物件番号:073450
更新日:2025/11/27
豊島区南大塚2-38-1
【竣工】1992/3(改修:2020)
【階建て】地上8F
【最寄駅】
大塚駅5分
大塚駅前駅5分
新大塚駅7分
【耐震】 新耐震
【基準階】 46.10坪 【エントランス】 全日開放(24h)
【駐車場】 無し 【エレベーター】 1基
リードシー大塚ビルは、豊島区南大塚2-38-1にある物件です。徒歩5分圏内でJR山手線の大塚駅、都電荒川線の大塚駅前駅、徒歩7分圏内で東京メトロ丸ノ内線の新大塚駅が利用可能となっています。複…
図面 階数 面積 賃料(共益費込)
(坪単価)
保証金/敷金 礼金 入居可能日
2階 G 46.09坪
(152.39m2)
(未公開) 4ヶ月 1.0ヶ月 即日
ワイズビルの外観
物件番号:027533
更新日:2025/11/18
豊島区南池袋2-47-2
【竣工】1992/3(改修:2020)
【階建て】地上9F 、地下1F
【最寄駅】
東池袋駅2分
池袋駅6分
【耐震】 新耐震
【基準階】 39.45坪 【エントランス】 平日・土開放
【駐車場】 有り 【エレベーター】 1基
東池袋駅から徒歩2分、南池袋エリアの賃貸オフィスビルです。ワイズビルは、東京都豊島区南池袋2-47-2に位置するオフィスビルです。1992年3月に竣工され、2020年には一部施設のリニューアルが行…
図面 階数 面積 賃料(共益費込)
(坪単価)
保証金/敷金 礼金 入居可能日
6階 G 39.45坪
(130.41m2)
670,650
(17,000)
3,313,800
(6ヶ月)
2.0ヶ月 相談
大河内ビルの外観
物件番号:026473
更新日:2025/11/19
豊島区池袋2-52-8
【竣工】1991/6
【階建て】地上9F 、地下2F
【最寄駅】
池袋駅6分
【耐震】 新耐震
【基準階】 154.66坪 【エントランス】 平日・土開放
【駐車場】 有り 【エレベーター】 2基
大河内ビルは、東京都豊島区池袋2-52-8に位置する、重厚感あふれる大規模オフィスビルです。JR山手線・埼京線、東京メトロ有楽町線・副都心線・丸ノ内線、東武東上線の池袋駅から徒歩7分圏内とい…
図面 階数 面積 賃料(共益費込)
(坪単価)
保証金/敷金 礼金 入居可能日
2階 N 138.70坪
(458.51m2)
(未公開) 12ヶ月 即日
6階 N 102.00坪
(337.20m2)
(未公開) 12ヶ月 即日
ラグーン池袋ビルの外観
物件番号:083185
更新日:2025/11/19
豊島区東池袋1-21-1
【竣工】1991/2
【階建て】地上8F 、地下2F
【最寄駅】
池袋駅4分
東池袋駅4分
【耐震】 新耐震
【基準階】 【エントランス】
【駐車場】 無し 【エレベーター】 2基
ラグーン池袋ビルは、東京都豊島区東池袋1丁目に位置する地上8階・地下2階建ての賃貸オフィスビルです。1991年2月に竣工し、新耐震基準に適合した構造を採用しているため、地震リスクへの備えも…
図面 階数 面積 賃料(共益費込)
(坪単価)
保証金/敷金 礼金 入居可能日
8階 G 39.89坪
(131.87m2)
(未公開) 12ヶ月 2026/2
下旬
天心堂ビルの外観
物件番号:026524
更新日:2025/11/27
豊島区池袋1-7-14
【竣工】1990/12
【階建て】地上4F
【最寄駅】
池袋駅5分
【耐震】 新耐震
【基準階】 96.65坪 【エントランス】
【駐車場】 無し 【エレベーター】 1基
開放感のある入口アプローチ!白基調で清潔感のあるビル!池袋駅利用で交通アクセス良好!
図面 階数 面積 賃料(共益費込)
(坪単価)
保証金/敷金 礼金 入居可能日
図面
3階 G 96.65坪
(319.51m2)
(未公開) (未公開) (未公開) 未定
西池袋TSビルの外観
物件番号:026985
更新日:2025/11/19
豊島区西池袋3-1-15
【竣工】1990/12(改修:2009)
【階建て】地上10F 、地下1F
【最寄駅】
池袋駅3分
【耐震】 新耐震
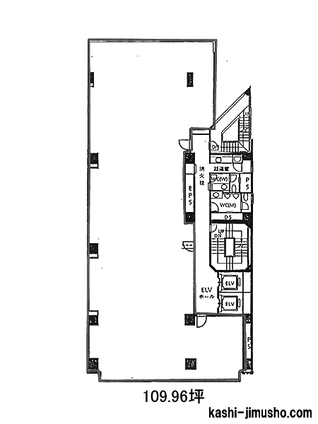
【基準階】 109.96坪 【エントランス】 平日・土開放
【駐車場】 有り 【エレベーター】 2基
西池袋TSビルは、東京都豊島区西池袋3丁目に位置する地上10階・地下1階建ての賃貸オフィスビルです。1990年12月に竣工し、新耐震基準に適合した鉄骨鉄筋コンクリート造(SRC造)の構造で、安心し…
図面 階数 面積 賃料(共益費込)
(坪単価)
保証金/敷金 礼金 入居可能日
2階 N 109.96坪
(363.51m2)
(未公開) 12ヶ月 2026/5/1
いちご川崎ビルの外観
物件番号:044044
更新日:2025/12/8
川崎市川崎区東田町1-2-7
【竣工】1990/9
【階建て】地上9F 、地下2F
【最寄駅】
川崎駅6分
京急川崎駅8分
【耐震】 新耐震
【基準階】 131.47坪 【エントランス】 平日・土開放
【駐車場】 有り 【エレベーター】 3基
川崎駅エリア。シャープな重厚感のある外観と気品あるオフィスビル。いちご川崎ビルは、川崎市川崎区東田町、JR川崎駅、京急本線・京急川崎駅より徒歩6分圏内の立地です。新川通りに面しており、…
図面 階数 面積 賃料(共益費込)
(坪単価)
保証金/敷金 礼金 入居可能日
2階 G 64.66坪
(213.75m2)
(未公開) 10ヶ月 2026/4/1
パレール三井ビルディングの外観
物件番号:039245
更新日:2025/11/13
川崎市川崎区東田町8
【竣工】1990/9
【階建て】地上20F 、地下1F
【最寄駅】
京急川崎駅6分
川崎駅8分
【耐震】 新耐震
【基準階】 278.09坪 【エントランス】 平日・土開放
【駐車場】 有り 【エレベーター】 6基
パレール三井ビルディングは、川崎市川崎区東田町8に位置する地上20階建てのハイグレードオフィスタワーです。1990年に竣工されたこのビルは、鉄骨鉄筋コンクリート造の地下1階・地上20階建てで…
図面 階数 面積 賃料(共益費込)
(坪単価)
保証金/敷金 礼金 入居可能日
9階 N 56.83坪
(187.87m2)
(未公開) (未公開) 2026/4/1
11階 N 84.79坪
(280.30m2)
(未公開) (未公開) 即日
20階 N 278.09坪
(919.31m2)
(未公開) (未公開) 2026/2/1

※取引態様:媒介
※フロア図面と現況が異なる場合は現況を優先いたします。
※貸室内部の写真・貸室からの景色に関しては、現在の募集フロアと異なる場合がございます。

総数:82棟(151件)

(さいたま)の賃料相場

(さいたま)エリアの平均賃料

で募集している物件の、1坪あたりの賃料(共益費を含む)の平均価格です。
数値の右側にある矢印は、一週間前の数値と比較した結果を表しています。
賃料価格は毎日集計をしている最新の値です。

  • 2040 未調査
  • 4060 未調査
  • 60100 未調査
  • 100坪以上 未調査

(さいたま)エリアの募集賃料

の1坪あたりの賃料(共益費を含む)価格帯ごとの募集物件数です。
表の数値をクリックすると募集物件の一覧表が表示します。

【2025/12/10更新】