さいたまの貸事務所から希望エリアの物件を検索!
0120-33-9533
ご相談、お問合せ

お問合せはこちら

※ご入居を検討されているお客様向けの情報サイトです。
※駐車場単体・管理会社・テナントに関するお問合せにはお応えいたしかねます。
ご相談、お問合せ
0120-33-9533
※ご入居を検討されているお客様向けの情報サイトです。
※駐車場単体・管理会社・テナントに関するお問合せにはお応えいたしかねます。

の(200坪以上)の貸事務所・賃貸オフィス一覧

 
 

総数:10棟(29件)
  • 1
IT TOWER TOKYOの外観
物件番号:081624
更新日:2026/4/14
豊島区西池袋3-28-4
【竣工】2025/12
【階建て】地上27F 、地下4F
【最寄駅】
池袋駅1分
【耐震】 新耐震+制震
【基準階】 291.37坪 【エントランス】 全日開放(制限有)
【駐車場】 有り 【エレベーター】 5基
東京都豊島区西池袋3丁目に位置するIT TOWER TOKYOは、2025年12月に竣工のオフィスビルです。池袋駅からのアクセスに非常に優れており、副都心線池袋駅からは徒歩1分、JR山手線・埼京線、東武東…
図面 階数 面積 賃料(共益費込)
(坪単価)
保証金/敷金 礼金 入居可能日
24階 N 291.37坪
(963.21m2)
(未公開) 12ヶ月 即日
Hareza Towerの外観
物件番号:068564
更新日:2026/4/14
豊島区東池袋1-18-1
【竣工】2020/5
【階建て】地上32F 、地下2F
【最寄駅】
池袋駅5分
【耐震】 新耐震
【基準階】 466.35坪 【エントランス】 全日開放(制限有)
【駐車場】 有り 【エレベーター】 16基
Hareza Towerは、豊島区東池袋に位置する2020年竣工の大型オフィスタワーです。池袋駅から徒歩5分圏内で、JR各線、西武池袋線、東京メトロ丸ノ内線、有楽町線、副都心線といった複数路線が利用可…
図面 階数 面積 賃料(共益費込)
(坪単価)
保証金/敷金 礼金 入居可能日
17階 N 203.59坪
(673.03m2)
(未公開) 12ヶ月 2026/10/1
川崎フロンティアビルの外観
物件番号:061413
更新日:2026/4/16
川崎市川崎区駅前本町11-2
【竣工】2012/7
【階建て】地上12F 、地下1F
【最寄駅】
京急川崎駅1分
川崎駅2分
【耐震】 新耐震
【基準階】 248.72坪 【エントランス】 平日のみ開放
【駐車場】 有り 【エレベーター】 5基
川崎駅前。快適なビジネス環境を支えるハイグレード賃貸オフィス。川崎フロンティアビルは、川崎市川崎区駅前本町、京急川崎駅より徒歩1分圏内、JR川崎駅より徒歩2分圏内でアクセス可能。駅前の…
図面 階数 面積 賃料(共益費込)
(坪単価)
保証金/敷金 礼金 入居可能日
9階 N 248.69坪
(822.14m2)
(未公開) (未公開) 2027/1/1
NTT新池袋ビルの外観
物件番号:082561
更新日:2026/3/30
豊島区東池袋3-21-14
【竣工】2008/6
【階建て】地上9F 、地下1F
【最寄駅】
東池袋駅9分
池袋駅10分
東池袋四丁目駅10分
【耐震】 新耐震
【基準階】 298.60坪 【エントランス】 平日のみ開放
【駐車場】 無し 【エレベーター】 5基
NTT新池袋ビルは、東京都豊島区東池袋3-21-14に位置するモダンなオフィスビルです。有楽町線の東池袋駅から徒歩9分、JR山手線や西武池袋線の池袋駅から徒歩10分と、複数路線にアクセス可能な便利…
図面 階数 面積 賃料(共益費込)
(坪単価)
保証金/敷金 礼金 入居可能日
1階 N 225.85坪
(746.61m2)
(未公開) 10ヶ月 2026/8
予定
2階 N 298.60坪
(987.11m2)
(未公開) 10ヶ月 2026/8
予定
3階 N 298.60坪
(987.11m2)
(未公開) 10ヶ月 2026/8
予定
4階 N 298.60坪
(987.11m2)
(未公開) 10ヶ月 2026/8
予定
5階 N 298.60坪
(987.11m2)
(未公開) 10ヶ月 2026/8
予定
6階 N 298.60坪
(987.11m2)
(未公開) 10ヶ月 2026/8
予定
7階 N 298.60坪
(987.11m2)
(未公開) 10ヶ月 2026/8
予定
8階 N 298.60坪
(987.11m2)
(未公開) 10ヶ月 2026/8
予定

8件を確認する

ソリッドスクエアの外観
物件番号:035074
更新日:2026/4/10
川崎市幸区堀川町580
【竣工】1995/5
【階建て】地上24F 、地下2F
【最寄駅】
京急川崎駅3分
川崎駅5分
【耐震】 新耐震
【基準階】 639.66坪 【エントランス】 全日開放(制限有)
【駐車場】 有り 【エレベーター】 28基
ソリッドスクエアは、川崎市幸区堀川町に位置する川崎駅周辺を代表する大型賃貸オフィスビルで、京急本線「京急川崎駅」から徒歩3分圏内、JR「川崎駅」からも徒歩5分圏内という利便性抜群のロケ…
図面 階数 面積 賃料(共益費込)
(坪単価)
保証金/敷金 礼金 入居可能日
5階 N 320.05坪
(1058.02m2)
(未公開) 12ヶ月 即日
15階 N 220.44坪
(728.72m2)
(未公開) 12ヶ月 即日
16階 N 220.44坪
(728.73m2)
(未公開) 12ヶ月 即日
16階 N 311.89坪
(1031.04m2)
(未公開) 12ヶ月 即日
17階 N 248.19坪
(820.46m2)
(未公開) 12ヶ月 即日
17階 N 311.89坪
(1031.05m2)
(未公開) 12ヶ月 即日

6件を確認する

サンシャインシティ アネックスの外観
物件番号:073365
更新日:2026/4/23
豊島区東池袋3-3-5
【竣工】1990/8
【階建て】地上14F 、地下3F
【最寄駅】
東池袋駅9分
池袋駅9分
【耐震】 新耐震
【基準階】 233.19坪 【エントランス】 全日開放(制限有)
【駐車場】 無し 【エレベーター】 6基
豊島区東池袋3丁目にある、サンシャインシティアネックスです。JR各線・東京メトロ・西武線・東武東上線の池袋駅、都電荒川線の東池袋四丁目駅が利用可能です。大通り沿いの角地で、視認性・採…
図面 階数 面積 賃料(共益費込)
(坪単価)
保証金/敷金 礼金 入居可能日
7階 G 232.00坪
(766.94m2)
(未公開) (未公開) 即日
8階 G 233.19坪
(770.89m2)
(未公開) (未公開) 即日
9階 G 233.19坪
(770.89m2)
(未公開) (未公開) 即日
興和川崎西口ビルの外観
物件番号:039690
更新日:2026/4/6
川崎市幸区堀川町66-2
【竣工】1988/2
【階建て】地上21F 、地下2F
【最寄駅】
京急川崎駅6分
川崎駅7分
【耐震】 新耐震
【基準階】 595.19坪 【エントランス】 平日・土開放
【駐車場】 有り 【エレベーター】 13基
興和川崎西口ビルは、川崎市幸区堀川町66-2に位置する重厚感あふれる大型オフィスビルです。1998年に竣工されたこのビルは、鉄骨鉄造で地下2階、地上21階建ての構造となっており、新耐震基準を満…
図面 階数 面積 賃料(共益費込)
(坪単価)
保証金/敷金 礼金 入居可能日
9階 N 284.59坪
(940.80m2)
(未公開) 12ヶ月 即日
JMFビル川崎01の外観
物件番号:039246
更新日:2026/4/15
川崎市川崎区日進町1-14
【竣工】1982/5(改修:2005)
【階建て】地上10F 、地下2F
【最寄駅】
川崎駅4分
京急川崎駅9分
【耐震】 旧耐震
【基準階】 783.18坪 【エントランス】 平日のみ開放
【駐車場】 有り 【エレベーター】 6基
JMFビル川崎01は、神奈川県川崎市川崎区日進町1-14に位置する、大規模で機能的なオフィスビルです。1982年5月に竣工したこのビルは、地上10階・地下2階建てのSRC(鉄骨鉄筋コンクリート)造で、…
図面 階数 面積 賃料(共益費込)
(坪単価)
保証金/敷金 礼金 入居可能日
3階 N 773.58坪
(2557.20m2)
(未公開) (未公開) 即日
6階 N 391.59坪
(1294.52m2)
(未公開) (未公開) 即日
サンシャイン60の外観
物件番号:027183
更新日:2026/4/23
豊島区東池袋3-1-1
【竣工】1978/4
【階建て】地上60F 、地下4F
【最寄駅】
東池袋駅4分
東池袋四丁目駅5分
池袋駅8分
【耐震】 旧耐震+補強済 or 基準OK
【基準階】 587.94坪 【エントランス】 全日開放(制限有)
【駐車場】 有り 【エレベーター】 41基
豊島区東池袋3丁目にある、サンシャイン60です。池袋エリアを代表する、シンボルタワーです。最寄駅は、東京メトロ有楽町線の東池袋駅です。徒歩10分圏内で、都電荒川線の東池袋四丁目駅、JR各線…
図面 階数 面積 賃料(共益費込)
(坪単価)
保証金/敷金 礼金 入居可能日
19階 N 293.97坪
(971.81m2)
(未公開) (未公開) 2026/10
予定
20階 N 293.97坪
(971.81m2)
(未公開) (未公開) 即日
22階 N 293.97坪
(971.81m2)
(未公開) (未公開) 即日
23階 N 293.97坪
(971.81m2)
(未公開) (未公開) 2026/10
予定
図面
26階 N 293.97坪
(971.80m2)
(未公開) (未公開) 2026/7
予定

5件を確認する

タカセビル本館の外観
物件番号:027336
更新日:2026/4/30
豊島区東池袋1-25-8
【竣工】1977/5
【階建て】地上9F 、地下1F
【最寄駅】
東池袋駅3分
池袋駅7分
【耐震】 旧耐震
【基準階】 214.85坪 【エントランス】 平日のみ開放
【駐車場】 無し 【エレベーター】 2基
タカセビル本館は、東京都豊島区東池袋1丁目に位置する、地上9階・地下1階建てのSRC(鉄骨鉄筋コンクリート)造で建てられたオフィスビルです。本ビルは、有楽町線「東池袋駅」から徒歩3分という…
図面 階数 面積 賃料(共益費込)
(坪単価)
保証金/敷金 礼金 入居可能日
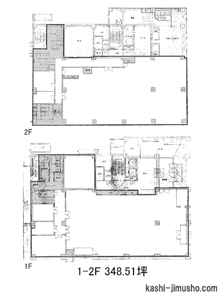
1-2階 G 348.51坪
(1152.10m2)
(未公開) (未公開) 2027/4/1

※取引態様:媒介
※フロア図面と現況が異なる場合は現況を優先いたします。
※貸室内部の写真・貸室からの景色に関しては、現在の募集フロアと異なる場合がございます。

総数:10棟(29件)
  • 1

(さいたま)の賃料相場

(さいたま)エリアの平均賃料

で募集している物件の、1坪あたりの賃料(共益費を含む)の平均価格です。
数値の右側にある矢印は、一週間前の数値と比較した結果を表しています。
賃料価格は毎日集計をしている最新の値です。

  • 2040 未調査
  • 4060 未調査
  • 60100 未調査
  • 100坪以上 未調査

(さいたま)エリアの募集賃料

の1坪あたりの賃料(共益費を含む)価格帯ごとの募集物件数です。
表の数値をクリックすると募集物件の一覧表が表示します。

【2026/04/30更新】