さいたまの貸事務所から希望エリアの物件を検索!
0120-33-9533
ご相談、お問合せ

お問合せはこちら

※ご入居を検討されているお客様向けの情報サイトです。
※駐車場単体・管理会社・テナントに関するお問合せにはお応えいたしかねます。
ご相談、お問合せ
0120-33-9533
※ご入居を検討されているお客様向けの情報サイトです。
※駐車場単体・管理会社・テナントに関するお問合せにはお応えいたしかねます。

の(40~60坪)の貸事務所・賃貸オフィス一覧

 
 

総数:18棟(22件)
  • 1
パシフィックマークス川崎ビルの外観
物件番号:039235
更新日:2026/4/15
川崎市川崎区駅前本町11-1
【竣工】2004/8
【階建て】地上13F 、地下1F
【最寄駅】
川崎駅1分
京急川崎駅2分
【耐震】 新耐震
【基準階】 195.60坪 【エントランス】 全日開放(制限有)
【駐車場】 有り 【エレベーター】 5基
パシフィックマークス川崎ビルは、川崎市川崎区駅前本町に位置する、利便性と快適性を兼ね備えたハイスペックオフィスビルです。JR東海道本線・京浜東北線・南武線の川崎駅から徒歩1分、京急本線…
図面 階数 面積 賃料(共益費込)
(坪単価)
保証金/敷金 礼金 入居可能日
9階 G 53.40坪
(176.53m2)
(未公開) 12ヶ月 2026/9/6
日本綜合地所大塚ビルの外観
物件番号:026701
更新日:2026/4/21
豊島区北大塚1-13-17
【竣工】1993/3
【階建て】地上5F 、地下1F
【最寄駅】
大塚駅3分
大塚駅前駅3分
新大塚駅8分
【耐震】 新耐震
【基準階】 239.64坪 【エントランス】 平日・土開放
【駐車場】 有り 【エレベーター】 2基
日本綜合地所大塚ビルは、東京都豊島区北大塚1-13-17に建つ地上5階・地下1階のオフィスビルです。1993年3月に竣工し、新耐震基準に適合したSRC造(鉄骨鉄筋コンクリート造)で建てられています。…
図面 階数 面積 賃料(共益費込)
(坪単価)
保証金/敷金 礼金 入居可能日
4階 N 47.57坪
(157.26m2)
761,120
(16,000)
8ヶ月 1.0ヶ月 2026/8/1
FTKビルの外観
物件番号:053425
更新日:2026/4/14
川崎市川崎区東田町11-22
【竣工】1993/3
【階建て】地上8F
【最寄駅】
京急川崎駅8分
川崎駅11分
【耐震】 新耐震
【基準階】 49.76坪 【エントランス】 オートロック
【駐車場】 有り 【エレベーター】 1基
FTKビルは、神奈川県川崎市川崎区東田町11-22に位置するオフィスビルです。京急本線の京急川崎駅から徒歩8分、JR京浜東北線、東海道本線、南武線の川崎駅から徒歩11分と、複数路線が利用可能な交…
図面 階数 面積 賃料(共益費込)
(坪単価)
保証金/敷金 礼金 入居可能日
8階 G 49.76坪
(164.51m2)
450,000
(9,044)
3ヶ月 1.0ヶ月 2026/5
下旬
東宝駒込ビルの外観
物件番号:026761
更新日:2026/4/3
豊島区駒込3-3-17
【竣工】1993/3
【階建て】地上7F 、地下1F
【最寄駅】
駒込駅2分
【耐震】 新耐震
【基準階】 51.94坪 【エントランス】
【駐車場】 無し 【エレベーター】 1基
東宝駒込ビルは、豊島区駒込3-3-17にある物件です。最寄駅は、JR山手線・東京メトロ南北線の駒込駅です。徒歩2分圏内でアクセス可能な好立地です。複数路線が利用可能でアクセス良好です。電車の…
図面 階数 面積 賃料(共益費込)
(坪単価)
保証金/敷金 礼金 入居可能日
3階 N 57.15坪
(188.93m2)
914,400
(16,000)
12ヶ月 2026/5/1
池袋ツルミビルの外観
物件番号:026989
更新日:2026/4/21
豊島区西池袋2-39-6
【竣工】1992/12(改修:2008)
【階建て】地上8F 、地下1F
【最寄駅】
池袋駅5分
【耐震】 新耐震
【基準階】 57.58坪 【エントランス】 平日・土開放
【駐車場】 無し 【エレベーター】 1基
池袋ツルミビルは、東京都豊島区西池袋2-39-6に位置する地上8階・地下1階のオフィスビルです。1992年12月に竣工し、SRC造で建てられています。新耐震基準に適合しており、安全性にも優れています…
図面 階数 面積 賃料(共益費込)
(坪単価)
保証金/敷金 礼金 入居可能日
4階 G 58.96坪
(194.93m2)
725,219
(12,300)
7ヶ月 2026/7
上旬
サン・ユースビルの外観
物件番号:027195
更新日:2026/4/9
豊島区東池袋5-40-9
【竣工】1992/11
【階建て】地上7F 、地下1F
【最寄駅】
向原駅2分
新大塚駅6分
大塚駅8分
【耐震】 新耐震
【基準階】 43.00坪 【エントランス】 全日開放(制限有)
【駐車場】 有り 【エレベーター】 1基
複数路線が利用可能で交通アクセス良好!石張りの外観が印象的!落ち着いたイメージのエントランス!眺望の良い、ワンフロア・ワンテナントの独立性が高い貸事務所!
図面 階数 面積 賃料(共益費込)
(坪単価)
保証金/敷金 礼金 入居可能日
3階 G 42.99坪
(142.14m2)
460,360
(10,708)
3ヶ月 相談
5階 G 42.99坪
(142.14m2)
460,360
(10,708)
3ヶ月 相談
第3グロビスビルの外観
物件番号:026805
更新日:2026/4/8
豊島区巣鴨1-24-1
【竣工】1992/7(改修:2022)
【階建て】地上6F
【最寄駅】
巣鴨駅4分
駒込駅13分
大塚駅前駅14分
【耐震】 新耐震
【基準階】 45.62坪 【エントランス】 全日開放(制限有)
【駐車場】 有り 【エレベーター】 1基
第3グロビスビルは、東京都豊島区巣鴨1丁目に所在する賃貸オフィスビルです。1992年に竣工し、新耐震基準を満たした鉄筋コンクリート造の地上6階建てで、安心してご利用いただける建物です。基準…
図面 階数 面積 賃料(共益費込)
(坪単価)
保証金/敷金 礼金 入居可能日
3階 G 48.48坪
(160.28m2)
632,000
(13,036)
6ヶ月 1.0ヶ月 即日
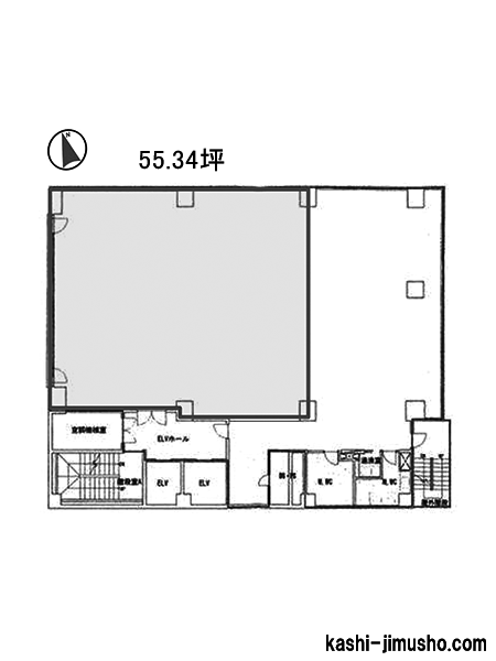
池袋KSビルの外観
物件番号:027270
更新日:2026/4/21
豊島区東池袋3-23-13
【竣工】1992/1
【階建て】地上8F 、地下1F
【最寄駅】
向原駅5分
東池袋駅9分
大塚駅10分
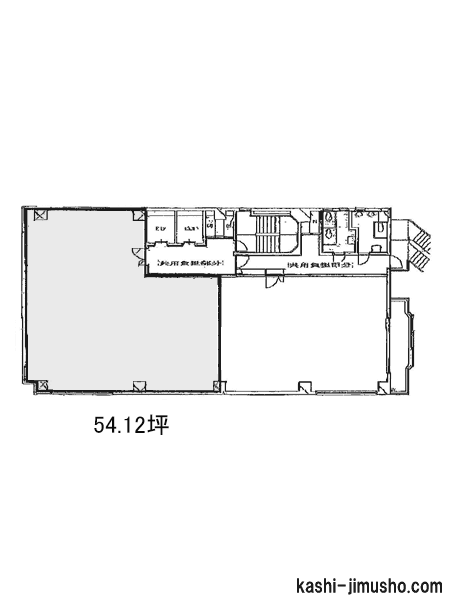
【耐震】 新耐震
【基準階】 64.12坪 【エントランス】 平日・土開放
【駐車場】 有り 【エレベーター】 1基
池袋エリアに建つ「池袋KSビル」は、春日通り沿いに位置し、視認性に優れた賃貸オフィスビルです。東京都豊島区東池袋3-23-13に所在し、全面ガラス張りのスタイリッシュな外観が印象的で、企業の…
図面 階数 面積 賃料(共益費込)
(坪単価)
保証金/敷金 礼金 入居可能日
2階 G 59.86坪
(197.88m2)
1,060,000
(17,708)
6ヶ月 即日
タクト4ビルの外観
物件番号:027440
更新日:2026/4/15
豊島区南池袋2-32-12
【竣工】1990/2
【階建て】地上9F
【最寄駅】
東池袋駅4分
雑司ヶ谷駅5分
池袋駅8分
【耐震】 新耐震
【基準階】 63.00坪 【エントランス】 全日開放(制限有)
【駐車場】 無し 【エレベーター】 1基
タクト4ビルは、東京都豊島区南池袋2-32-12に位置する賃貸オフィスビルです。最寄り駅は東京メトロ有楽町線の東池袋駅で、徒歩4分とアクセス良好です。さらに、徒歩6分の東池袋四丁目駅(都電荒…
図面 階数 面積 賃料(共益費込)
(坪単価)
保証金/敷金 礼金 入居可能日
2階 G 46.04坪
(152.20m2)
920,800
(20,000)
8ヶ月 2026/6
中旬
池袋オンダビルの外観
物件番号:025972
更新日:2026/4/21
豊島区池袋2-47-5
【竣工】1989/6
【階建て】地上10F 、地下1F
【最寄駅】
池袋駅3分
【耐震】 新耐震
【基準階】 66.26坪 【エントランス】 平日・土開放
【駐車場】 無し 【エレベーター】 1基
池袋駅北口エリア、文化通り沿いに面した賃貸オフィスビル。池袋オンダビルは、豊島区池袋2丁目、最寄り駅はJR各線、東武東上線、西武池袋線、東京メトロ丸の内線、有楽町線、副都心線の池袋駅…
図面 階数 面積 賃料(共益費込)
(坪単価)
保証金/敷金 礼金 入居可能日
8階 G 57.84坪
(191.21m2)
925,440
(16,000)
10ヶ月 2026/9/1
池袋グランディアビルの外観
物件番号:026432
更新日:2026/4/1
豊島区池袋2-68-12
【竣工】1986/3
【階建て】地上9F
【最寄駅】
池袋駅8分
【耐震】 新耐震
【基準階】 40.52坪 【エントランス】 全日開放(24h)
【駐車場】 無し 【エレベーター】 1基
池袋グランディアビルは、東京都豊島区池袋2に位置する、交通利便性と機能性を兼ね備えたオフィスビルです。JR山手線をはじめとするJR埼京線、西武池袋線、東武東上線、東京メトロ丸ノ内線の各「…
図面 階数 面積 賃料(共益費込)
(坪単価)
保証金/敷金 礼金 入居可能日
5階 G 40.52坪
(133.96m2)
567,280
(14,000)
10ヶ月 2026/10/1
タカセビル別館の外観
物件番号:027150
更新日:2026/4/30
豊島区東池袋1-25-9
【竣工】1983/5
【階建て】地上9F
【最寄駅】
東池袋駅5分
池袋駅7分
【耐震】
【基準階】 70.54坪 【エントランス】 平日のみ開放
【駐車場】 有り 【エレベーター】 1基
タカセビル別館は、東京都豊島区東池袋1-25-9に位置する利便性の高いオフィスビルです。有楽町線の東池袋駅から徒歩3分、JR山手線、埼京線、西武池袋線の池袋駅から徒歩5分という非常に便利な立…
図面 階数 面積 賃料(共益費込)
(坪単価)
保証金/敷金 礼金 入居可能日
6階 G 50.22坪
(166.02m2)
863,784
(17,200)
10ヶ月 即日
サトービルの外観
物件番号:064682
更新日:2026/4/21
豊島区南池袋2-30-7
【竣工】1980/8
【階建て】地上6F 、地下1F
【最寄駅】
東池袋駅3分
東池袋四丁目駅4分
池袋駅5分
【耐震】 旧耐震
【基準階】 57.48坪 【エントランス】 平日のみ開放
【駐車場】 有り 【エレベーター】 1基
複数路線利用可能で交通アクセス抜群です!グリーン大通りから一本中に入った、分かりやすい立地です!ワンフロア・ワンテナントで使い勝手良好です!
図面 階数 面積 賃料(共益費込)
(坪単価)
保証金/敷金 礼金 入居可能日
2階 G 57.48坪
(190.02m2)
890,908
(15,499)
6ヶ月 1.0ヶ月 即日
吉大ビルの外観
物件番号:066480
更新日:2026/4/17
豊島区西池袋1-15-7
【竣工】1978/4
【階建て】地上10F
【最寄駅】
池袋駅1分
【耐震】 旧耐震
【基準階】 46.39坪 【エントランス】 全日開放(24h)
【駐車場】 無し 【エレベーター】
吉大ビルは、東京都豊島区西池袋一丁目に位置するオフィスビルです。JR山手線・埼京線・東武東上線・東京メトロ丸ノ内線・有楽町線・副都心線の池袋駅から徒歩1分という、駅至近の抜群のアクセス…
図面 階数 面積 賃料(共益費込)
(坪単価)
保証金/敷金 礼金 入居可能日
3階 G 46.39坪
(153.37m2)
612,348
(13,200)
12ヶ月 即日
三喜ビルの外観
物件番号:026836
更新日:2026/4/27
豊島区巣鴨1-18-10
【竣工】1974/3
【階建て】地上8F 、地下1F
【最寄駅】
巣鴨駅2分
【耐震】 旧耐震
【基準階】 48.39坪 【エントランス】 平日のみ開放
【駐車場】 無し 【エレベーター】 2基
巣鴨駅から徒歩2分と駅からのアクセス良好!白山通り沿いで、駅から見える分かりやすい立地!ワンフロア・ワンテナントの快適な室内環境!
図面 階数 面積 賃料(共益費込)
(坪単価)
保証金/敷金 礼金 入居可能日
NEW6階 G 48.39坪
(159.97m2)
576,000
(11,903)
4ヶ月 2.0ヶ月 即日
山の手ビル東館の外観
物件番号:027458
更新日:2026/4/24
豊島区南池袋1-19-12
【竣工】1974/1(改修:2010)
【階建て】地上12F 、地下1F
【最寄駅】
池袋駅2分
【耐震】 旧耐震+補強済 or 基準OK
【基準階】 79.94坪 【エントランス】 全日開放(制限有)
【駐車場】 無し 【エレベーター】 1基
東京都豊島区南池袋に位置する「山の手ビル東館」は、オフィス物件をお探しの企業様にとって非常に魅力的な選択肢です。池袋駅から徒歩2分というアクセスの良さが大きな特長であり、西武池袋線、…
図面 階数 面積 賃料(共益費込)
(坪単価)
保証金/敷金 礼金 入居可能日
8階 G 60.07坪
(198.58m2)
1,291,505
(21,500)
6ヶ月 即日
9階 G 60.07坪
(198.61m2)
1,291,505
(21,500)
6ヶ月 即日
10階 G 60.07坪
(198.61m2)
1,291,505
(21,500)
6ヶ月 即日
11階 G 48.89坪
(161.63m2)
1,051,135
(21,500)
6ヶ月 即日

4件を確認する

フサカビルの外観
物件番号:027636
更新日:2026/4/1
豊島区南大塚3-44-11
【竣工】1969/10
【階建て】地上7F
【最寄駅】
大塚駅3分
大塚駅前駅3分
向原駅6分
【耐震】 旧耐震+補強済 or 基準OK
【基準階】 50.38坪 【エントランス】 全日開放(制限有)
【駐車場】 無し 【エレベーター】 1基
大通り沿いの角地に位置しているので視認性抜群です。淡いイエローを基調とした明るい印象の外観です。ワンフロア・ワンテナントなので使い勝手の良い貸室です。
図面 階数 面積 賃料(共益費込)
(坪単価)
保証金/敷金 礼金 入居可能日
3階 G 50.39坪
(166.58m2)
679,875
(13,492)
3ヶ月 1.0ヶ月 即日
駒込1丁目1棟貸ビルの外観
物件番号:083823
更新日:2026/4/14
豊島区駒込1-21-14
【竣工】1966/11
【階建て】地上3F
【最寄駅】
駒込駅5分
【耐震】 旧耐震
【基準階】 【エントランス】
【駐車場】 無し 【エレベーター】
駒込駅から徒歩5分、2路線が利用可能です。閑静な立地で落ち着いた周辺環境です。一棟貸しの為、自社ビル感覚でご利用いただけます。
図面 階数 面積 賃料(共益費込)
(坪単価)
保証金/敷金 礼金 入居可能日
1-3階 G 45.81坪
(151.43m2)
850,000
(18,555)
6ヶ月 相談

※取引態様:媒介
※フロア図面と現況が異なる場合は現況を優先いたします。
※貸室内部の写真・貸室からの景色に関しては、現在の募集フロアと異なる場合がございます。

総数:18棟(22件)
  • 1

(さいたま)の賃料相場

(さいたま)エリアの平均賃料

で募集している物件の、1坪あたりの賃料(共益費を含む)の平均価格です。
数値の右側にある矢印は、一週間前の数値と比較した結果を表しています。
賃料価格は毎日集計をしている最新の値です。

  • 2040 未調査
  • 4060 未調査
  • 60100 未調査
  • 100坪以上 未調査

(さいたま)エリアの募集賃料

の1坪あたりの賃料(共益費を含む)価格帯ごとの募集物件数です。
表の数値をクリックすると募集物件の一覧表が表示します。

【2026/04/30更新】