さいたまの貸事務所から希望エリアの物件を検索!
0120-33-9533
ご相談、お問合せ

お問合せはこちら

※ご入居を検討されているお客様向けの情報サイトです。
※駐車場単体・管理会社・テナントに関するお問合せにはお応えいたしかねます。
ご相談、お問合せ
0120-33-9533
※ご入居を検討されているお客様向けの情報サイトです。
※駐車場単体・管理会社・テナントに関するお問合せにはお応えいたしかねます。

の(150~200坪)の貸事務所・賃貸オフィス一覧

 
 

総数:9棟(17件)
  • 1
ミューザ川崎セントラルタワーの外観
物件番号:043319
更新日:2026/4/15
川崎市幸区大宮町1310
【竣工】2003/12
【階建て】地上27F 、地下2F
【最寄駅】
川崎駅1分
京急川崎駅8分
【耐震】 新耐震+制震
【基準階】 639.78坪 【エントランス】 全日開放(制限有)
【駐車場】 有り 【エレベーター】 16基
ミューザ川崎セントラルタワーは、川崎市幸区大宮町1310に位置する、制振ダンパーを備えたシンボリックなオフィスビルです。物件はJR川崎駅から徒歩1分という至便な場所にあり、JR京浜東北線、JR…
図面 階数 面積 賃料(共益費込)
(坪単価)
保証金/敷金 礼金 入居可能日
23階 N 186.22坪
(615.60m2)
(未公開) 12ヶ月 2026/8/1
24階 N 174.04坪
(575.34m2)
(未公開) 12ヶ月 即日
オリックス池袋ビルの外観
物件番号:027525
更新日:2026/4/23
豊島区南池袋1-19-6
【竣工】2002/7
【階建て】地上9F 、地下1F
【最寄駅】
池袋駅3分
東池袋駅3分
【耐震】 新耐震
【基準階】 185.05坪 【エントランス】 全日開放(制限有)
【駐車場】 有り 【エレベーター】 3基
豊島区南池袋1丁目にある、オリックス池袋ビルです。最寄駅は、池袋駅で徒歩3分圏内でアクセス可能な便利な立地となっています。JR山手線・JR埼京線・西武池袋線・東京メトロ丸ノ内線・東京メト…
図面 階数 面積 賃料(共益費込)
(坪単価)
保証金/敷金 礼金 入居可能日
4階 G 186.15坪
(615.37m2)
(未公開) 12ヶ月 即日
川崎ダイヤビルの外観
物件番号:039687
更新日:2026/4/7
川崎市川崎区砂子2-4-13
【竣工】2002/7
【階建て】地上9F 、地下1F
【最寄駅】
京急川崎駅3分
川崎駅4分
【耐震】 新耐震
【基準階】 171.62坪 【エントランス】 平日のみ開放
【駐車場】 有り 【エレベーター】 2基
川崎ダイヤビルは、神奈川県川崎市川崎区砂子2丁目に位置する地上9階・地下1階建てのオフィスビルです。2002年7月に竣工し、構造は鉄骨造(S造)です建てられています。新耐震基準に対応しており…
図面 階数 面積 賃料(共益費込)
(坪単価)
保証金/敷金 礼金 入居可能日
5階 N 171.62坪
(567.34m2)
(未公開) (未公開) 2026/5
ソリッドスクエアの外観
物件番号:035074
更新日:2026/4/10
川崎市幸区堀川町580
【竣工】1995/5
【階建て】地上24F 、地下2F
【最寄駅】
京急川崎駅3分
川崎駅5分
【耐震】 新耐震
【基準階】 639.66坪 【エントランス】 全日開放(制限有)
【駐車場】 有り 【エレベーター】 28基
ソリッドスクエアは、川崎市幸区堀川町に位置する川崎駅周辺を代表する大型賃貸オフィスビルで、京急本線「京急川崎駅」から徒歩3分圏内、JR「川崎駅」からも徒歩5分圏内という利便性抜群のロケ…
図面 階数 面積 賃料(共益費込)
(坪単価)
保証金/敷金 礼金 入居可能日
18階 N 176.75坪
(584.30m2)
(未公開) 12ヶ月 即日
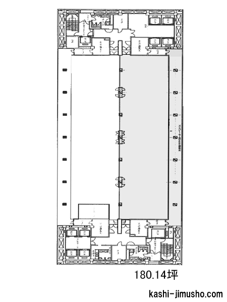
川崎テックセンターの外観
物件番号:045509
更新日:2026/4/13
川崎市幸区堀川町580-16
【竣工】1988/2
【階建て】地上20F 、地下3F
【最寄駅】
京急川崎駅6分
川崎駅8分
【耐震】 新耐震
【基準階】 360.29坪 【エントランス】 平日・土開放
【駐車場】 有り 【エレベーター】 11基
川崎テックセンターは、川崎市幸区堀川町580-16に位置する、利便性と機能性を兼ね備えたハイグレードオフィスビルです。最寄りの交通機関には、京急本線の「京急川崎駅」から徒歩6分、JR京浜東北…
図面 階数 面積 賃料(共益費込)
(坪単価)
保証金/敷金 礼金 入居可能日
4階 N 174.84坪
(577.98m2)
(未公開) (未公開) 即日
9階 N 180.14坪
(595.50m2)
(未公開) (未公開) 2026/7/1
20階 N 185.45坪
(613.06m2)
(未公開) (未公開) 即日
興和川崎西口ビルの外観
物件番号:039690
更新日:2026/4/6
川崎市幸区堀川町66-2
【竣工】1988/2
【階建て】地上21F 、地下2F
【最寄駅】
京急川崎駅6分
川崎駅7分
【耐震】 新耐震
【基準階】 595.19坪 【エントランス】 平日・土開放
【駐車場】 有り 【エレベーター】 13基
興和川崎西口ビルは、川崎市幸区堀川町66-2に位置する重厚感あふれる大型オフィスビルです。1998年に竣工されたこのビルは、鉄骨鉄造で地下2階、地上21階建ての構造となっており、新耐震基準を満…
図面 階数 面積 賃料(共益費込)
(坪単価)
保証金/敷金 礼金 入居可能日
8階 N 154.95坪
(512.23m2)
(未公開) 12ヶ月 即日
ビック池袋東口ビルの外観
物件番号:027168
更新日:2026/4/2
豊島区東池袋1-5-6
【竣工】1987/9
【階建て】地上10F 、地下1F
【最寄駅】
池袋駅1分
【耐震】 新耐震
【基準階】 170.66坪 【エントランス】 全日開放(制限有)
【駐車場】 有り 【エレベーター】 2基
ビック池袋東口ビルは、東京都豊島区東池袋1丁目に位置する、アクセスの良さが際立つオフィスビルです。このビルの最大の魅力は、池袋駅から徒歩わずか1分という利便性にあります。JR山手線、埼…
図面 階数 面積 賃料(共益費込)
(坪単価)
保証金/敷金 礼金 入居可能日
7階 G 172.34坪
(569.73m2)
(未公開) 12ヶ月 2026/5
下旬
明治安田生命川崎ビルの外観
物件番号:042362
更新日:2026/4/30
川崎市川崎区宮本町6
【竣工】1983/9
【階建て】地上13F 、地下1F
【最寄駅】
京急川崎駅6分
川崎駅8分
【耐震】 新耐震
【基準階】 188.06坪 【エントランス】 平日・土開放
【駐車場】 有り 【エレベーター】 3基
川崎市役所隣接、重厚感あるデザインが目を惹くオフィスビルです。明治安田生命川崎ビルは、川崎市川崎区宮本町6に位置し、京急本線の京急川崎駅から徒歩6分、JR京浜東北線・東海道本線・南武線…
図面 階数 面積 賃料(共益費込)
(坪単価)
保証金/敷金 礼金 入居可能日
2階 N 188.06坪
(621.69m2)
(未公開) 12ヶ月 即日
3階 N 188.06坪
(621.69m2)
(未公開) 12ヶ月 即日
4階 N 188.06坪
(621.69m2)
(未公開) 12ヶ月 即日
8階 N 188.08坪
(621.77m2)
(未公開) 12ヶ月 即日
9階 N 188.06坪
(621.69m2)
(未公開) 12ヶ月 即日

5件を確認する

タカセビル本館の外観
物件番号:027336
更新日:2026/4/30
豊島区東池袋1-25-8
【竣工】1977/5
【階建て】地上9F 、地下1F
【最寄駅】
東池袋駅3分
池袋駅7分
【耐震】 旧耐震
【基準階】 214.85坪 【エントランス】 平日のみ開放
【駐車場】 無し 【エレベーター】 2基
タカセビル本館は、東京都豊島区東池袋1丁目に位置する、地上9階・地下1階建てのSRC(鉄骨鉄筋コンクリート)造で建てられたオフィスビルです。本ビルは、有楽町線「東池袋駅」から徒歩3分という…
図面 階数 面積 賃料(共益費込)
(坪単価)
保証金/敷金 礼金 入居可能日
1階 G 172.11坪
(568.96m2)
6,402,492
(37,200)
10ヶ月 2027/4/1
2階 G 176.40坪
(583.14m2)
3,210,480
(18,200)
10ヶ月 2027/4/1

※取引態様:媒介
※フロア図面と現況が異なる場合は現況を優先いたします。
※貸室内部の写真・貸室からの景色に関しては、現在の募集フロアと異なる場合がございます。

総数:9棟(17件)
  • 1

(さいたま)の賃料相場

(さいたま)エリアの平均賃料

で募集している物件の、1坪あたりの賃料(共益費を含む)の平均価格です。
数値の右側にある矢印は、一週間前の数値と比較した結果を表しています。
賃料価格は毎日集計をしている最新の値です。

  • 2040 未調査
  • 4060 未調査
  • 60100 未調査
  • 100坪以上 未調査

(さいたま)エリアの募集賃料

の1坪あたりの賃料(共益費を含む)価格帯ごとの募集物件数です。
表の数値をクリックすると募集物件の一覧表が表示します。

【2026/04/30更新】