さいたまの貸事務所から希望エリアの物件を検索!
0120-33-9533
ご相談、お問合せ

お問合せはこちら

※ご入居を検討されているお客様向けの情報サイトです。
※駐車場単体・管理会社・テナントに関するお問合せにはお応えいたしかねます。
ご相談、お問合せ
0120-33-9533
※ご入居を検討されているお客様向けの情報サイトです。
※駐車場単体・管理会社・テナントに関するお問合せにはお応えいたしかねます。

の(60~80坪)の貸事務所・賃貸オフィス一覧

 
 

総数:35棟(46件)
第一白鳳ビルディングの外観
物件番号:082512
更新日:2026/5/12
新宿区新宿5-17-11
【竣工】2025/4
【階建て】地上11F 、地下2F
【最寄駅】
新宿三丁目駅1分
【耐震】 新耐震
【基準階】 121.01坪 【エントランス】 平日のみ開放
【駐車場】 有り 【エレベーター】 3基
2025年4月、新宿五丁目の中心地に誕生する「(仮称)第一白鳳ビルディング」は、地上11階・地下2階建てのハイグレードオフィスビルです。新宿三丁目駅から徒歩1分という抜群のアクセス性を誇り、…
図面 階数 面積 賃料(共益費込)
(坪単価)
保証金/敷金 礼金 入居可能日
4階 G 65.83坪
(217.62m2)
(未公開) 12ヶ月 即日
AD市ヶ谷ビルの外観
物件番号:058239
更新日:2026/5/1
新宿区市谷本村町2-5
【竣工】2010/9
【階建て】地上11F 、地下1F
【最寄駅】
市ヶ谷駅4分
四ツ谷駅8分
【耐震】 新耐震+制震
【基準階】 60.56坪 【エントランス】 平日・土開放
【駐車場】 有り 【エレベーター】 2基
AD市ヶ谷ビルは、新宿区市谷本村町に位置する2010年竣工のスタイリッシュな賃貸オフィスビルです。鉄骨鉄筋コンクリート造・地下1階地上11階建ての構造で、新耐震基準を満たしているのはもちろん…
図面 階数 面積 賃料(共益費込)
(坪単価)
保証金/敷金 礼金 入居可能日
3階 G 60.56坪
(200.25m2)
(未公開) 10ヶ月 即日
野村不動産西新宿ビルの外観
物件番号:056936
更新日:2026/5/12
新宿区西新宿8-4-2
【竣工】2010/3
【階建て】地上9F 、地下1F
【最寄駅】
西新宿駅1分
都庁前駅8分
新宿駅9分
【耐震】 新耐震+免震
【基準階】 145.54坪 【エントランス】 全日開放(制限有)
【駐車場】 有り 【エレベーター】 4基
野村不動産西新宿ビルは、新宿区西新宿8-4-2に位置するスタイリッシュなハイグレードオフィスビルです。最寄り駅は東京メトロ丸ノ内線の西新宿駅で、地下通路で直結しており、アクセスが非常に便…
図面 階数 面積 賃料(共益費込)
(坪単価)
保証金/敷金 礼金 入居可能日
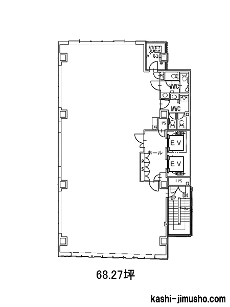
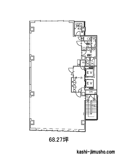
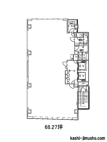
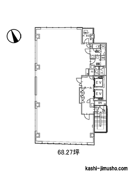
5階 N 68.23坪
(225.55m2)
(未公開) (未公開) 2026/6/1
5階 N 77.31坪
(255.57m2)
(未公開) (未公開) 2026/6/1
サウスタワーの外観
物件番号:034574
更新日:2026/5/1
新宿区富久町13-15
【竣工】1995/9
【階建て】地上10F 、地下2F
【最寄駅】
新宿御苑前駅8分
新宿三丁目駅10分
曙橋駅10分
【耐震】 新耐震
【基準階】 61.18坪 【エントランス】 全日開放(制限有)
【駐車場】 無し 【エレベーター】 1基
サウスタワーは、新宿区富久町13-15に位置する賃貸オフィスビルです。最寄り駅は東京メトロ丸ノ内線の新宿御苑前駅で徒歩6分と至近距離にあり、都営新宿線の曙橋駅へも徒歩9分、さらに東京メトロ…
図面 階数 面積 賃料(共益費込)
(坪単価)
保証金/敷金 礼金 入居可能日
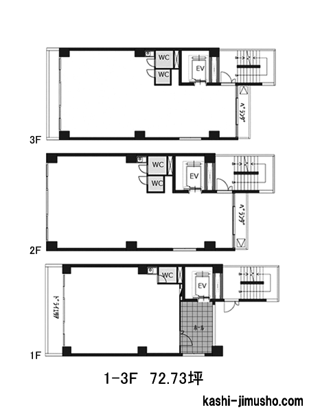
1-2階 G 74.50坪
(246.28m2)
1,564,500
(21,000)
7ヶ月 即日
3階 G 61.18坪
(202.25m2)
917,700
(15,000)
7ヶ月 即日
6階 G 61.18坪
(202.25m2)
917,700
(15,000)
7ヶ月 相談
ラーズビルの外観
物件番号:034628
更新日:2026/5/7
新宿区原町3-19
【竣工】1994/4
【階建て】地上7F 、地下1F
【最寄駅】
牛込柳町駅2分
早稲田駅10分
【耐震】 新耐震
【基準階】 113.71坪 【エントランス】 全日開放(24h)
【駐車場】 有り 【エレベーター】 2基
ラーズビルは、東京都新宿区原町3-19に位置する地上7階・地下1階建てのオフィスビルです。1994年4月に竣工し、RC造(鉄筋コンクリート造)を採用しています。新耐震基準に準拠して建設されている…
図面 階数 面積 賃料(共益費込)
(坪単価)
保証金/敷金 礼金 入居可能日
4階 G 60.96坪
(201.52m2)
725,000
(11,893)
8ヶ月 即日
711ビルの外観
物件番号:032263
更新日:2026/5/7
新宿区西新宿7-11-18
【竣工】1994/2
【階建て】地上8F 、地下2F
【最寄駅】
新宿西口駅1分
西新宿駅2分
新宿駅5分
【耐震】 新耐震
【基準階】 136.60坪 【エントランス】
【駐車場】 有り 【エレベーター】 2基
711ビルは、東京都新宿区西新宿7-11-18に位置する、新宿エリアのビジネス活動に最適なオフィスビルです。1994年2月に竣工した地上8階・地下2階建てのS(鉄骨)造で、新耐震基準を満たしているた…
図面 階数 面積 賃料(共益費込)
(坪単価)
保証金/敷金 礼金 入居可能日
6階 N 64.37坪
(212.79m2)
1,519,132
(23,600)
8ヶ月 1.0ヶ月 2026/9
飯田橋リープレックスビズの外観
物件番号:034177
更新日:2026/5/13
新宿区新小川町1-14
【竣工】1992/5
【階建て】地上8F 、地下1F
【最寄駅】
飯田橋駅3分
新宿駅11分
【耐震】 新耐震
【基準階】 63.96坪 【エントランス】 平日のみ開放
【駐車場】 無し 【エレベーター】 1基
飯田橋リープレックスビズは、東京都新宿区新小川町1-14に位置するオフィスビルです。最寄りは南北線・都営大江戸線・JR総武線・東西線・有楽町線の「飯田橋」駅から徒歩3分という好立地にあり、…
図面 階数 面積 賃料(共益費込)
(坪単価)
保証金/敷金 礼金 入居可能日
5階 G 61.52坪
(203.36m2)
(未公開) (未公開) 2026/10/22
KDX飯田橋ビルの外観
物件番号:034157
更新日:2026/5/19
新宿区下宮比町2-26
【竣工】1990/2(改修:2008)
【階建て】地上8F
【最寄駅】
飯田橋駅3分
【耐震】 新耐震
【基準階】 181.79坪 【エントランス】 全日開放(制限有)
【駐車場】 有り 【エレベーター】 2基
KDX飯田橋ビルは、新宿区下宮比町2-26に位置する賃貸オフィスビルです。最寄り駅はJR総武線をはじめ、東京メトロ有楽町線・東西線・南北線、さらに都営大江戸線の飯田橋駅が利用可能で、各線の駅…
図面 階数 面積 賃料(共益費込)
(坪単価)
保証金/敷金 礼金 入居可能日
6階 N 66.05坪
(218.38m2)
(未公開) (未公開) 即日
目白LKビルの外観
物件番号:033500
更新日:2026/5/13
新宿区下落合4-21-19
【竣工】1989/11
【階建て】地上8F
【最寄駅】
椎名町駅11分
目白駅12分
【耐震】 新耐震
【基準階】 63.06坪 【エントランス】 平日のみ開放
【駐車場】 有り 【エレベーター】 1基
目白・下落合エリア。目白通りに面した賃貸オフィスビル。目白LKビルは、新宿区下落合4丁目、JR山手線の目白駅より徒歩12分圏内、目白通りに面した視認性抜群の立地です。西武新宿駅の下落合駅、…
図面 階数 面積 賃料(共益費込)
(坪単価)
保証金/敷金 礼金 入居可能日
2階 G 63.06坪
(208.46m2)
725,190
(11,500)
6ヶ月 即日
5階 G 63.06坪
(208.46m2)
725,190
(11,500)
6ヶ月 即日
6階 G 63.06坪
(208.46m2)
725,190
(11,500)
6ヶ月 即日
松下産業本社ビルの外観
物件番号:032612
更新日:2026/4/20
新宿区西新宿7-2-12
【竣工】1989/4(改修:2021)
【階建て】地上7F
【最寄駅】
新宿西口駅2分
西武新宿駅3分
新宿駅6分
【耐震】 新耐震
【基準階】 68.77坪 【エントランス】 全日開放(制限有)
【駐車場】 無し 【エレベーター】 1基
松下産業本社ビルは、新宿区西新宿7丁目に位置する、交通利便性と視認性を兼ね備えた賃貸オフィスビルです。都営大江戸線「新宿西口駅」から徒歩2分、西武新宿線「西武新宿駅」から徒歩3分、さら…
図面 階数 面積 賃料(共益費込)
(坪単価)
保証金/敷金 礼金 入居可能日
4階 G 68.77坪
(227.34m2)
1,306,630
(19,000)
5ヶ月 1.0ヶ月 2026/8
中旬
SEビルの外観
物件番号:034191
更新日:2026/5/20
新宿区新小川町3-10
【竣工】1988/11
【階建て】地上6F 、地下1F
【最寄駅】
飯田橋駅6分
【耐震】 新耐震
【基準階】 56.22坪 【エントランス】 全日開放(24h)
【駐車場】 有り 【エレベーター】 1基
飯田橋駅から徒歩6分!複数路線も利用可能です!駅近ながら閑静な立地で、業務が捗ります!機械警備や駐車場などの充実した設備です!
図面 階数 面積 賃料(共益費込)
(坪単価)
保証金/敷金 礼金 入居可能日
NEW3階 G 62.49坪
(206.58m2)
749,880
(12,000)
4ヶ月 2.0ヶ月 相談
@WORK SHINJUKUGYOENの外観
物件番号:032854
更新日:2026/5/20
新宿区新宿2-1-9
【竣工】1988/9(改修:2024)
【階建て】地上9F 、地下2F
【最寄駅】
新宿御苑前駅1分
新宿三丁目駅6分
新宿駅10分
【耐震】 新耐震
【基準階】 66.55坪 【エントランス】 オートロック
【駐車場】 有り 【エレベーター】 2基
東京都新宿区新宿2-1-9に位置する@WORK SHINJUKUGYOENは、1988年9月に竣工した9階建て(地下2階)の賃貸オフィスビルです。鉄筋コンクリート造りで耐震性能も新耐震基準を満たしており、安心して事…
図面 階数 面積 賃料(共益費込)
(坪単価)
保証金/敷金 礼金 入居可能日
4階 G 73.05坪
(241.50m2)
(未公開) (未公開) 2026/8
中旬
NIAビルの外観
物件番号:034872
更新日:2026/5/19
新宿区高田馬場3-3-3
【竣工】1988/7
【階建て】地上8F
【最寄駅】
高田馬場駅2分
【耐震】 新耐震
【基準階】 95.99坪 【エントランス】 全日開放(制限有)
【駐車場】 無し 【エレベーター】 2基
NIAビルは、東京都新宿区高田馬場3-3-3に位置する地上8階建てのオフィスビルです。1988年7月に竣工し、RC造で建てられています。新耐震基準に適合しており、安全性にも優れています。交通アクセ…
図面 階数 面積 賃料(共益費込)
(坪単価)
保証金/敷金 礼金 入居可能日
2階 G 70.70坪
(233.72m2)
1,484,700
(21,000)
10ヶ月 即日
新宿御苑フロントの外観
物件番号:080902
更新日:2026/5/15
新宿区新宿1-6-3
【竣工】1988/3(改修:2023)
【階建て】地上9F 、地下1F
【最寄駅】
新宿御苑前駅1分
新宿三丁目駅8分
【耐震】 新耐震
【基準階】 68.09坪 【エントランス】
【駐車場】 有り 【エレベーター】 1基
「新宿御苑フロント」は、東京都新宿区新宿1-6-3に位置する賃貸オフィスビルです。最寄駅は東京メトロ丸ノ内線・新宿御苑前駅で、駅から徒歩1分圏内という抜群の利便性を誇ります。ビルの目の前…
図面 階数 面積 賃料(共益費込)
(坪単価)
保証金/敷金 礼金 入居可能日
NEW2階 G 67.99坪
(224.76m2)
(未公開) 10ヶ月 即日
四谷三栄町スクエアの外観
物件番号:041814
更新日:2026/5/20
新宿区四谷三栄町9-6
【竣工】1988/2(改修:2021)
【階建て】地上6F
【最寄駅】
四谷三丁目駅4分
四ツ谷駅8分
曙橋駅8分
【耐震】 新耐震
【基準階】 62.62坪 【エントランス】 全日開放(制限有)
【駐車場】 有り 【エレベーター】 1基
四谷三栄町スクエアは、新宿区四谷三栄町に位置する、ワンフロア約62坪の使いやすい賃貸オフィスビルです。落ち着いた街並みが広がる四谷エリアにあり、複数路線を利用できる交通利便性の高さが…
図面 階数 面積 賃料(共益費込)
(坪単価)
保証金/敷金 礼金 入居可能日
3階 G 62.62坪
(207.01m2)
1,440,260
(23,000)
6ヶ月 即日
MIB四谷ビルの外観
物件番号:073473
更新日:2026/5/15
新宿区荒木町22-42
【竣工】1987/9
【階建て】地上6F
【最寄駅】
曙橋駅3分
四谷三丁目駅6分
四ツ谷駅14分
【耐震】 新耐震
【基準階】 【エントランス】 オートロック
【駐車場】 有り 【エレベーター】 1基
MIB四谷ビルは、東京都新宿区荒木町22-42に位置する地上6階建てのオフィスビルです。1987年9月に竣工し、RC造で建てられています。新耐震基準に適合しており、安全性にも優れています。交通アク…
図面 階数 面積 賃料(共益費込)
(坪単価)
保証金/敷金 礼金 入居可能日
4-5階 G 63.10坪
(208.60m2)
800,045
(12,679)
5ヶ月 1.0ヶ月 相談
細井ビルの外観
物件番号:033617
更新日:2026/5/20
新宿区四谷4-1-1
【竣工】1987/4
【階建て】地上8F 、地下1F
【最寄駅】
四谷三丁目駅3分
【耐震】 新耐震
【基準階】 67.60坪 【エントランス】 平日・土開放
【駐車場】 無し 【エレベーター】 1基
四谷エリアに位置する新宿通りに面した視認性に優れた賃貸オフィスビルです。この物件は新宿区四谷4-1-1に所在し、東京メトロ丸ノ内線の四谷三丁目駅から徒歩3分という好立地にあります。主要ビ…
図面 階数 面積 賃料(共益費込)
(坪単価)
保証金/敷金 礼金 入居可能日
6階 G 67.60坪
(223.47m2)
(未公開) 6ヶ月 1.0ヶ月 2026/8
予定
VORT新宿御苑の外観
物件番号:032781
更新日:2026/5/18
新宿区新宿2-3-11
【竣工】1986/11
【階建て】地上9F 、地下1F
【最寄駅】
新宿御苑前駅2分
新宿三丁目駅4分
新宿駅9分
【耐震】 新耐震
【基準階】 75.44坪 【エントランス】 平日・土開放
【駐車場】 有り 【エレベーター】 1基
新宿通り沿いに位置するVORT新宿御苑は、きれいで落ち着いた印象を持つ賃貸オフィスビルです。この物件は、新宿区新宿2-3-11にあり、東京メトロ丸ノ内線の新宿御苑前駅まで徒歩2分、東京メトロ副…
図面 階数 面積 賃料(共益費込)
(坪単価)
保証金/敷金 礼金 入居可能日
6階 G 75.44坪
(249.39m2)
(未公開) 5ヶ月 1.0ヶ月 2026/9/1
PALTビルの外観
物件番号:033710
更新日:2026/5/20
新宿区四谷4-28-8
【竣工】1986/9(改修:2017)
【階建て】地上10F 、地下1F
【最寄駅】
新宿御苑前駅4分
四谷三丁目駅8分
新宿三丁目駅11分
【耐震】 新耐震
【基準階】 201.40坪 【エントランス】 全日開放(24h)
【駐車場】 有り 【エレベーター】 2基
PALTビルは東京都新宿区四谷4-28-8にある賃貸オフィスビルです。新宿御苑前駅から出て、外苑西通り沿いの角地に位置する分かりやすい立地です。落ち着いた色合いの重厚感のある外観です。石造り…
図面 階数 面積 賃料(共益費込)
(坪単価)
保証金/敷金 礼金 入居可能日
1階 N 69.03坪
(228.20m2)
1,311,570
(19,000)
10ヶ月 1.0ヶ月 即日
NOW/HERE新宿四谷の外観
物件番号:033817
更新日:2026/5/1
新宿区四谷坂町10-10
【竣工】1986/4(改修:2026)
【階建て】地上8F 、地下1F
【最寄駅】
曙橋駅6分
四ツ谷駅10分
【耐震】 新耐震
【基準階】 106.07坪 【エントランス】 平日のみ開放
【駐車場】 有り 【エレベーター】 1基
「(仮称)四谷坂町PJ」は、東京都新宿区四谷坂町10-10に位置する地上8階・地下1階建て、SRC造(鉄骨鉄筋コンクリート造)のオフィスビルです。1986年4月に竣工し、新耐震基準を満たしているため…
図面 階数 面積 賃料(共益費込)
(坪単価)
保証金/敷金 礼金 入居可能日
7階 G 75.37坪
(249.17m2)
(未公開) 即日
8階 G 75.37坪
(249.17m2)
(未公開) 即日
宇田川ビルの外観
物件番号:034896
更新日:2026/5/11
新宿区高田馬場2-16-6
【竣工】1985/12
【階建て】地上9F
【最寄駅】
高田馬場駅1分
1分
【耐震】 新耐震
【基準階】 68.41坪 【エントランス】 全日開放(制限有)
【駐車場】 無し 【エレベーター】 2基
フットワーク抜群!複数路線が利用可能!交通アクセス抜群!開放的で温かみのあるエントランス!!機械警備でセキュリティ万全!
図面 階数 面積 賃料(共益費込)
(坪単価)
保証金/敷金 礼金 入居可能日
8階 G 68.22坪
(225.52m2)
(未公開) 10ヶ月 2026/10
予定
新宿通東洋ビルの外観
物件番号:032730
更新日:2026/5/12
新宿区新宿2-6-4
【竣工】1985/7(改修:2020)
【階建て】地上12F 、地下1F
【最寄駅】
新宿三丁目駅2分
新宿駅7分
【耐震】 新耐震
【基準階】 67.30坪 【エントランス】 全日開放(制限有)
【駐車場】 無し 【エレベーター】 2基
新宿通東洋ビルは、新宿区新宿2丁目に位置する貸事務所で、視認性とアクセスの良さが特徴の物件です。最寄り駅は東京メトロ丸ノ内線・副都心線、および都営新宿線の新宿三丁目駅で、駅出口から徒…
図面 階数 面積 賃料(共益費込)
(坪単価)
保証金/敷金 礼金 入居可能日
4階 G 67.42坪
(222.90m2)
(未公開) 12ヶ月 2026/7
上旬
東建ニューハイツ市ヶ谷の外観
物件番号:041348
更新日:2026/5/12
新宿区南山伏町2-10
【竣工】1985/1
【階建て】地上10F
【最寄駅】
牛込柳町駅5分
神楽坂駅10分
【耐震】 新耐震
【基準階】 【エントランス】 全日開放(制限有)
【駐車場】 有り 【エレベーター】 1基
東建ニューハイツ市ヶ谷は、東京都新宿区南山伏町に位置するオフィスビルで、都心の利便性と落ち着いた環境を兼ね備えた物件です。最寄りの都営大江戸線「牛込柳町駅」から徒歩5分、東京メトロ東…
図面 階数 面積 賃料(共益費込)
(坪単価)
保証金/敷金 礼金 入居可能日
1階 G 68.65坪
(226.96m2)
1,132,725
(16,500)
8ヶ月 即日
立花新宿ビルの外観
物件番号:032237
更新日:2026/4/13
新宿区西新宿3-2-26
【竣工】1984/9(改修:2005)
【階建て】地上9F
【最寄駅】
都庁前駅5分
新宿駅7分
【耐震】 新耐震
【基準階】 77.17坪 【エントランス】 全日開放(制限有)
【駐車場】 無し 【エレベーター】 1基
立花新宿ビルは、新宿区西新宿3-2-26にある物件です。徒歩5分圏内で都営大江戸線の都庁前駅、徒歩7分圏内で都営新宿線の新宿駅、徒歩9分圏内でJR各線の新宿駅が利用可能となっています。複数路線…
図面 階数 面積 賃料(共益費込)
(坪単価)
保証金/敷金 礼金 入居可能日
9階 G 77.17坪
(255.13m2)
(未公開) (未公開) 2026/8
中旬
ライオンズマンション新宿御苑前第2の外観
物件番号:032679
更新日:2026/5/20
新宿区新宿2-13-11
【竣工】1982/7
【階建て】地上11F 、地下1F
【最寄駅】
新宿三丁目駅3分
【耐震】 旧耐震
【基準階】 64.00坪 【エントランス】
【駐車場】 無し 【エレベーター】 1基
ライオンズマンション新宿御苑前第2は、東京都新宿区新宿2丁目に位置する、利便性の高い立地と機能的な設備を持つ賃貸オフィスビルです。東京メトロ丸ノ内線、副都心線の3つの主要路線が利用可能…
図面 階数 面積 賃料(共益費込)
(坪単価)
保証金/敷金 礼金 入居可能日
2階 G 64.11坪
(211.93m2)
929,595
(14,500)
6ヶ月 1.0ヶ月 2026/6
上旬
新宿内藤町ハウスの外観
物件番号:058325
更新日:2026/4/30
新宿区内藤町1-121
【竣工】1981/2
【階建て】地上11F 、地下1F
【最寄駅】
新宿御苑前駅7分
【耐震】 旧耐震
【基準階】 【エントランス】 全日開放(24h)
【駐車場】 有り 【エレベーター】
「新宿内藤町ハウス」は、東京都新宿区内藤町1-121に位置する地上11階・地下1階建てのオフィスビルです。SRC造(鉄骨鉄筋コンクリート造)で建てられています。本物件の交通アクセスは、東京メト…
図面 階数 面積 賃料(共益費込)
(坪単価)
保証金/敷金 礼金 入居可能日
2階 G 67.70坪
(223.83m2)
1,700,000
(25,107)
10ヶ月 1.0ヶ月 即日
新宿野村ビルの外観
物件番号:032283
更新日:2026/5/15
新宿区西新宿1-26-2
【竣工】1978/6(改修:2006)
【階建て】地上50F 、地下5F
【最寄駅】
都庁前駅3分
西新宿駅4分
新宿駅6分
【耐震】 旧耐震+補強済 or 基準OK
【基準階】 381.86坪 【エントランス】 全日開放(制限有)
【駐車場】 有り 【エレベーター】 26基
新宿野村ビルは、東京都新宿区西新宿1に位置する高層ビルで、日本を代表するオフィスビルの一つです。1978年に完成し、高さは約210メートル、地上48階、地下4階の構造を持っています。 特徴的な…
図面 階数 面積 賃料(共益費込)
(坪単価)
保証金/敷金 礼金 入居可能日
9階 N 72.57坪
(239.90m2)
(未公開) 12ヶ月 2027/9/1
32階 N 72.57坪
(239.90m2)
(未公開) 12ヶ月 2026/12/1
市ヶ谷中央ビルの外観
物件番号:054909
更新日:2026/5/18
新宿区市谷八幡町14
【竣工】1974/9(改修:2001)
【階建て】地上9F
【最寄駅】
市ヶ谷駅3分
【耐震】 旧耐震+補強済 or 基準OK
【基準階】 139.23坪 【エントランス】 平日・土開放
【駐車場】 有り 【エレベーター】 2基
市ヶ谷中央ビルは、東京都新宿区市谷八幡町に位置するオフィスビルです。1974年9月に竣工したS(鉄骨)造の地上9階建てです。最寄りの「市ヶ谷駅」には、JR総武線、東京メトロ有楽町線・南北線、…
図面 階数 面積 賃料(共益費込)
(坪単価)
保証金/敷金 礼金 入居可能日
6階 N 71.11坪
(235.08m2)
924,430
(13,000)
10ヶ月 1.0ヶ月 即日
第一原嶋ビルの外観
物件番号:033788
更新日:2026/5/19
新宿区四谷三栄町15-4
【竣工】1973/10
【階建て】地上9F 、地下1F
【最寄駅】
四ツ谷駅5分
四谷三丁目駅8分
曙橋駅9分
【耐震】 旧耐震
【基準階】 60.77坪 【エントランス】 全日開放(24h)
【駐車場】 有り 【エレベーター】 1基
四ツ谷駅まで徒歩5分!JRも使える便利な立地です!石張りの外観は落ち着いた印象です!駐車場設備もあり車を使用する企業様にもおすすめです!
図面 階数 面積 賃料(共益費込)
(坪単価)
保証金/敷金 礼金 入居可能日
3階 G 60.77坪
(200.89m2)
840,290
(13,827)
6ヶ月 1.0ヶ月 2026/8
四谷メイフラワーハウスの外観
物件番号:082090
更新日:2026/4/24
新宿区四谷坂町5-3
【竣工】1973/3
【階建て】地上4F 、地下1F
【最寄駅】
曙橋駅6分
四谷三丁目駅8分
四ツ谷駅10分
【耐震】 旧耐震
【基準階】 【エントランス】 オートロック
【駐車場】 無し 【エレベーター】 1基
曙橋駅から徒歩6分、新宿区四谷坂町の賃貸オフィスビルです。四谷メイフラワーハウスは、東京都新宿区四谷坂町5-3に位置するオフィスビルで、アクセスの良さと快適な設備が整ったビジネス拠点と…
図面 階数 面積 賃料(共益費込)
(坪単価)
保証金/敷金 礼金 入居可能日
図面
B1階 G 60.00坪
(198.35m2)
500,000
(8,333)
8ヶ月 1.0ヶ月 相談

※取引態様:媒介
※フロア図面と現況が異なる場合は現況を優先いたします。
※貸室内部の写真・貸室からの景色に関しては、現在の募集フロアと異なる場合がございます。

総数:35棟(46件)

(さいたま)の賃料相場

(さいたま)エリアの平均賃料

で募集している物件の、1坪あたりの賃料(共益費を含む)の平均価格です。
数値の右側にある矢印は、一週間前の数値と比較した結果を表しています。
賃料価格は毎日集計をしている最新の値です。

  • 2040 未調査
  • 4060 未調査
  • 60100 未調査
  • 100坪以上 未調査

(さいたま)エリアの募集賃料

の1坪あたりの賃料(共益費を含む)価格帯ごとの募集物件数です。
表の数値をクリックすると募集物件の一覧表が表示します。

【2026/05/20更新】