さいたまの貸事務所から希望エリアの物件を検索!
0120-33-9533
ご相談、お問合せ

お問合せはこちら

※ご入居を検討されているお客様向けの情報サイトです。
※駐車場単体・管理会社・テナントに関するお問合せにはお応えいたしかねます。
ご相談、お問合せ
0120-33-9533
※ご入居を検討されているお客様向けの情報サイトです。
※駐車場単体・管理会社・テナントに関するお問合せにはお応えいたしかねます。

の(200坪以上)の貸事務所・賃貸オフィス一覧

 
 

総数:11棟(13件)
  • 1
Dタワー西新宿の外観
物件番号:075335
更新日:2026/5/11
新宿区西新宿6-11-3
【竣工】2020/4(改修:2022)
【階建て】地上29F 、地下2F
【最寄駅】
西新宿駅4分
都庁前駅5分
西武新宿駅13分
【耐震】 新耐震+免震
【基準階】 307.18坪 【エントランス】 全日開放(制限有)
【駐車場】 有り 【エレベーター】 6基
新宿区西新宿6-11にある、Dタワー西新宿です。最寄駅は、東京メトロ丸ノ内線の西新宿駅です。都営大江戸線の都庁前駅も徒歩5分圏内でアクセス可能です。周辺は、西新宿エリアの高層オフィスビル…
図面 階数 面積 賃料(共益費込)
(坪単価)
保証金/敷金 礼金 入居可能日
7階 N 307.18坪
(1015.48m2)
(未公開) 12ヶ月 即日
新宿フロントタワーの外観
物件番号:058784
更新日:2026/4/15
新宿区北新宿2-21-1
【竣工】2011/6
【階建て】地上35F 、地下2F
【最寄駅】
西新宿駅4分
中野坂上駅8分
大久保駅13分
【耐震】 新耐震+制震
【基準階】 523.21坪 【エントランス】 平日のみ開放
【駐車場】 有り 【エレベーター】 18基
西新宿エリア。青梅街道沿いの高層オフィスタワー。新宿フロントタワーは、新宿区北新宿2丁目、最寄り駅は東京メトロ丸ノ内線の西新宿駅。都営大江戸線・中野坂上駅からも徒歩10分圏内。青梅街道…
図面 階数 面積 賃料(共益費込)
(坪単価)
保証金/敷金 礼金 入居可能日
17階 N 523.21坪
(1729.63m2)
(未公開) (未公開) 2026/11/1
西新宿三井ビルディングの外観
物件番号:032403
更新日:2026/5/19
新宿区西新宿6-24-1
【竣工】1999/4
【階建て】地上27F 、地下2F
【最寄駅】
西新宿駅4分
都庁前駅8分
新宿駅15分
【耐震】 新耐震
【基準階】 476.80坪 【エントランス】 全日開放(制限有)
【駐車場】 有り 【エレベーター】 10基
西新宿三井ビルディングは、新宿区西新宿6丁目に位置し、東京都心の中でもアクセスが非常に便利なエリアにあります。最寄駅は、東京メトロ丸ノ内線の西新宿駅から徒歩4分圏内、さらに都営大江戸…
図面 階数 面積 賃料(共益費込)
(坪単価)
保証金/敷金 礼金 入居可能日
12階 N 238.40坪
(788.10m2)
(未公開) (未公開) 2027/1/1
東京オペラシティの外観
物件番号:032314
更新日:2026/4/20
新宿区西新宿3-20-2
【竣工】1996/7
【階建て】地上54F 、地下4F
【最寄駅】
初台駅1分
西新宿五丁目駅9分
参宮橋駅14分
【耐震】 新耐震
【基準階】 653.00坪 【エントランス】 全日開放(制限有)
【駐車場】 有り 【エレベーター】 45基
東京オペラシティは、新宿区西新宿3丁目に位置する超高層の複合型オフィスビルです。住所は東京都新宿区西新宿3-20-2で、京王新線「初台駅」と地下通路で直結しており、駅改札からビル内まで雨に…
図面 階数 面積 賃料(共益費込)
(坪単価)
保証金/敷金 礼金 入居可能日
37階 N 237.81坪
(786.15m2)
(未公開) 12ヶ月 2026/9
予定
新宿パークタワーの外観
物件番号:032145
更新日:2026/5/18
新宿区西新宿3-7-1
【竣工】1994/4
【階建て】地上52F 、地下5F
【最寄駅】
都庁前駅10分
初台駅10分
【耐震】 新耐震+制震
【基準階】 1030.08坪 【エントランス】 全日開放(制限有)
【駐車場】 有り 【エレベーター】 35基
新宿パークタワーは、新宿新都心のビジネスエリアに位置するハイグレードな賃貸オフィスビルです。所在地は新宿区西新宿3-7-1で、京王新線の初台駅および都営大江戸線の都庁前駅から徒歩10分圏内…
図面 階数 面積 賃料(共益費込)
(坪単価)
保証金/敷金 礼金 入居可能日
30階 N 397.04坪
(1312.50m2)
(未公開) 12ヶ月 2028/1
予定
31階 N 964.36坪
(3187.98m2)
(未公開) 12ヶ月 2028/1
予定
西新宿大京ビルの外観
物件番号:036780
更新日:2026/5/8
新宿区西新宿7-21-3
【竣工】1994/2(改修:2022)
【階建て】地上10F 、地下2F
【最寄駅】
西新宿駅1分
新宿西口駅7分
都庁前駅7分
【耐震】 新耐震
【基準階】 250.86坪 【エントランス】 全日開放(制限有)
【駐車場】 有り 【エレベーター】 3基
西新宿大京ビルは、新宿区西新宿7-21-3に位置する大型賃貸オフィスビルです。最寄り駅は東京メトロ丸ノ内線「西新宿駅」で、徒歩1分という駅近の抜群の立地を誇ります。さらに徒歩7分ほどで都営…
図面 階数 面積 賃料(共益費込)
(坪単価)
保証金/敷金 礼金 入居可能日
4階 N 250.63坪
(828.56m2)
(未公開) 12ヶ月 即日
リエール市ヶ谷の外観
物件番号:049001
更新日:2026/5/13
新宿区市谷仲之町4-39
【竣工】1992/11
【階建て】地上6F
【最寄駅】
曙橋駅5分
牛込柳町駅8分
【耐震】 新耐震
【基準階】 209.00坪 【エントランス】 全日開放(24h)
【駐車場】 有り 【エレベーター】
リエール市ヶ谷は、東京都新宿区市谷仲之町に位置する地上6階建ての賃貸オフィスビルです。1992年11月に竣工し、鉄筋コンクリート造(RC造)で建設されており、新耐震基準に適合しています。交通…
図面 階数 面積 賃料(共益費込)
(坪単価)
保証金/敷金 礼金 入居可能日
1-2階 G 436.89坪
(1444.30m2)
(未公開) 10ヶ月 2026/10
予定
西新宿プライムスクエアの外観
物件番号:032172
更新日:2026/5/11
新宿区西新宿7-5-25
【竣工】1988/11
【階建て】地上16F 、地下2F
【最寄駅】
大久保駅3分
西武新宿駅3分
新宿西口駅5分
【耐震】 新耐震
【基準階】 436.74坪 【エントランス】 全日開放(制限有)
【駐車場】 有り 【エレベーター】 10基
JR総武線沿いに建つハイグレードな大型オフィスビル。西新宿プライムスクエアは東京都新宿区西新宿7-5-25にあります。JR、東京メトロ、都営地下鉄、私鉄が乗り入れるビックターミナル新宿駅をは…
図面 階数 面積 賃料(共益費込)
(坪単価)
保証金/敷金 礼金 入居可能日
13階 N 219.70坪
(726.28m2)
(未公開) 12ヶ月 即日
13階 N 353.59坪
(1168.90m2)
(未公開) 12ヶ月 即日
文芸社新宿御苑ビルの外観
物件番号:071364
更新日:2026/5/11
新宿区新宿1-11-7
【竣工】1986/3
【階建て】地上8F
【最寄駅】
新宿御苑前駅3分
新宿三丁目駅10分
【耐震】 新耐震
【基準階】 【エントランス】
【駐車場】 無し 【エレベーター】 2基
文芸社新宿御苑ビルは、東京都新宿区新宿1丁目に位置する地上8階建てのオフィスビルです。1986年3月に竣工し、構造は鉄骨鉄筋コンクリート造(SRC造)で建てられています。新耐震基準に適合して…
図面 階数 面積 賃料(共益費込)
(坪単価)
保証金/敷金 礼金 入居可能日
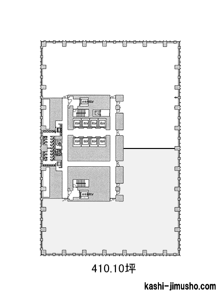
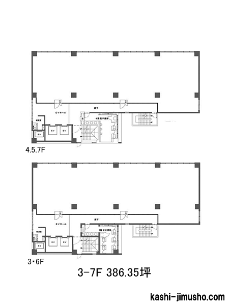
3-7階 N 386.35坪
(1277.18m2)
6,181,623
(16,000)
10ヶ月 1.0ヶ月 即日
新宿野村ビルの外観
物件番号:032283
更新日:2026/5/15
新宿区西新宿1-26-2
【竣工】1978/6(改修:2006)
【階建て】地上50F 、地下5F
【最寄駅】
都庁前駅3分
西新宿駅4分
新宿駅6分
【耐震】 旧耐震+補強済 or 基準OK
【基準階】 381.86坪 【エントランス】 全日開放(制限有)
【駐車場】 有り 【エレベーター】 26基
新宿野村ビルは、東京都新宿区西新宿1に位置する高層ビルで、日本を代表するオフィスビルの一つです。1978年に完成し、高さは約210メートル、地上48階、地下4階の構造を持っています。 特徴的な…
図面 階数 面積 賃料(共益費込)
(坪単価)
保証金/敷金 礼金 入居可能日
34階 N 381.86坪
(1262.36m2)
(未公開) 12ヶ月 即日
(仮称)四谷2丁目PJの外観
物件番号:083612
更新日:2026/4/21
新宿区四谷2-9
【竣工】2026/12
【階建て】地上10F
【最寄駅】
四ツ谷駅5分
【耐震】 新耐震
【基準階】 44.22坪 【エントランス】
【駐車場】 - 【エレベーター】 1基
2026年12月竣工予定の新築オフィスビルです!
図面 階数 面積 賃料(共益費込)
(坪単価)
保証金/敷金 礼金 入居可能日
1-10階 G 418.92坪
(1384.87m2)
(未公開) (未公開) 2027/3

※取引態様:媒介
※フロア図面と現況が異なる場合は現況を優先いたします。
※貸室内部の写真・貸室からの景色に関しては、現在の募集フロアと異なる場合がございます。

総数:11棟(13件)
  • 1

(さいたま)の賃料相場

(さいたま)エリアの平均賃料

で募集している物件の、1坪あたりの賃料(共益費を含む)の平均価格です。
数値の右側にある矢印は、一週間前の数値と比較した結果を表しています。
賃料価格は毎日集計をしている最新の値です。

  • 2040 未調査
  • 4060 未調査
  • 60100 未調査
  • 100坪以上 未調査

(さいたま)エリアの募集賃料

の1坪あたりの賃料(共益費を含む)価格帯ごとの募集物件数です。
表の数値をクリックすると募集物件の一覧表が表示します。

【2026/05/20更新】