さいたまの貸事務所から希望エリアの物件を検索!
0120-33-9533
ご相談、お問合せ

お問合せはこちら

※ご入居を検討されているお客様向けの情報サイトです。
※駐車場単体・管理会社・テナントに関するお問合せにはお応えいたしかねます。
ご相談、お問合せ
0120-33-9533
※ご入居を検討されているお客様向けの情報サイトです。
※駐車場単体・管理会社・テナントに関するお問合せにはお応えいたしかねます。

の(30~40坪)の貸事務所・賃貸オフィス一覧

 
 

総数:62棟(73件)
VORT西新宿NEXの外観
物件番号:081146
更新日:2026/5/18
新宿区西新宿8-5-6
【竣工】2024/2
【階建て】地上9F
【最寄駅】
西新宿駅1分
新宿西口駅8分
【耐震】 新耐震
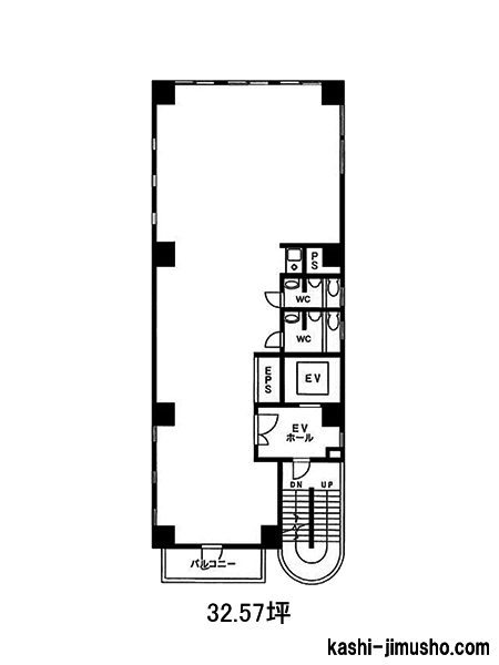
【基準階】 38.32坪 【エントランス】 オートロック
【駐車場】 無し 【エレベーター】 1基
VORT西新宿NEXは、東京都新宿区西新宿8-5に位置する、2024年2月に竣工した賃貸オフィスビルです。東京メトロ丸ノ内線 西新宿駅から徒歩1分でアクセス可能です。また都営大江戸線の新宿西口駅から…
図面 階数 面積 賃料(共益費込)
(坪単価)
保証金/敷金 礼金 入居可能日
4階 G 38.32坪
(126.70m2)
(未公開) 5ヶ月 2026/10/22
クロスシー新宿御苑前ビルの外観
物件番号:080463
更新日:2026/5/13
新宿区四谷4-30-23
【竣工】2023/7
【階建て】地上11F
【最寄駅】
新宿御苑前駅4分
新宿三丁目駅10分
【耐震】 新耐震
【基準階】 56.52坪 【エントランス】 平日のみ開放
【駐車場】 有り 【エレベーター】 1基
クロスシー新宿御苑前ビルは、2023年に竣工したバリューの高い賃貸オフィスビルです。新宿区四谷4丁目30番23号に位置し、東京メトロ丸ノ内線の新宿御苑前駅から徒歩わずか4分の好立地。さらに徒…
図面 階数 面積 賃料(共益費込)
(坪単価)
保証金/敷金 礼金 入居可能日
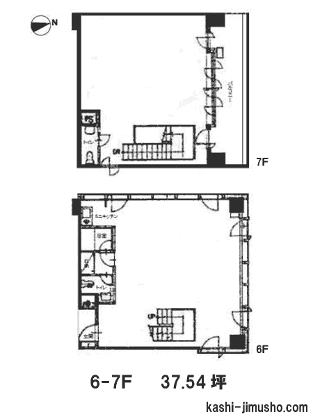
10階 G 37.05坪
(122.48m2)
(未公開) (未公開) 即日
コレタス高田馬場の外観
物件番号:080400
更新日:2026/5/15
新宿区高田馬場2-8-2
【竣工】2023/1
【階建て】地上12F 、地下1F
【最寄駅】
西早稲田駅4分
高田馬場駅5分
学習院下駅6分
【耐震】 新耐震
【基準階】 33.42坪 【エントランス】 全日開放(24h)
【駐車場】 無し 【エレベーター】 1基
コレタス高田馬場は、新宿区高田馬場2丁目に誕生した、存在感のある外観と使いやすさを兼ね備えたオフィスビルです。ガラス張りのファサードが印象的で、街並みの中でもひときわ目を引くスタイリ…
図面 階数 面積 賃料(共益費込)
(坪単価)
保証金/敷金 礼金 入居可能日
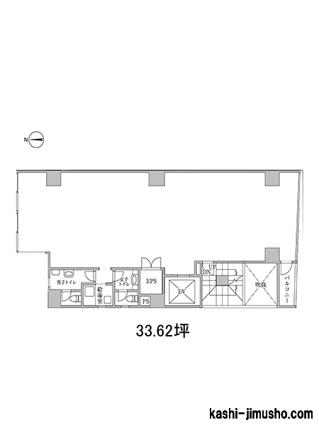
9階 G 33.42坪
(110.47m2)
800,000
(23,938)
8ヶ月 1.0ヶ月 即日
近鉄新宿御苑ビルの外観
物件番号:058337
更新日:2026/4/20
新宿区新宿1-8-4
【竣工】2011/2
【階建て】地上9F 、地下1F
【最寄駅】
新宿御苑前駅1分
新宿三丁目駅7分
新宿駅13分
【耐震】 新耐震
【基準階】 60.00坪 【エントランス】 平日・土開放
【駐車場】 有り 【エレベーター】 1基
近鉄新宿御苑ビルは、新宿区新宿1丁目に位置する賃貸オフィスビルで、2011年に竣工した新耐震基準を満たす安心の建物です。構造は鉄骨造・地上9階建て(地下1階)となっており、基準階は約60坪の…
図面 階数 面積 賃料(共益費込)
(坪単価)
保証金/敷金 礼金 入居可能日
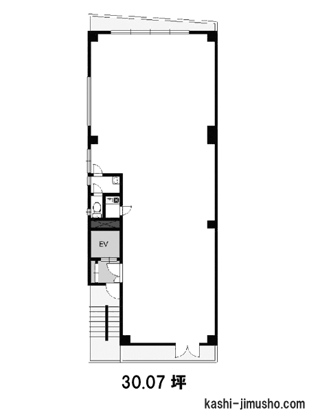
3階 G 33.00坪
(109.09m2)
(未公開) 12ヶ月 即日
第13大鉄ビルの外観
物件番号:051602
更新日:2026/5/1
新宿区新宿1-9-7
【竣工】2007/1
【階建て】地上10F
【最寄駅】
新宿御苑前駅1分
新宿三丁目駅7分
新宿駅15分
【耐震】 新耐震
【基準階】 20.99坪 【エントランス】 平日のみ開放
【駐車場】 無し 【エレベーター】 1基
新宿通り沿いの角ビル!目立つ立地!新宿御苑駅1分!駅から近く交通アクセス快適!近代的で清潔感のある外観デザイン!企業の印象UP!
図面 階数 面積 賃料(共益費込)
(坪単価)
保証金/敷金 礼金 入居可能日
図面
1-2階 G 35.95坪
(118.84m2)
1,368,000
(38,053)
10ヶ月 2026/5/9
東京オペラシティの外観
物件番号:032314
更新日:2026/4/20
新宿区西新宿3-20-2
【竣工】1996/7
【階建て】地上54F 、地下4F
【最寄駅】
初台駅1分
西新宿五丁目駅9分
参宮橋駅14分
【耐震】 新耐震
【基準階】 653.00坪 【エントランス】 全日開放(制限有)
【駐車場】 有り 【エレベーター】 45基
東京オペラシティは、新宿区西新宿3丁目に位置する超高層の複合型オフィスビルです。住所は東京都新宿区西新宿3-20-2で、京王新線「初台駅」と地下通路で直結しており、駅改札からビル内まで雨に…
図面 階数 面積 賃料(共益費込)
(坪単価)
保証金/敷金 礼金 入居可能日
8階 N 36.60坪
(120.99m2)
(未公開) 12ヶ月 2026/6/4
新宿アイランドタワーの外観
物件番号:032295
更新日:2026/5/20
新宿区西新宿6-5-1
【竣工】1995/1
【階建て】地上44F 、地下4F
【最寄駅】
西新宿駅1分
都庁前駅5分
新宿駅8分
【耐震】 新耐震
【基準階】 784.00坪 【エントランス】 全日開放(制限有)
【駐車場】 有り 【エレベーター】 32基
新宿アイランドタワーは、新宿区西新宿6-5-1に所在する超高層オフィスビルです。東京メトロ丸ノ内線の西新宿駅に直結しており、雨の日でも濡れずにアクセスできる抜群の立地が大きな魅力です。ま…
図面 階数 面積 賃料(共益費込)
(坪単価)
保証金/敷金 礼金 入居可能日
6階 N 38.25坪
(126.46m2)
(未公開) (未公開) (未公開) 2026/11
アイタウン・プラザの外観
物件番号:032382
更新日:2026/5/18
新宿区西新宿6-21-1
【竣工】1994/10
【階建て】地上30F 、地下4F
【最寄駅】
都庁前駅7分
西新宿駅8分
【耐震】 新耐震
【基準階】 140.00坪 【エントランス】 平日・土開放
【駐車場】 有り 【エレベーター】 12基
アイタウン・プラザは、東京都新宿区西新宿6-21-1に位置する超高層のハイグレードオフィスビルです。1994年10月に竣工した本物件は、地上30階・地下4階建てというスケールを誇り、構造は鉄骨鉄筋…
図面 階数 面積 賃料(共益費込)
(坪単価)
保証金/敷金 礼金 入居可能日
3階 G 38.14坪
(126.10m2)
(未公開) 5ヶ月 1.0ヶ月 即日
新宿セントランドビルの外観
物件番号:032276
更新日:2026/5/18
新宿区西新宿3-5-1
【竣工】1994/4(改修:2022)
【階建て】地上10F 、地下2F
【最寄駅】
都庁前駅3分
新宿駅11分
【耐震】 新耐震
【基準階】 72.12坪 【エントランス】 全日開放(制限有)
【駐車場】 無し 【エレベーター】 2基
新宿区西新宿3-5-1にある、新宿セントランドビルです。最寄り駅は、都営大江戸線の都庁前駅です。徒歩3分圏内で、アクセス可能な好立地です。周辺には、東京都庁や新宿中央公園がございます。公…
図面 階数 面積 賃料(共益費込)
(坪単価)
保証金/敷金 礼金 入居可能日
4階 G 37.83坪
(125.06m2)
(未公開) (未公開) 即日
KDX新宿ビルの外観
物件番号:032275
更新日:2026/5/19
新宿区西新宿3-2-7
【竣工】1993/5
【階建て】地上11F 、地下4F
【最寄駅】
新宿駅5分
南新宿駅7分
【耐震】 新耐震
【基準階】 142.38坪 【エントランス】 全日開放(制限有)
【駐車場】 有り 【エレベーター】 3基
KDX新宿ビルは、東京都新宿区西新宿3に位置するオフィスビルで、ビジネスパーソンにとって非常に便利な環境が整っています。1993年に竣工し、地上11階、地下4階構造のこのビルは、鉄骨造(S造)…
図面 階数 面積 賃料(共益費込)
(坪単価)
保証金/敷金 礼金 入居可能日
1階 G 38.52坪
(127.34m2)
(未公開) 12ヶ月 即日
10階 N 30.42坪
(99.17m2)
(未公開) 12ヶ月 2026/7/1
アルマビルの外観
物件番号:033425
更新日:2026/5/18
新宿区北新宿1-4-1
【竣工】1992/10
【階建て】地上9F 、地下1F
【最寄駅】
大久保駅3分
新大久保駅6分
西武新宿駅6分
【耐震】 新耐震
【基準階】 41.53坪 【エントランス】 オートロック
【駐車場】 無し 【エレベーター】 1基
アルマビルは、新宿区北新宿1-4-1にある物件です。最寄駅は、JR総武線の大久保駅です。徒歩3分圏内でアクセス可能です。徒歩6分圏内でJR山手線の新大久保駅、西武新宿線の西武新宿駅、徒歩9分圏…
図面 階数 面積 賃料(共益費込)
(坪単価)
保証金/敷金 礼金 入居可能日
NEW2階 G 37.51坪
(124.01m2)
712,690
(19,000)
4ヶ月 即日
グランドステータス寿賀原ビルの外観
物件番号:034476
更新日:2026/5/7
新宿区弁天町2
【竣工】1992/10
【階建て】地上9F
【最寄駅】
早稲田駅5分
牛込柳町駅9分
神楽坂駅10分
【耐震】 新耐震
【基準階】 34.84坪 【エントランス】
【駐車場】 無し 【エレベーター】 1基
グランドステータス寿賀原ビルは、東京都新宿区弁天町2に位置する地上9階建てのオフィスビルです。1992年10月に竣工し、S造で建てられています。新耐震基準に適合しており、安全性にも優れていま…
図面 階数 面積 賃料(共益費込)
(坪単価)
保証金/敷金 礼金 入居可能日
3階 G 34.84坪
(115.17m2)
330,000
(9,472)
3ヶ月 2026/6
中旬
スタッフハウスビルの外観
物件番号:080290
更新日:2026/5/1
新宿区内藤町1-5
【竣工】1992/6
【階建て】地上5F 、地下2F
【最寄駅】
新宿御苑前駅8分
四谷三丁目駅8分
千駄ヶ谷駅10分
【耐震】 新耐震
【基準階】 48.24坪 【エントランス】
【駐車場】 有り 【エレベーター】 1基
スタッフハウスビルは、東京都新宿区内藤町に位置するオフィスビルです。1992年6月に竣工したSRC(鉄骨鉄筋コンクリート)造の地上5階・地下2階建てで、新耐震基準に対応した堅牢な構造が特徴で…
図面 階数 面積 賃料(共益費込)
(坪単価)
保証金/敷金 礼金 入居可能日
4階 N 34.23坪
(113.16m2)
570,295
(16,661)
5ヶ月 即日
WISビルの外観
物件番号:032211
更新日:2026/4/27
新宿区西新宿4-29-6
【竣工】1992/6
【階建て】地上7F 、地下2F
【最寄駅】
西新宿五丁目駅6分
初台駅10分
【耐震】 新耐震
【基準階】 90.32坪 【エントランス】 全日開放(24h)
【駐車場】 無し 【エレベーター】 2基
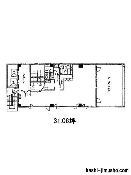
WISビルは、新宿区西新宿4-29-6に位置する賃貸オフィスビルです。最寄り駅は都営大江戸線の西新宿五丁目駅で、徒歩6分ほどでアクセス可能です。さらに、都庁前駅までは徒歩8分、京王新線の初台駅…
図面 階数 面積 賃料(共益費込)
(坪単価)
保証金/敷金 礼金 入居可能日
7階 G 31.06坪
(102.67m2)
481,430
(15,500)
7ヶ月 1.0ヶ月 2026/7/1
飯田橋リープレックスビズの外観
物件番号:034177
更新日:2026/5/13
新宿区新小川町1-14
【竣工】1992/5
【階建て】地上8F 、地下1F
【最寄駅】
飯田橋駅3分
新宿駅11分
【耐震】 新耐震
【基準階】 63.96坪 【エントランス】 平日のみ開放
【駐車場】 無し 【エレベーター】 1基
飯田橋リープレックスビズは、東京都新宿区新小川町1-14に位置するオフィスビルです。最寄りは南北線・都営大江戸線・JR総武線・東西線・有楽町線の「飯田橋」駅から徒歩3分という好立地にあり、…
図面 階数 面積 賃料(共益費込)
(坪単価)
保証金/敷金 礼金 入居可能日
図面
6階 G 40.56坪
(134.08m2)
(未公開) (未公開) 2026/8
予定
新宿高砂ビルの外観
物件番号:034568
更新日:2026/4/20
新宿区富久町16-5
【竣工】1992/5
【階建て】地上11F 、地下1F
【最寄駅】
新宿御苑前駅7分
新宿三丁目駅9分
【耐震】 新耐震
【基準階】 65.20坪 【エントランス】 平日・土開放
【駐車場】 有り 【エレベーター】 2基
新宿高砂ビルは、新宿区富久町16-5に位置します。東京メトロ丸ノ内線の新宿御苑前駅から徒歩5分、東京メトロ副都心線および都営新宿線の新宿三丁目駅からも徒歩7分という絶好のロケーションにあ…
図面 階数 面積 賃料(共益費込)
(坪単価)
保証金/敷金 礼金 入居可能日
1階 G 40.17坪
(132.79m2)
562,380
(14,000)
3,000,000
(74,683)
1.0ヶ月 即日
LOGビルの外観
物件番号:060172
更新日:2026/5/13
新宿区山吹町344
【竣工】1991/4
【階建て】地上7F
【最寄駅】
江戸川橋駅4分
神楽坂駅8分
【耐震】 新耐震
【基準階】 31.22坪 【エントランス】
【駐車場】 有り 【エレベーター】 1基
茶色いタイル張りの重厚感溢れる貸事務所。室内の形が長方形でレイアウトが組みやすい事務所。オシャレな店舗仕様の事務所。
図面 階数 面積 賃料(共益費込)
(坪単価)
保証金/敷金 礼金 入居可能日
3階 G 31.22坪
(103.21m2)
326,391
(10,455)
4ヶ月 1.0ヶ月 即日
新宿中興ビルの外観
物件番号:034152
更新日:2026/5/1
新宿区下宮比町3-13
【竣工】1990/11
【階建て】地上5F 、地下1F
【最寄駅】
飯田橋駅3分
【耐震】 新耐震
【基準階】 25.87坪 【エントランス】
【駐車場】 有り 【エレベーター】 1基
新宿中興ビルは、東京都新宿区下宮比町に位置する、アクセスの良さと快適な設備を兼ね備えたオフィスビルです。東京メトロ東西線、有楽町線、南北線、都営大江戸線「飯田橋駅」から徒歩3分、JR総…
図面 階数 面積 賃料(共益費込)
(坪単価)
保証金/敷金 礼金 入居可能日
2階 G 30.00坪
(99.17m2)
460,000
(15,333)
6ヶ月 1.0ヶ月 即日
第3玉屋ビルの外観
物件番号:033055
更新日:2026/4/20
新宿区新宿2-15-26
【竣工】1990/10
【階建て】地上10F
【最寄駅】
新宿御苑前駅3分
新宿三丁目駅4分
【耐震】 新耐震
【基準階】 33.35坪 【エントランス】
【駐車場】 無し 【エレベーター】 1基
新宿エリアに位置する第3玉屋ビルは、新宿区新宿2-15-26にある魅力的な賃貸オフィスビルです。このビルは、カーテンウォールが施されたスタイリッシュな外観が特徴で、周囲の景観にも溶け込みな…
図面 階数 面積 賃料(共益費込)
(坪単価)
保証金/敷金 礼金 入居可能日
5階 G 33.35坪
(110.25m2)
600,300
(18,000)
6ヶ月 即日
6階 G 33.35坪
(110.25m2)
600,300
(18,000)
6ヶ月 即日
新宿モノリスビルの外観
物件番号:032291
更新日:2026/5/11
新宿区西新宿2-3-1
【竣工】1990/6
【階建て】地上30F 、地下3F
【最寄駅】
新宿駅4分
都庁前駅5分
【耐震】 新耐震
【基準階】 505.44坪 【エントランス】 全日開放(制限有)
【駐車場】 有り 【エレベーター】 16基
新宿モノリスビルは、新宿区西新宿2丁目に所在する大規模なハイグレードオフィスビルです。住所は東京都新宿区西新宿2-3-1で、JR各線・都営新宿線などが乗り入れる「新宿駅」から徒歩4分、都営大…
図面 階数 面積 賃料(共益費込)
(坪単価)
保証金/敷金 礼金 入居可能日
2階 N 35.97坪
(118.91m2)
(未公開) 12ヶ月 即日
MIビルの外観
物件番号:033445
更新日:2026/5/1
新宿区北新宿1-12-12
【竣工】1989/12
【階建て】地上8F
【最寄駅】
大久保駅4分
新大久保駅9分
【耐震】 新耐震
【基準階】 30.50坪 【エントランス】 全日開放(制限有)
【駐車場】 無し 【エレベーター】 1基
MIビルは、東京都新宿区北新宿に位置し、利便性と快適な設備を兼ね備えたオフィスビルです。最寄り駅であるJR総武線「大久保駅」から徒歩4分、さらにJR山手線「新大久保駅」から徒歩9分という好…
図面 階数 面積 賃料(共益費込)
(坪単価)
保証金/敷金 礼金 入居可能日
4階 G 30.50坪
(100.83m2)
457,500
(15,000)
6ヶ月 即日
アケボノ大鉄ビルの外観
物件番号:033836
更新日:2026/5/1
新宿区荒木町23-15
【竣工】1989/11
【階建て】地上11F
【最寄駅】
曙橋駅2分
四谷三丁目駅7分
【耐震】 新耐震
【基準階】 36.73坪 【エントランス】 全日開放(24h)
【駐車場】 有り 【エレベーター】 1基
外苑東通り沿いのわかりやすい立地!ガラス張りの外観が印象的な雰囲気のあるビル!ワンフロア・ワンテナントの使い勝手良好なオフィス空間!
図面 階数 面積 賃料(共益費込)
(坪単価)
保証金/敷金 礼金 入居可能日
7階 G 36.73坪
(121.42m2)
550,950
(15,000)
8ヶ月 2026/5
中旬
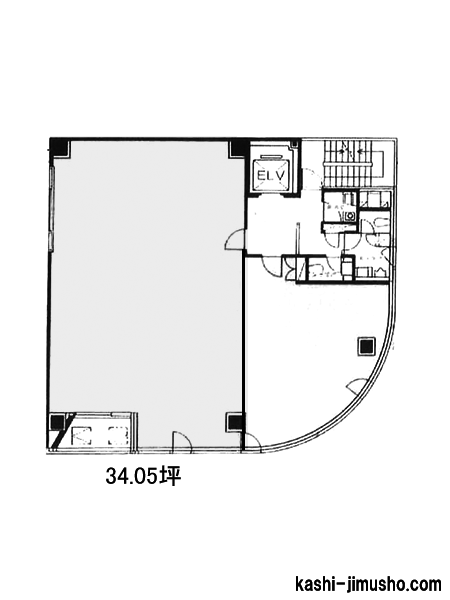
カテリーナ柳通りビルの外観
物件番号:032777
更新日:2026/5/13
新宿区新宿1-18-10
【竣工】1989/9
【階建て】地上9F
【最寄駅】
新宿御苑前駅3分
新宿三丁目駅5分
【耐震】 新耐震
【基準階】 35.00坪 【エントランス】 全日開放(24h)
【駐車場】 無し 【エレベーター】 1基
カテリーナ柳通りビルは、東京都新宿区新宿1-18-10に位置するオフィスビルです。1989年9月に竣工し、構造はSRC造、地上9階建てです。新耐震基準に適合しており、安全性の高い建物です。交通アク…
図面 階数 面積 賃料(共益費込)
(坪単価)
保証金/敷金 礼金 入居可能日
4階 G 35.31坪
(116.73m2)
(未公開) 12ヶ月 即日
TAKAHASHIビルの外観
物件番号:034737
更新日:2026/5/14
新宿区馬場下町61-6
【竣工】1989/5
【階建て】地上6F 、地下1F
【最寄駅】
早稲田駅1分
牛込柳町駅12分
神楽坂駅15分
【耐震】 新耐震
【基準階】 31.11坪 【エントランス】 全日開放(24h)
【駐車場】 無し 【エレベーター】 1基
グレーのタイル張りで綺麗な事務所!貸室入口にはシャッターが付いておりセキリュティ安心!機械警備・光ファイバーの設備を完備!
図面 階数 面積 賃料(共益費込)
(坪単価)
保証金/敷金 礼金 入居可能日
NEW4階 G 31.11坪
(102.85m2)
500,000
(16,072)
5ヶ月 1.0ヶ月 即日
YS第一ビルの外観
物件番号:032513
更新日:2026/4/22
新宿区西新宿7-15-4
【竣工】1989/5
【階建て】地上5F 、地下2F
【最寄駅】
新宿西口駅3分
西新宿駅5分
西武新宿駅5分
【耐震】 新耐震
【基準階】 【エントランス】 全日開放(制限有)
【駐車場】 有り 【エレベーター】 1基
新宿西口駅から徒歩3分!アクセス良好な賃貸オフィスです!周辺は飲食店も充実しており利便性の高い事務所です!機械警備を完備し、セキリュティ面でも安心です!
図面 階数 面積 賃料(共益費込)
(坪単価)
保証金/敷金 礼金 入居可能日
3階 G 38.97坪
(128.82m2)
584,550
(15,000)
6ヶ月 2026/10
中旬
岡田ビルの外観
物件番号:032772
更新日:2026/5/20
新宿区新宿1-10-5
【竣工】1989/4
【階建て】地上9F 、地下1F
【最寄駅】
新宿御苑前駅3分
新宿三丁目駅10分
【耐震】 新耐震
【基準階】 35.85坪 【エントランス】 全日開放(制限有)
【駐車場】 無し 【エレベーター】 1基
岡田ビルは、新宿区新宿1-10-5にある物件です。最寄駅は、東京メトロ丸ノ内線の新宿御苑前駅です。徒歩3分圏内でアクセス可能です。徒歩10分圏内で東京メトロ副都心線・都営新宿線の新宿三丁目駅…
図面 階数 面積 賃料(共益費込)
(坪単価)
保証金/敷金 礼金 入居可能日
2階 G 33.43坪
(110.52m2)
601,745
(18,000)
8ヶ月 相談
レアル新宿の外観
物件番号:075847
更新日:2026/5/18
新宿区百人町1-15-21
【竣工】1989/1
【階建て】地上7F
【最寄駅】
新大久保駅1分
大久保駅3分
西武新宿駅9分
【耐震】 新耐震
【基準階】 23.74坪 【エントランス】
【駐車場】 無し 【エレベーター】 1基
大久保駅・西武新宿駅も利用可能です!2002年竣工の新耐震基準を満たした物件です!ワンフロア・ワンテナントで使い勝手良好です!
図面 階数 面積 賃料(共益費込)
(坪単価)
保証金/敷金 礼金 入居可能日
NEW5-6階 G 40.00坪
(132.23m2)
1,200,000
(30,000)
13ヶ月 1.0ヶ月 相談
三辰ビルの外観
物件番号:033261
更新日:2026/5/19
新宿区大久保1-14-15
【竣工】1988/4(改修:2014)
【階建て】地上9F 、地下1F
【最寄駅】
新大久保駅5分
東新宿駅6分
西武新宿駅9分
【耐震】 新耐震
【基準階】 32.70坪 【エントランス】 全日開放(制限有)
【駐車場】 無し 【エレベーター】 1基
三辰ビルは、新宿区大久保1丁目に位置する、大久保通りに面した視認性の高い貸事務所物件です。大久保通り沿いにあるため、来訪者への案内もしやすく、ビジネスの拠点として利便性の高い立地にあ…
図面 階数 面積 賃料(共益費込)
(坪単価)
保証金/敷金 礼金 入居可能日
6階 G 32.70坪
(108.09m2)
555,730
(17,000)
6ヶ月 即日
丸正タケダビルの外観
物件番号:077581
更新日:2026/5/18
新宿区中落合3-29-13
【竣工】1988/1
【階建て】地上8F
【最寄駅】
落合南長崎駅3分
【耐震】 新耐震
【基準階】 24.95坪 【エントランス】 オートロック
【駐車場】 無し 【エレベーター】 1基
複数路線利用可能で交通アクセス抜群な貸事務所です!目白通り沿いの角に佇む物件です!共用部分は管理が行き届いていて清潔感があります!
図面 階数 面積 賃料(共益費込)
(坪単価)
保証金/敷金 礼金 入居可能日
1階 G 37.22坪
(123.07m2)
595,520
(16,000)
6ヶ月 2.0ヶ月 相談
第ニ手塚ビルの外観
物件番号:032412
更新日:2026/5/14
新宿区西新宿7-16-13
【竣工】1988
【階建て】地上8F 、地下1F
【最寄駅】
西武新宿駅2分
新宿西口駅3分
西新宿駅5分
【耐震】 新耐震
【基準階】 31.49坪 【エントランス】 平日のみ開放
【駐車場】 有り 【エレベーター】 1基
第2手塚ビルは、東京都新宿区西新宿7-16-13に位置する地上8階・地下1階建てのオフィスビルです。1988年に竣工し、構造は鉄骨鉄筋コンクリート造(SRC造)です。新耐震基準に適合していて、耐震性…
図面 階数 面積 賃料(共益費込)
(坪単価)
保証金/敷金 礼金 入居可能日
2階 G 31.49坪
(104.10m2)
(未公開) 12ヶ月 1.0ヶ月 即日

※取引態様:媒介
※フロア図面と現況が異なる場合は現況を優先いたします。
※貸室内部の写真・貸室からの景色に関しては、現在の募集フロアと異なる場合がございます。

総数:62棟(73件)

(さいたま)の賃料相場

(さいたま)エリアの平均賃料

で募集している物件の、1坪あたりの賃料(共益費を含む)の平均価格です。
数値の右側にある矢印は、一週間前の数値と比較した結果を表しています。
賃料価格は毎日集計をしている最新の値です。

  • 2040 未調査
  • 4060 未調査
  • 60100 未調査
  • 100坪以上 未調査

(さいたま)エリアの募集賃料

の1坪あたりの賃料(共益費を含む)価格帯ごとの募集物件数です。
表の数値をクリックすると募集物件の一覧表が表示します。

【2026/05/20更新】