さいたまの貸事務所から希望エリアの物件を検索!
0120-33-9533
ご相談、お問合せ

お問合せはこちら

※ご入居を検討されているお客様向けの情報サイトです。
※駐車場単体・管理会社・テナントに関するお問合せにはお応えいたしかねます。
ご相談、お問合せ
0120-33-9533
※ご入居を検討されているお客様向けの情報サイトです。
※駐車場単体・管理会社・テナントに関するお問合せにはお応えいたしかねます。

の(100~150坪)の貸事務所・賃貸オフィス一覧

 
 

総数:28棟(41件)
  • 1
第一白鳳ビルディングの外観
物件番号:082512
更新日:2026/5/12
新宿区新宿5-17-11
【竣工】2025/4
【階建て】地上11F 、地下2F
【最寄駅】
新宿三丁目駅1分
【耐震】 新耐震
【基準階】 121.01坪 【エントランス】 平日のみ開放
【駐車場】 有り 【エレベーター】 3基
2025年4月、新宿五丁目の中心地に誕生する「(仮称)第一白鳳ビルディング」は、地上11階・地下2階建てのハイグレードオフィスビルです。新宿三丁目駅から徒歩1分という抜群のアクセス性を誇り、…
図面 階数 面積 賃料(共益費込)
(坪単価)
保証金/敷金 礼金 入居可能日
5階 G 121.01坪
(400.05m2)
(未公開) 12ヶ月 即日
6階 G 121.01坪
(400.05m2)
(未公開) 12ヶ月 即日
7階 G 121.01坪
(400.05m2)
(未公開) 12ヶ月 即日
8階 G 121.01坪
(400.05m2)
(未公開) 1ヶ月 即日
9階 G 121.01坪
(400.05m2)
(未公開) 12ヶ月 即日

5件を確認する

西新宿ビジネスキューブの外観
物件番号:079415
更新日:2026/5/11
新宿区西新宿7-5-2
【竣工】2022/11
【階建て】地上8F
【最寄駅】
西武新宿駅5分
新宿西口駅5分
大久保駅7分
【耐震】 新耐震
【基準階】 105.18坪 【エントランス】 全日開放(制限有)
【駐車場】 有り 【エレベーター】 2基
西武新宿線「西武新宿」駅、都営大江戸線「新宿西口」駅徒歩5分。さらにJR「新宿」駅や「大久保」駅も徒歩圏内で利用できる「西新宿ビジネスキューブ」は、複数路線が利用可能な交通利便性に優れ…
図面 階数 面積 賃料(共益費込)
(坪単価)
保証金/敷金 礼金 入居可能日
3階 G 105.18坪
(347.71m2)
(未公開) 3ヶ月 即日
CIRCLES西新宿の外観
物件番号:079253
更新日:2026/5/8
新宿区西新宿3-6-4
【竣工】2022/8
【階建て】地上11F 、地下1F
【最寄駅】
都庁前駅9分
新宿駅10分
【耐震】 新耐震
【基準階】 123.21坪 【エントランス】 オートロック
【駐車場】 有り 【エレベーター】 2基
CIRCLES西新宿は、新宿区西新宿の便利なエリアに位置する新しい賃貸オフィスビルです。最寄り駅である都営大江戸線の「都庁前駅」までは徒歩7分、さらにJR各線および都営新宿線の「新宿駅」から…
図面 階数 面積 賃料(共益費込)
(坪単価)
保証金/敷金 礼金 入居可能日
2階 G 123.20坪
(407.30m2)
(未公開) 6ヶ月 即日
4階 G 123.21坪
(407.30m2)
(未公開) 6ヶ月 即日
7階 G 123.21坪
(407.30m2)
(未公開) 6ヶ月 即日
Dタワー西新宿の外観
物件番号:075335
更新日:2026/5/11
新宿区西新宿6-11-3
【竣工】2020/4(改修:2022)
【階建て】地上29F 、地下2F
【最寄駅】
西新宿駅4分
都庁前駅5分
西武新宿駅13分
【耐震】 新耐震+免震
【基準階】 307.18坪 【エントランス】 全日開放(制限有)
【駐車場】 有り 【エレベーター】 6基
新宿区西新宿6-11にある、Dタワー西新宿です。最寄駅は、東京メトロ丸ノ内線の西新宿駅です。都営大江戸線の都庁前駅も徒歩5分圏内でアクセス可能です。周辺は、西新宿エリアの高層オフィスビル…
図面 階数 面積 賃料(共益費込)
(坪単価)
保証金/敷金 礼金 入居可能日
6階 N 101.91坪
(336.89m2)
(未公開) 12ヶ月 即日
ストリーム市ヶ谷ビルの外観
物件番号:058218
更新日:2026/5/18
新宿区市谷本村町2-10
【竣工】2010/10
【階建て】地上9F 、地下1F
【最寄駅】
市ヶ谷駅5分
四ツ谷駅7分
【耐震】 新耐震+免震
【基準階】 122.72坪 【エントランス】 全日開放(制限有)
【駐車場】 有り 【エレベーター】 2基
ストリーム市ヶ谷ビルは、新宿区市谷本村町2-10にある物件です。徒歩7分圏内でJR中央線・JR総武線・東京メトロ丸ノ内線・東京メトロ南北線の四ツ谷駅、東京メトロ有楽町線・都営新宿線の市ヶ谷駅…
図面 階数 面積 賃料(共益費込)
(坪単価)
保証金/敷金 礼金 入居可能日
5階 G 122.72坪
(405.69m2)
(未公開) 12ヶ月 即日
西新宿三井ビルディングの外観
物件番号:032403
更新日:2026/5/19
新宿区西新宿6-24-1
【竣工】1999/4
【階建て】地上27F 、地下2F
【最寄駅】
西新宿駅4分
都庁前駅8分
新宿駅15分
【耐震】 新耐震
【基準階】 476.80坪 【エントランス】 全日開放(制限有)
【駐車場】 有り 【エレベーター】 10基
西新宿三井ビルディングは、新宿区西新宿6丁目に位置し、東京都心の中でもアクセスが非常に便利なエリアにあります。最寄駅は、東京メトロ丸ノ内線の西新宿駅から徒歩4分圏内、さらに都営大江戸…
図面 階数 面積 賃料(共益費込)
(坪単価)
保証金/敷金 礼金 入居可能日
13階 N 117.91坪
(390.12m2)
(未公開) (未公開) 2027/2/4
16階 N 118.01坪
(390.12m2)
(未公開) (未公開) 2026/11/1
19階 N 120.39坪
(397.99m2)
(未公開) (未公開) 2026/6/1
東京オペラシティの外観
物件番号:032314
更新日:2026/4/20
新宿区西新宿3-20-2
【竣工】1996/7
【階建て】地上54F 、地下4F
【最寄駅】
初台駅1分
西新宿五丁目駅9分
参宮橋駅14分
【耐震】 新耐震
【基準階】 653.00坪 【エントランス】 全日開放(制限有)
【駐車場】 有り 【エレベーター】 45基
東京オペラシティは、新宿区西新宿3丁目に位置する超高層の複合型オフィスビルです。住所は東京都新宿区西新宿3-20-2で、京王新線「初台駅」と地下通路で直結しており、駅改札からビル内まで雨に…
図面 階数 面積 賃料(共益費込)
(坪単価)
保証金/敷金 礼金 入居可能日
11階 N 112.23坪
(371.01m2)
(未公開) 12ヶ月 2026/12
予定
パークウエストビルの外観
物件番号:032360
更新日:2026/5/20
新宿区西新宿6-12-1
【竣工】1996/6
【階建て】地上13F 、地下2F
【最寄駅】
西新宿駅7分
都庁前駅8分
新宿駅17分
【耐震】 新耐震
【基準階】 252.79坪 【エントランス】 全日開放(制限有)
【駐車場】 有り 【エレベーター】 4基
パークウエストビルは、新宿区西新宿6-12-1に位置する大型賃貸オフィスビルです。東京メトロ丸ノ内線「西新宿駅」まで徒歩4分、都営大江戸線「都庁前駅」へは徒歩6分、さらにJR各線・京王線など…
図面 階数 面積 賃料(共益費込)
(坪単価)
保証金/敷金 礼金 入居可能日
10階 N 127.29坪
(420.79m2)
3,054,960
(24,000)
10ヶ月 1.0ヶ月 即日
13階 N 120.93坪
(399.76m2)
2,902,320
(24,000)
10ヶ月 1.0ヶ月 即日
新宿スクエアタワーの外観
物件番号:035551
更新日:2026/5/11
新宿区西新宿6-22-1
【竣工】1994/10
【階建て】地上31F 、地下4F
【最寄駅】
都庁前駅5分
西新宿駅7分
西新宿五丁目駅7分
【耐震】 新耐震
【基準階】 289.08坪 【エントランス】 平日・土開放
【駐車場】 有り 【エレベーター】 12基
新宿スクエアタワーは、新宿区西新宿6丁目に位置し、都営大江戸線の都庁前駅から徒歩5分、東京メトロ丸ノ内線の西新宿駅、都営大江戸線の西新宿五丁目駅からも徒歩圏内というアクセスの良い立地…
図面 階数 面積 賃料(共益費込)
(坪単価)
保証金/敷金 礼金 入居可能日
6階 N 143.71坪
(475.08m2)
(未公開) (未公開) 2026/7/1
西新宿大京ビルの外観
物件番号:036780
更新日:2026/5/8
新宿区西新宿7-21-3
【竣工】1994/2(改修:2022)
【階建て】地上10F 、地下2F
【最寄駅】
西新宿駅1分
都庁前駅7分
新宿西口駅7分
【耐震】 新耐震
【基準階】 250.86坪 【エントランス】 全日開放(制限有)
【駐車場】 有り 【エレベーター】 3基
西新宿大京ビルは、新宿区西新宿7-21-3に位置する大型賃貸オフィスビルです。最寄り駅は東京メトロ丸ノ内線「西新宿駅」で、徒歩1分という駅近の抜群の立地を誇ります。さらに徒歩7分ほどで都営…
図面 階数 面積 賃料(共益費込)
(坪単価)
保証金/敷金 礼金 入居可能日
3階 G 142.87坪
(472.32m2)
(未公開) 12ヶ月 2026/9
上旬
エステック情報ビルの外観
物件番号:032173
更新日:2026/5/9
新宿区西新宿1-24-1
【竣工】1992/10
【階建て】地上28F 、地下6F
【最寄駅】
都庁前駅4分
新宿駅5分
【耐震】 新耐震
【基準階】 306.00坪 【エントランス】 全日開放(制限有)
【駐車場】 有り 【エレベーター】 12基
エステック情報ビルは、東京都新宿区西新宿1-24-1に位置する、利便性の高いオフィスビルです。最寄りの交通機関として、都営大江戸線の「都庁前駅」が徒歩4分圏内、JR各線、東京メトロ丸ノ内線、…
図面 階数 面積 賃料(共益費込)
(坪単価)
保証金/敷金 礼金 入居可能日
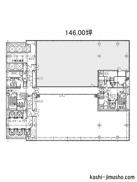
20階 N 146.00坪
(482.65m2)
(未公開) 12ヶ月 2026/10/1
メトロシティ早稲田の外観
物件番号:034732
更新日:2026/5/15
新宿区馬場下町5-1
【竣工】1992/8
【階建て】地上7F 、地下1F
【最寄駅】
早稲田駅1分
若松河田駅10分
【耐震】 新耐震
【基準階】 115.66坪 【エントランス】 平日・土開放
【駐車場】 有り 【エレベーター】 2基
早稲田駅前ビルは、新宿区馬場下町5-1にある物件です。最寄駅は、東京メトロ東西線の早稲田駅です。徒歩1分圏内でアクセス可能な好立地です。徒歩10分圏内で都営大江戸線の若松河田駅、都電荒川…
図面 階数 面積 賃料(共益費込)
(坪単価)
保証金/敷金 礼金 入居可能日
4階 N 115.66坪
(382.35m2)
(未公開) (未公開) 2026/7/1
牛込食糧ビルの外観
物件番号:034283
更新日:2026/5/7
新宿区北山伏町1-11
【竣工】1991/10
【階建て】地上6F 、地下1F
【最寄駅】
牛込神楽坂駅6分
神楽坂駅12分
【耐震】 新耐震
【基準階】 210.75坪 【エントランス】 平日・土開放
【駐車場】 有り 【エレベーター】 2基
牛込食糧ビルは、東京都新宿区北山伏町1-11に位置する、地上6階建て、地下1階のオフィスビルです。1991年10月に竣工したRC造の建物で、新耐震基準に対応しており、地震に対する安全性にも配慮さ…
図面 階数 面積 賃料(共益費込)
(坪単価)
保証金/敷金 礼金 入居可能日
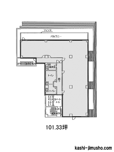
5階 G 101.33坪
(334.98m2)
(未公開) (未公開) 2026/6
上旬
THE PORTAL iidabashiの外観
物件番号:034176
更新日:2026/4/22
新宿区新小川町8-30
【竣工】1991/10(改修:2021)
【階建て】地上4F 、地下2F
【最寄駅】
飯田橋駅8分
【耐震】 新耐震
【基準階】 181.72坪 【エントランス】 平日・土開放
【駐車場】 有り 【エレベーター】 2基
THE PORTAL iidabashiは、新宿区新小川町に位置する賃貸オフィスビルです。最寄り駅はJR総武線・東京メトロ東西線・有楽町線・南北線・都営大江戸線が利用可能な「飯田橋駅」で、徒歩8分圏内にあ…
図面 階数 面積 賃料(共益費込)
(坪単価)
保証金/敷金 礼金 入居可能日
2階 G 116.32坪
(384.54m2)
2,908,000
(25,000)
8ヶ月 即日
2階 G 128.87坪
(426.02m2)
3,221,750
(25,000)
8ヶ月 即日
3階 G 104.27坪
(344.72m2)
2,606,750
(25,000)
8ヶ月 即日
KDX飯田橋ビルの外観
物件番号:034157
更新日:2026/5/19
新宿区下宮比町2-26
【竣工】1990/2(改修:2008)
【階建て】地上8F
【最寄駅】
飯田橋駅3分
【耐震】 新耐震
【基準階】 181.79坪 【エントランス】 全日開放(制限有)
【駐車場】 有り 【エレベーター】 2基
KDX飯田橋ビルは、新宿区下宮比町2-26に位置する賃貸オフィスビルです。最寄り駅はJR総武線をはじめ、東京メトロ有楽町線・東西線・南北線、さらに都営大江戸線の飯田橋駅が利用可能で、各線の駅…
図面 階数 面積 賃料(共益費込)
(坪単価)
保証金/敷金 礼金 入居可能日
4階 N 107.33坪
(354.81m2)
(未公開) (未公開) 即日
西新宿プライムスクエアの外観
物件番号:032172
更新日:2026/5/11
新宿区西新宿7-5-25
【竣工】1988/11
【階建て】地上16F 、地下2F
【最寄駅】
大久保駅3分
西武新宿駅3分
新宿西口駅5分
【耐震】 新耐震
【基準階】 436.74坪 【エントランス】 全日開放(制限有)
【駐車場】 有り 【エレベーター】 10基
JR総武線沿いに建つハイグレードな大型オフィスビル。西新宿プライムスクエアは東京都新宿区西新宿7-5-25にあります。JR、東京メトロ、都営地下鉄、私鉄が乗り入れるビックターミナル新宿駅をは…
図面 階数 面積 賃料(共益費込)
(坪単価)
保証金/敷金 礼金 入居可能日
13階 N 135.52坪
(448.00m2)
(未公開) 12ヶ月 即日
第3山田ビルの外観
物件番号:033877
更新日:2026/5/20
新宿区愛住町22
【竣工】1987/10
【階建て】地上11F
【最寄駅】
曙橋駅2分
四谷三丁目駅8分
【耐震】 新耐震
【基準階】 101.46坪 【エントランス】 平日・土開放
【駐車場】 無し 【エレベーター】 2基
第3山田ビルは、新宿区愛住町22に位置する賃貸オフィスビルで、最寄駅は都営新宿線の曙橋駅です。徒歩2分圏内にあり、非常にアクセスの良い立地です。また、徒歩6分圏内で東京メトロ丸ノ内線の四…
図面 階数 面積 賃料(共益費込)
(坪単価)
保証金/敷金 礼金 入居可能日
6階 G 101.46坪
(335.41m2)
1,420,440
(14,000)
10ヶ月 2026/9/1
西新宿三晃ビルの外観
物件番号:032272
更新日:2026/5/13
新宿区西新宿7-22-35
【竣工】1987/9
【階建て】地上4F 、地下1F
【最寄駅】
西新宿駅6分
新宿西口駅6分
新宿駅12分
【耐震】 新耐震
【基準階】 198.15坪 【エントランス】
【駐車場】 有り 【エレベーター】 1基
西新宿三晃ビルは、東京都新宿区西新宿7-22-35に位置する地上4階建て地下1階のオフィスビルです。1987年9月に竣工し、SRC造で建てられています。新耐震基準に適合しており、安全性にも優れていま…
図面 階数 面積 賃料(共益費込)
(坪単価)
保証金/敷金 礼金 入居可能日
4階 N 123.52坪
(408.33m2)
(未公開) (未公開) 2026/7/1
グランファースト新宿御苑の外観
物件番号:070440
更新日:2026/5/20
新宿区大京町22-1
【竣工】1986/7(改修:2020)
【階建て】地上8F 、地下1F
【最寄駅】
四谷三丁目駅5分
新宿御苑前駅8分
千駄ヶ谷駅12分
【耐震】 新耐震
【基準階】 130.08坪 【エントランス】 平日・土開放
【駐車場】 有り 【エレベーター】 3基
グランファースト新宿御苑は、新宿区大京町22-1に位置するハイグレードな貸事務所です。最寄りの東京メトロ丸ノ内線四谷三丁目駅から徒歩5分圏内でアクセス可能な好立地にあり、外苑西通りに面し…
図面 階数 面積 賃料(共益費込)
(坪単価)
保証金/敷金 礼金 入居可能日
4階 G 128.28坪
(424.07m2)
3,591,840
(28,000)
8ヶ月 即日
6階 G 128.28坪
(424.08m2)
3,591,840
(28,000)
8ヶ月 即日
7階 G 128.28坪
(424.08m2)
3,591,840
(28,000)
8ヶ月 即日
新宿グリーンタワービルの外観
物件番号:032207
更新日:2026/5/7
新宿区西新宿6-14-1
【竣工】1986/4
【階建て】地上29F 、地下4F
【最寄駅】
都庁前駅5分
西新宿駅7分
新宿駅16分
【耐震】 新耐震
【基準階】 308.66坪 【エントランス】 全日開放(制限有)
【駐車場】 有り 【エレベーター】 10基
新宿グリーンタワービルは、新宿区西新宿6-14-1に位置する大型賃貸オフィスビルです。ビルは公園通りと北通りが交わる角地に建っており、視認性が高いため、来訪者への案内がしやすいのも大きな…
図面 階数 面積 賃料(共益費込)
(坪単価)
保証金/敷金 礼金 入居可能日
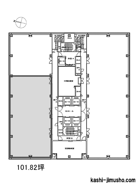
24階 N 101.82坪
(336.60m2)
(未公開) (未公開) 即日
NOW/HERE新宿四谷の外観
物件番号:033817
更新日:2026/5/1
新宿区四谷坂町10-10
【竣工】1986/4(改修:2026)
【階建て】地上8F 、地下1F
【最寄駅】
曙橋駅6分
四ツ谷駅10分
【耐震】 新耐震
【基準階】 106.07坪 【エントランス】 平日のみ開放
【駐車場】 有り 【エレベーター】 1基
「(仮称)四谷坂町PJ」は、東京都新宿区四谷坂町10-10に位置する地上8階・地下1階建て、SRC造(鉄骨鉄筋コンクリート造)のオフィスビルです。1986年4月に竣工し、新耐震基準を満たしているため…
図面 階数 面積 賃料(共益費込)
(坪単価)
保証金/敷金 礼金 入居可能日
5階 G 101.96坪
(337.06m2)
(未公開) 即日
新宿タツミビルの外観
物件番号:032402
更新日:2026/4/23
新宿区西新宿6-16-6
【竣工】1985/4(改修:2004)
【階建て】地上11F
【最寄駅】
西新宿五丁目駅5分
西新宿駅10分
【耐震】 新耐震
【基準階】 300.00坪 【エントランス】 全日開放(制限有)
【駐車場】 有り 【エレベーター】 2基
新宿タツミビルは、東京都新宿区西新宿6-16-6に位置する地上11階建てのオフィスビルです。1985年4月に竣工し、SRC造で建てられています。新耐震基準に適合しており、安全性にも優れています。交…
図面 階数 面積 賃料(共益費込)
(坪単価)
保証金/敷金 礼金 入居可能日
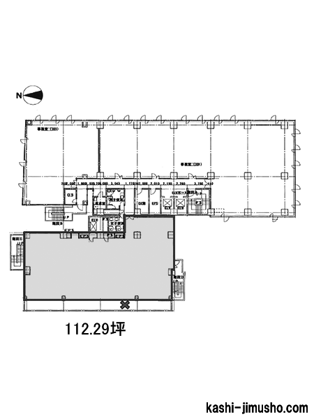
3階 G 112.29坪
(371.22m2)
1,852,785
(16,500)
6ヶ月 即日
新宿国際ビルディングの外観
物件番号:032354
更新日:2026/5/15
新宿区西新宿6-6-2
【竣工】1984/8
【階建て】地上38F 、地下4F
【最寄駅】
西新宿駅4分
都庁前駅6分
新宿駅14分
【耐震】 新耐震
【基準階】 477.00坪 【エントランス】 全日開放(制限有)
【駐車場】 有り 【エレベーター】 4基
新宿国際ビルディングは、東京都新宿区西新宿6-6-2に位置する、地上38階建て、地下4階のオフィスビルです。1984年8月に竣工したSRC造の建物で、新耐震基準に対応しており、高層ビルとしての安全…
図面 階数 面積 賃料(共益費込)
(坪単価)
保証金/敷金 礼金 入居可能日
5階 N 126.88坪
(419.44m2)
(未公開) (未公開) 即日
新宿サンエービルの外観
物件番号:032313
更新日:2026/5/18
新宿区西新宿1-22-2
【竣工】1979/12
【階建て】地上15F 、地下2F
【最寄駅】
新宿駅2分
【耐震】 旧耐震+補強済 or 基準OK
【基準階】 389.02坪 【エントランス】 全日開放(制限有)
【駐車場】 有り 【エレベーター】 7基
新宿区西新宿1-22-2にある、新宿サンエービルです。新宿駅が最寄駅です。都営新宿線・都営大江戸線・JR山手線・JR中央線・JR総武線・東京メトロ丸ノ内線等が徒歩圏内で利用可能な便利な立地とな…
図面 階数 面積 賃料(共益費込)
(坪単価)
保証金/敷金 礼金 入居可能日
15階 N 135.13坪
(446.71m2)
(未公開) (未公開) 2026/7
下旬
新宿野村ビルの外観
物件番号:032283
更新日:2026/5/15
新宿区西新宿1-26-2
【竣工】1978/6(改修:2006)
【階建て】地上50F 、地下5F
【最寄駅】
都庁前駅3分
西新宿駅4分
新宿駅6分
【耐震】 旧耐震+補強済 or 基準OK
【基準階】 381.86坪 【エントランス】 全日開放(制限有)
【駐車場】 有り 【エレベーター】 26基
新宿野村ビルは、東京都新宿区西新宿1に位置する高層ビルで、日本を代表するオフィスビルの一つです。1978年に完成し、高さは約210メートル、地上48階、地下4階の構造を持っています。 特徴的な…
図面 階数 面積 賃料(共益費込)
(坪単価)
保証金/敷金 礼金 入居可能日
37階 N 115.91坪
(383.17m2)
(未公開) 12ヶ月 2026/7/1
第2明宝ビルの外観
物件番号:032293
更新日:2026/5/11
新宿区西新宿1-19-5
【竣工】1972/12
【階建て】地上9F 、地下2F
【最寄駅】
新宿駅1分
【耐震】 旧耐震+補強済 or 基準OK
【基準階】 100.39坪 【エントランス】
【駐車場】 無し 【エレベーター】 2基
第2明宝ビルは、東京都新宿区西新宿1丁目に位置し、国内でも有数のターミナル駅である新宿駅からのアクセスが抜群のオフィスビルです。京王線および都営大江戸線の「新宿駅」からは徒歩1分、JR中…
図面 階数 面積 賃料(共益費込)
(坪単価)
保証金/敷金 礼金 入居可能日
8階 G 100.39坪
(331.87m2)
(未公開) 12ヶ月 即日
新陽ビルの外観
物件番号:034878
更新日:2026/5/15
新宿区高田馬場2-14-2
【竣工】1972/9(改修:1990)
【階建て】地上11F 、地下1F
【最寄駅】
高田馬場駅1分
4分
西早稲田駅7分
【耐震】 旧耐震+補強済 or 基準OK
【基準階】 148.00坪 【エントランス】 全日開放(制限有)
【駐車場】 有り 【エレベーター】 2基
アクセス抜群、早稲田通りに面する貸事務所です。「新陽ビル」は、高田馬場駅から徒歩1分という好立地、充実した設備と広さを備えた利便性の高いオフィスビルです。東京メトロ東西線はもちろん、…
図面 階数 面積 賃料(共益費込)
(坪単価)
保証金/敷金 礼金 入居可能日
3階 G 148.50坪
(490.91m2)
2,673,000
(18,000)
6ヶ月 2026/6
上旬
高田馬場新館の外観
物件番号:083941
更新日:2026/4/27
新宿区高田馬場1-25-34
【竣工】2020
【階建て】地上3F
【最寄駅】
高田馬場駅3分
西早稲田駅8分
【耐震】 新耐震
【基準階】 【エントランス】
【駐車場】 - 【エレベーター】 未調査
図面 階数 面積 賃料(共益費込)
(坪単価)
保証金/敷金 礼金 入居可能日
図面
1-3階 G 125.98坪
(416.46m2)
(未公開) 12ヶ月 即日

※取引態様:媒介
※フロア図面と現況が異なる場合は現況を優先いたします。
※貸室内部の写真・貸室からの景色に関しては、現在の募集フロアと異なる場合がございます。

総数:28棟(41件)
  • 1

(さいたま)の賃料相場

(さいたま)エリアの平均賃料

で募集している物件の、1坪あたりの賃料(共益費を含む)の平均価格です。
数値の右側にある矢印は、一週間前の数値と比較した結果を表しています。
賃料価格は毎日集計をしている最新の値です。

  • 2040 未調査
  • 4060 未調査
  • 60100 未調査
  • 100坪以上 未調査

(さいたま)エリアの募集賃料

の1坪あたりの賃料(共益費を含む)価格帯ごとの募集物件数です。
表の数値をクリックすると募集物件の一覧表が表示します。

【2026/05/20更新】