さいたまの貸事務所から希望エリアの物件を検索!
0120-33-9533
ご相談、お問合せ

お問合せはこちら

※ご入居を検討されているお客様向けの情報サイトです。
※駐車場単体・管理会社・テナントに関するお問合せにはお応えいたしかねます。
ご相談、お問合せ
0120-33-9533
※ご入居を検討されているお客様向けの情報サイトです。
※駐車場単体・管理会社・テナントに関するお問合せにはお応えいたしかねます。

の貸事務所・賃貸オフィス一覧

 
 

総数:62棟(98件)
タスク新御徒町ビルの外観
物件番号:083674
更新日:2026/1/21
台東区台東4-26-9
【竣工】2025/9
【階建て】地上9F
【最寄駅】
新御徒町駅1分
仲御徒町駅5分
御徒町駅7分
【耐震】 新耐震
【基準階】 63.03坪 【エントランス】 平日のみ開放
【駐車場】 無し 【エレベーター】 2基
タスク新御徒町ビルは、東京都台東区台東4-26-9に位置するオフィスビルです。2025年9月に竣工し、構造はRC造、地上9階建てです。新耐震基準に適合しているので、安全性の高い建物です。交通アク…
図面 階数 面積 賃料(共益費込)
(坪単価)
保証金/敷金 礼金 入居可能日
2階 G 63.03坪
(208.36m2)
1,260,600
(20,000)
7,563,600
(6ヶ月)
1.0ヶ月 即日
3階 G 63.03坪
(208.36m2)
1,260,600
(20,000)
7,563,600
(6ヶ月)
1.0ヶ月 即日
4階 G 63.03坪
(208.36m2)
1,260,600
(20,000)
7,563,600
(6ヶ月)
1.0ヶ月 即日
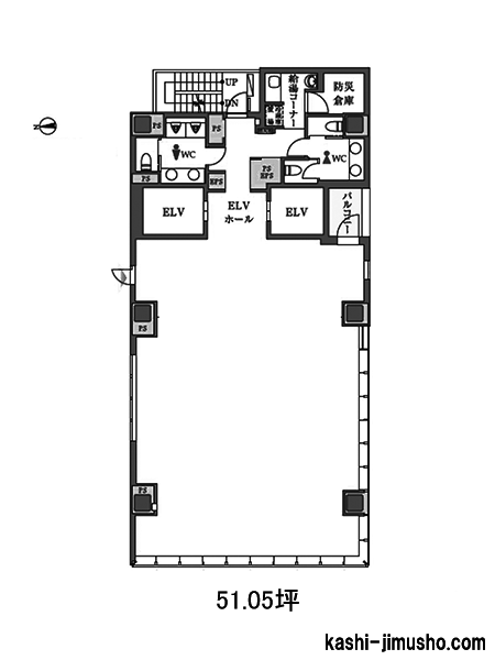
VORT上野plusの外観
物件番号:083193
更新日:2026/2/9
台東区東上野3-37-12
【竣工】2025/5
【階建て】地上12F 、地下1F
【最寄駅】
上野駅4分
稲荷町駅4分
【耐震】 新耐震
【基準階】 64.00坪 【エントランス】 全日開放(制限有)
【駐車場】 無し 【エレベーター】 2基
「VORT上野plus」は、東京都台東区東上野3-37-12に位置する地上12階・地下1階建てのオフィスビルです。2025年5月に竣工した物件で、構造は鉄骨造(S造)で建てられています。新耐震基準に適合し…
図面 階数 面積 賃料(共益費込)
(坪単価)
保証金/敷金 礼金 入居可能日
3階 G 59.25坪
(195.87m2)
(未公開) 5ヶ月 即日
4階 G 59.25坪
(195.87m2)
(未公開) 5ヶ月 即日
5階 G 59.25坪
(195.87m2)
(未公開) 5ヶ月 即日
6階 G 58.21坪
(192.43m2)
(未公開) 5ヶ月 即日
10階 G 58.10坪
(192.07m2)
(未公開) 5ヶ月 即日
11階 G 58.10坪
(192.07m2)
(未公開) 5ヶ月 即日
12階 G 58.10坪
(192.07m2)
(未公開) 5ヶ月 即日

7件を確認する

浅草トーセイビルの外観
物件番号:082935
更新日:2026/1/14
台東区浅草1-27-2
【竣工】2025/1
【階建て】地上10F
【最寄駅】
浅草駅2分
【耐震】 新耐震
【基準階】 32.89坪 【エントランス】 全日開放(24h)
【駐車場】 無し 【エレベーター】 1基
浅草トーセイビルは、東京都台東区浅草1丁目に所在する賃貸オフィスビルです。つくばエクスプレス・浅草駅から徒歩2分という抜群の利便性を誇り、東武スカイツリーライン・東京メトロ銀座線・都…
図面 階数 面積 賃料(共益費込)
(坪単価)
保証金/敷金 礼金 入居可能日
7階 G 32.89坪
(108.76m2)
(未公開) 10ヶ月 即日
8階 G 32.89坪
(108.76m2)
(未公開) 10ヶ月 即日
9階 G 32.89坪
(108.76m2)
(未公開) 10ヶ月 即日
NEWS X 御徒町の外観
物件番号:082035
更新日:2026/2/6
台東区台東4-5-13
【竣工】2024/12
【階建て】地上10F
【最寄駅】
仲御徒町駅4分
新御徒町駅5分
御徒町駅7分
【耐震】 新耐震+免震
【基準階】 56.82坪 【エントランス】 平日のみ開放
【駐車場】 無し 【エレベーター】 1基
NEWS X 御徒町は、東京都台東区台東4丁目に位置する、最新の設備と機能性を備えたオフィスビルです。2024年12月に竣工予定のこのビルは、地上10階建てのRC造(鉄筋コンクリート構造)で、新耐震…
図面 階数 面積 賃料(共益費込)
(坪単価)
保証金/敷金 礼金 入居可能日
2階 G 56.15坪
(185.62m2)
(未公開) (未公開) 即日
3階 G 56.15坪
(185.62m2)
(未公開) (未公開) 即日
4階 G 56.15坪
(185.62m2)
(未公開) (未公開) 即日
5階 G 56.15坪
(185.62m2)
(未公開) (未公開) 即日
7階 G 56.15坪
(185.62m2)
(未公開) (未公開) 即日
8階 G 56.15坪
(185.62m2)
(未公開) (未公開) 即日

6件を確認する

阪急阪神上野御徒町ビルの外観
物件番号:079318
更新日:2026/1/21
台東区台東4-9-2
【竣工】2022/1
【階建て】地上12F
【最寄駅】
仲御徒町駅1分
御徒町駅5分
上野広小路駅5分
【耐震】 新耐震
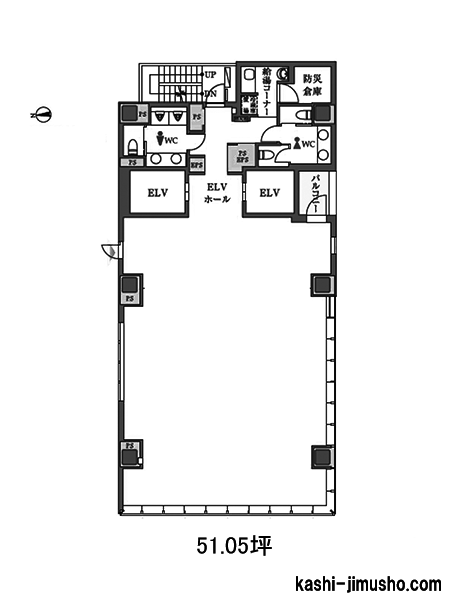
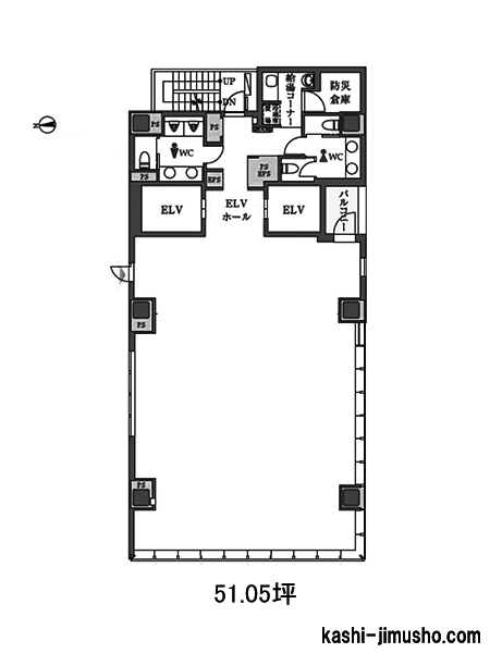
【基準階】 51.04坪 【エントランス】 全日開放(制限有)
【駐車場】 無し 【エレベーター】 2基
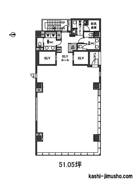
阪急阪神上野御徒町ビルは、台東区台東4-9-2にある物件です。最寄駅は、東京メトロ日比谷線の仲御徒町駅です。徒歩1分圏内でアクセス可能な好立地です。徒歩5分圏内でJR山手線・JR京浜東北線の御…
図面 階数 面積 賃料(共益費込)
(坪単価)
保証金/敷金 礼金 入居可能日
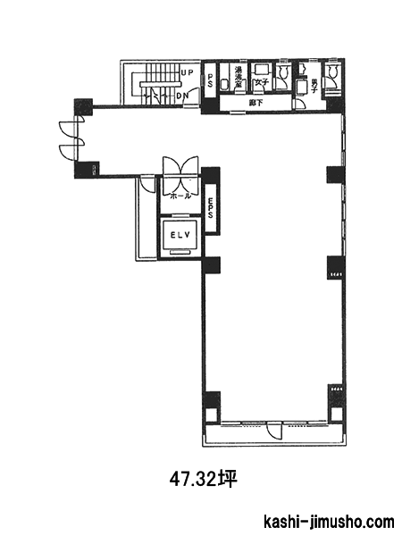
4階 G 51.05坪
(168.75m2)
(未公開) 6ヶ月 2026/5
7階 G 51.05坪
(168.75m2)
(未公開) 12ヶ月 2026/5
8階 G 51.05坪
(168.75m2)
(未公開) 6ヶ月 2026/5
9階 G 51.05坪
(168.75m2)
(未公開) 6ヶ月 2026/5
10階 G 51.05坪
(168.75m2)
(未公開) 6ヶ月 2026/5
11階 G 51.05坪
(168.75m2)
(未公開) 6ヶ月 2026/5
12階 G 51.05坪
(168.75m2)
(未公開) 12ヶ月 2026/5

7件を確認する

SEIWA EAST FACEの外観
物件番号:074441
更新日:2026/2/2
台東区浅草橋5-19-5
【竣工】2020/10
【階建て】地上5F
【最寄駅】
浅草橋駅6分
秋葉原駅11分
【耐震】 新耐震
【基準階】 【エントランス】 オートロック
【駐車場】 無し 【エレベーター】 1基
SEIWA EAST FACEは、台東区浅草橋5-19-5にある物件です。徒歩6分圏内でJR総武線の浅草橋駅、徒歩9分圏内で都営浅草線の浅草橋駅が利用可能となっています。複数路線が利用可能で交通アクセス良好…
図面 階数 面積 賃料(共益費込)
(坪単価)
保証金/敷金 礼金 入居可能日
4階 G 42.49坪
(140.47m2)
1,274,700
(30,000)
8,922,900
(7ヶ月)
相談
Art inn Ⅱの外観
物件番号:083541
更新日:2026/1/20
台東区蔵前2-14-4
【竣工】2016/12
【階建て】地上5F
【最寄駅】
蔵前駅2分
【耐震】 新耐震
【基準階】 13.18坪 【エントランス】 全日開放(24h)
【駐車場】 - 【エレベーター】 1基
蔵前駅徒歩2分、交通アクセス抜群です。2016年竣工、新耐震基準のきれいな建物です。各フロアにトイレがついて、整形の使い勝手の良い室内です。
図面 階数 面積 賃料(共益費込)
(坪単価)
保証金/敷金 礼金 入居可能日
1-5階 G 61.38坪
(202.90m2)
1,600,000
(26,067)
9,600,000
(6ヶ月)
即日
Logran御徒町ビルの外観
物件番号:056119
更新日:2026/1/15
台東区台東3-15-1
【竣工】2009/2
【階建て】地上11F 、地下1F
【最寄駅】
仲御徒町駅2分
御徒町駅5分
上野御徒町駅5分
【耐震】 新耐震
【基準階】 63.55坪 【エントランス】 平日のみ開放
【駐車場】 有り 【エレベーター】 2基
御徒町エリア。昭和通りに面したハイグレード賃貸オフィスビル。Logran御徒町ビルは、台東区台東3丁目、最寄駅は東京メトロ日比谷線・仲御徒町駅で、駅からのアクセスは徒歩2分圏内、JR御徒町駅…
図面 階数 面積 賃料(共益費込)
(坪単価)
保証金/敷金 礼金 入居可能日
4階 G 63.55坪
(210.08m2)
1,398,100
(22,000)
12,074,500
(10ヶ月)
2026/5/1
フォーラム浅草田原町の外観
物件番号:062837
更新日:2026/1/15
台東区寿2-10-16
【竣工】2005/5(改修:2020)
【階建て】地上9F
【最寄駅】
田原町駅2分
浅草駅5分
蔵前駅6分
【耐震】 新耐震
【基準階】 53.28坪 【エントランス】 オートロック
【駐車場】 無し 【エレベーター】 2基
フォーラム浅草田原町は、東京都台東区寿2丁目に位置する地上9階建てのオフィスビルです。2005年5月に竣工しており、構造は鉄骨鉄筋コンクリート造(SRC造)で建てられています。新耐震基準に適…
図面 階数 面積 賃料(共益費込)
(坪単価)
保証金/敷金 礼金 入居可能日
5階 G 53.28坪
(176.13m2)
800,000
(15,015)
3,678,000
(6ヶ月)
2026/7
予定
サングローリの外観
物件番号:018123
更新日:2026/2/2
台東区蔵前4-17-10
【竣工】2001/9
【階建て】地上4F
【最寄駅】
蔵前駅4分
新御徒町駅9分
浅草橋駅11分
【耐震】 新耐震
【基準階】 30.44坪 【エントランス】 全日開放(24h)
【駐車場】 有り 【エレベーター】
サングローリは、東京都台東区蔵前4-17-10に位置する地上4階建てのオフィスビルです。2001年9月に竣工し、構造はS造(鉄骨造)を採用しています。新耐震基準に適合して建設されているため、地震…
図面 階数 面積 賃料(共益費込)
(坪単価)
保証金/敷金 礼金 入居可能日
2階 G 30.44坪
(100.63m2)
310,000
(10,184)
1,860,000
(6ヶ月)
即日
MARK SQUARE 御徒町の外観
物件番号:078904
更新日:2026/1/26
台東区台東3-15-3
【竣工】1999/6(改修:2022)
【階建て】地上11F
【最寄駅】
仲御徒町駅2分
上野御徒町駅4分
御徒町駅5分
【耐震】 新耐震
【基準階】 56.64坪 【エントランス】 平日のみ開放
【駐車場】 有り 【エレベーター】 2基
MARK SQUARE 御徒町は、台東区台東3-15-3に位置する物件で、利便性が高いエリアにあります。最寄駅は、東京メトロ日比谷線の仲御徒町駅から徒歩2分で、昭和通りに面した立地により、アクセスや視…
図面 階数 面積 賃料(共益費込)
(坪単価)
保証金/敷金 礼金 入居可能日
3階 G 56.64坪
(187.24m2)
1,416,000
(25,000)
8,496,000
(6ヶ月)
2026/4/1
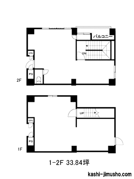
ベルファース浅草の外観
物件番号:018436
更新日:2026/1/23
台東区浅草2-33-3
【竣工】1999/5
【階建て】地上10F
【最寄駅】
浅草駅6分
【耐震】 新耐震
【基準階】 【エントランス】 オートロック
【駐車場】 無し 【エレベーター】
浅草寺、浅草神社が目の前の立地。浅草らしさを存分に味わえる環境です。1999年竣工の新耐震基準、安心してご利用いただけます。管理の行き届いた清潔感のある共用部です。
図面 階数 面積 賃料(共益費込)
(坪単価)
保証金/敷金 礼金 入居可能日
1-2階 G 33.84坪
(111.88m2)
600,000
(17,730)
7,200,000
(212,766)
2026/4
仲御徒町フロントビルの外観
物件番号:017604
更新日:2026/1/21
台東区台東4-8-7
【竣工】1998/12(改修:2024)
【階建て】地上9F 、地下2F
【最寄駅】
仲御徒町駅1分
御徒町駅4分
上野広小路駅7分
【耐震】 新耐震
【基準階】 86.61坪 【エントランス】 平日・土開放
【駐車場】 有り 【エレベーター】 2基
仲御徒町フロントビルは、東京都台東区台東4-8-7に位置し、仲御徒町駅(東京メトロ日比谷線)から徒歩1分という、昭和通りの角地にあるアクセスと視認性に優れたハイグレードオフィスビルです。…
図面 階数 面積 賃料(共益費込)
(坪単価)
保証金/敷金 礼金 入居可能日
B1階 G 59.06坪
(195.26m2)
1,417,440
(24,000)
8,504,640
(6ヶ月)
即日
やないビルの外観
物件番号:018093
更新日:2026/1/29
台東区蔵前3-1-3
【竣工】1996/9
【階建て】地上9F 、地下1F
【最寄駅】
蔵前駅1分
浅草橋駅10分
田原町駅10分
【耐震】 新耐震
【基準階】 37.97坪 【エントランス】 平日・土開放
【駐車場】 有り 【エレベーター】 1基
やないビルは、台東区蔵前3-1-3に位置する貸事務所です。都営浅草線「蔵前駅」から徒歩1分という駅近の好立地にあり、都営大江戸線「蔵前駅」も徒歩6分で利用可能。さらに、JR総武線「浅草橋駅」…
図面 階数 面積 賃料(共益費込)
(坪単価)
保証金/敷金 礼金 入居可能日
4階 G 37.97坪
(125.52m2)
(未公開) 8ヶ月 2026/5
リードシー東上野の外観
物件番号:082792
更新日:2026/1/20
台東区東上野6-10-8
【竣工】1996/8
【階建て】地上9F
【最寄駅】
稲荷町駅3分
上野駅9分
【耐震】 新耐震
【基準階】 41.91坪 【エントランス】
【駐車場】 無し 【エレベーター】 1基
リードシー東上野は、東京都台東区東上野6丁目10番8号に立地する地上9階建てのオフィスビルです。最寄り駅は東京メトロ銀座線の稲荷町駅で、徒歩3分という優れた立地にあります。また、JR山手線…
図面 階数 面積 賃料(共益費込)
(坪単価)
保証金/敷金 礼金 入居可能日
4階 G 45.88坪
(151.66m2)
650,000
(14,167)
5,200,000
(8ヶ月)
即日
5階 G 50.02坪
(165.36m2)
700,000
(13,994)
5,600,000
(8ヶ月)
2026/1
予定
ティーエスケービルの外観
物件番号:017986
更新日:2026/2/6
台東区小島2-13-3
【竣工】1994/4
【階建て】地上8F
【最寄駅】
新御徒町駅3分
仲御徒町駅7分
御徒町駅10分
【耐震】 新耐震
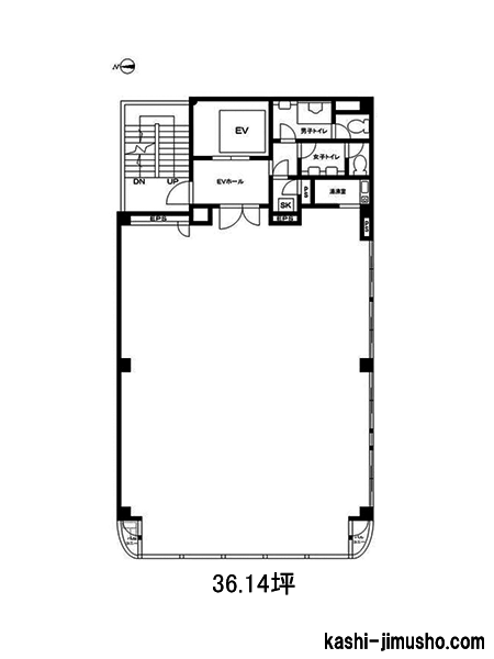
【基準階】 36.14坪 【エントランス】
【駐車場】 無し 【エレベーター】 1基
新御徒町駅から2分の好立地。御徒町駅などの複数路線が利用可能。機械警備システム、オートロック対応。セキュリティ安心。清洲橋通り沿いの分かりやすい立地。
図面 階数 面積 賃料(共益費込)
(坪単価)
保証金/敷金 礼金 入居可能日
5階 G 36.14坪
(119.47m2)
505,960
(14,000)
3,469,440
(8ヶ月)
2.0ヶ月 相談
ツイントラスビルの外観
物件番号:017930
更新日:2026/1/13
台東区柳橋1-4-4
【竣工】1993/10
【階建て】地上8F 、地下1F
【最寄駅】
浅草橋駅1分
馬喰町駅3分
馬喰横山駅3分
【耐震】 新耐震
【基準階】 150.83坪 【エントランス】 平日のみ開放
【駐車場】 有り 【エレベーター】 3基
ツイントラスビルは、東京都台東区柳橋1丁目に位置する地上8階・地下1階建てのオフィスビルです。1993年10月に竣工しており、構造は鉄骨鉄筋コンクリート造(SRC造)です。新耐震基準に適合して…
図面 階数 面積 賃料(共益費込)
(坪単価)
保証金/敷金 礼金 入居可能日
4階 G 150.83坪
(498.63m2)
2,262,450
(15,000)
14,479,680
(8ヶ月)
2026/6
上旬
NRビルの外観
物件番号:018076
更新日:2026/1/20
台東区蔵前3-13-13
【竣工】1993/3
【階建て】地上10F
【最寄駅】
蔵前駅1分
【耐震】 新耐震
【基準階】 33.40坪 【エントランス】 全日開放(24h)
【駐車場】 無し 【エレベーター】 1基
NRビルは、東京都台東区蔵前3丁目13-13に位置する、利便性と機能性を兼ね備えたオフィスビルです。最寄り駅である都営浅草線「蔵前駅」から徒歩1分という抜群の立地が最大の特徴です。さらに、都…
図面 階数 面積 賃料(共益費込)
(坪単価)
保証金/敷金 礼金 入居可能日
2階 G 30.97坪
(102.38m2)
495,000
(15,983)
2,700,000
(6ヶ月)
1.0ヶ月 相談
6階 G 33.54坪
(110.89m2)
405,000
(12,075)
2,160,000
(6ヶ月)
1.0ヶ月 相談
シティコープ浅草橋Ⅲの外観
物件番号:017826
更新日:2026/1/16
台東区浅草橋3-8-11
【竣工】1993/3(改修:2004)
【階建て】地上10F 、地下1F
【最寄駅】
浅草橋駅6分
蔵前駅9分
【耐震】 新耐震
【基準階】 【エントランス】 オートロック
【駐車場】 無し 【エレベーター】
複数路線が利用可能!交通アクセス抜群です!1993年竣工の新耐震基準を満たした物件です!落ち着いた色合いで清潔感のある外観です!
図面 階数 面積 賃料(共益費込)
(坪単価)
保証金/敷金 礼金 入居可能日
1-2階 G 53.71坪
(177.54m2)
977,000
(18,190)
2,931,000
(3ヶ月)
相談
KUGAビルの外観
物件番号:018074
更新日:2026/1/20
台東区蔵前4-11-6
【竣工】1992/8
【階建て】地上9F
【最寄駅】
蔵前駅3分
浅草橋駅10分
【耐震】 新耐震
【基準階】 53.54坪 【エントランス】
【駐車場】 有り 【エレベーター】 1基
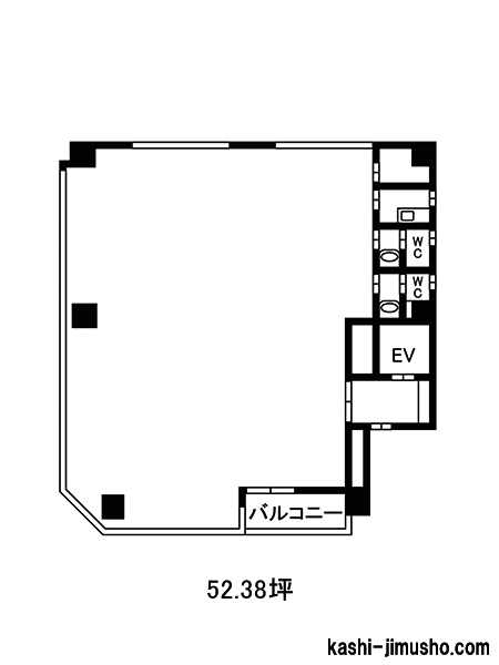
KUGAビルは、東京都台東区蔵前4-11-6に位置する地上9階建てのオフィスビルです。1992年8月に竣工し、鉄骨造(S造)の構造を採用しています。新耐震基準に準拠して建設されており、万が一の災害時…
図面 階数 面積 賃料(共益費込)
(坪単価)
保証金/敷金 礼金 入居可能日
8階 G 52.38坪
(173.15m2)
628,500
(11,999)
3,300,000
(6ヶ月)
1.0ヶ月 即日
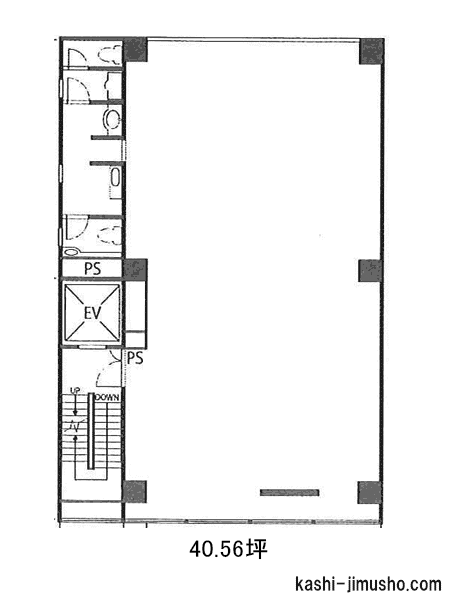
ヤマダビルの外観
物件番号:018155
更新日:2026/2/3
台東区元浅草1-6-29
【竣工】1992/6
【階建て】地上6F
【最寄駅】
新御徒町駅2分
稲荷町駅5分
仲御徒町駅10分
【耐震】 新耐震
【基準階】 40.56坪 【エントランス】 平日のみ開放
【駐車場】 無し 【エレベーター】 1基
新御徒町駅から徒歩2分の立地です!スタイリッシュな印象の外観です!トイレは室内で男女別になっています!
図面 階数 面積 賃料(共益費込)
(坪単価)
保証金/敷金 礼金 入居可能日
3階 G 40.56坪
(134.08m2)
534,776
(13,185)
2,944,656
(6ヶ月)
2026/2
下旬
Uビルの外観
物件番号:018136
更新日:2026/1/26
台東区元浅草3-13-12
【竣工】1992/5
【階建て】地上8F
【最寄駅】
田原町駅5分
新御徒町駅7分
蔵前駅9分
【耐震】 新耐震
【基準階】 38.42坪 【エントランス】 平日のみ開放
【駐車場】 有り 【エレベーター】 1基
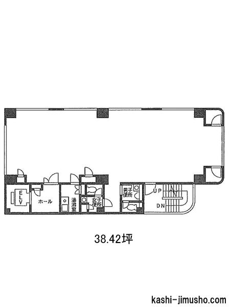
Uビルは、東京都台東区元浅草3-13-12に位置する地上8階建てのオフィスビルです。1992年5月に竣工し、構造は鉄骨鉄筋コンクリート造(SRC造)で、新耐震基準にも適合しています。耐震性に優れた設…
図面 階数 面積 賃料(共益費込)
(坪単価)
保証金/敷金 礼金 入居可能日
8階 G 38.42坪
(127.01m2)
540,000
(14,055)
3,240,000
(6ヶ月)
即日
メトロシティ上野稲荷町の外観
物件番号:017201
更新日:2026/1/28
台東区東上野3-34-6
【竣工】1992/4(改修:2012)
【階建て】地上10F
【最寄駅】
稲荷町駅1分
上野駅5分
新御徒町駅7分
【耐震】 新耐震
【基準階】 33.05坪 【エントランス】 全日開放(制限有)
【駐車場】 無し 【エレベーター】 1基
上野エリア。浅草通り沿いに建つハイグレードな賃貸オフィスビル。東上野フロントビルは、台東区東上野3丁目、最寄駅は東京メトロ銀座線・稲荷町駅、1番出口から徒歩1分圏内のアクセス抜群の立地…
図面 階数 面積 賃料(共益費込)
(坪単価)
保証金/敷金 礼金 入居可能日
2階 G 32.62坪
(109.25m2)
(未公開) 6ヶ月 2026/5/1
5階 G 32.57坪
(107.68m2)
(未公開) 6ヶ月 2026/5/11
古茂田ビルの外観
物件番号:017555
更新日:2026/1/20
台東区台東2-20-13
【竣工】1991/7
【階建て】地上7F
【最寄駅】
新御徒町駅6分
仲御徒町駅9分
御徒町駅10分
【耐震】 新耐震
【基準階】 30.85坪 【エントランス】 全日開放(24h)
【駐車場】 有り 【エレベーター】 1基
新御徒町駅利用、台東エリアの賃貸オフィスビルです。古茂田ビルは東京都台東区台東2-20-13に位置する賃貸オフィスビルです。つくばエクスプレス新御徒町駅および都営大江戸線新御徒町駅から徒歩…
図面 階数 面積 賃料(共益費込)
(坪単価)
保証金/敷金 礼金 入居可能日
4階 G 30.85坪
(101.99m2)
370,200
(12,000)
2,961,600
(8ヶ月)
1.0ヶ月 即日
トスビルの外観
物件番号:083456
更新日:2026/2/10
台東区東上野4-20-2
【竣工】1991/1
【階建て】地上7F 、地下1F
【最寄駅】
上野駅5分
【耐震】 新耐震
【基準階】 【エントランス】 全日開放(24h)
【駐車場】 無し 【エレベーター】 1基
トスビルは、東京都台東区東上野4-20-2に位置する地上7階・地下1階建てのオフィスビルです。1991年に竣工し、構造はS造(鉄骨造)を採用しています。新耐震基準に適合して建てられているため、地…
図面 階数 面積 賃料(共益費込)
(坪単価)
保証金/敷金 礼金 入居可能日
図面
B1-7階 G 84.33坪
(278.78m2)
1,264,950
(15,000)
3,794,850
(3ヶ月)
1.0ヶ月 即日
コスモス浅草橋酒井ビルの外観
物件番号:017744
更新日:2026/1/13
台東区浅草橋1-32-6
【竣工】1990/3
【階建て】地上8F
【最寄駅】
浅草橋駅2分
馬喰町駅8分
蔵前駅10分
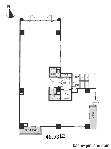
【耐震】 新耐震
【基準階】 48.93坪 【エントランス】 全日開放(制限有)
【駐車場】 有り 【エレベーター】 1基
コスモス浅草橋酒井ビルは、東京都台東区浅草橋1丁目32-6に位置するオフィスビルです。最寄り駅は都営浅草線「浅草橋駅」から徒歩2分、JR総武線「浅草橋駅」からも徒歩3分と、抜群のアクセスが特…
図面 階数 面積 賃料(共益費込)
(坪単価)
保証金/敷金 礼金 入居可能日
2階 G 48.93坪
(161.75m2)
782,880
(16,000)
6,263,040
(8ヶ月)
即日
上野中央ビルの外観
物件番号:016829
更新日:2026/2/2
台東区上野7-11-6
【竣工】1990/2
【階建て】地上8F
【最寄駅】
上野駅3分
【耐震】 新耐震
【基準階】 67.34坪 【エントランス】 オートロック
【駐車場】 無し 【エレベーター】 1基
上野中央ビルは、東京都台東区上野7丁目に立地する地上8階建てのオフィスビルで、1990年2月に竣工しました。構造はS造(鉄骨造)で建てられており、新耐震基準に適合しているため、耐震性に優れ…
図面 階数 面積 賃料(共益費込)
(坪単価)
保証金/敷金 礼金 入居可能日
8階 G 70.31坪
(232.42m2)
1,163,637
(16,550)
4,654,548
(4ヶ月)
1.0ヶ月 即日
天野ビルの外観
物件番号:002202
更新日:2026/1/30
台東区上野3-7-5
【竣工】1989/11
【階建て】地上8F
【最寄駅】
御徒町駅4分
末広町駅4分
上野御徒町駅4分
【耐震】 新耐震
【基準階】 51.16坪 【エントランス】 平日のみ開放
【駐車場】 有り 【エレベーター】 1基
天野ビルは、東京都台東区上野3-7-5に位置する、地上8階建てのオフィスビルです。1989年11月に竣工した建物で、新耐震基準に対応しており、地震対策の面でも一定の安心感があります。構造はSRC造…
図面 階数 面積 賃料(共益費込)
(坪単価)
保証金/敷金 礼金 入居可能日
5階 G 43.57坪
(144.03m2)
(未公開) 12ヶ月 即日
成宝ビルの外観
物件番号:017412
更新日:2026/1/14
台東区東上野2-21-3
【竣工】1989/9
【階建て】地上7F 、地下1F
【最寄駅】
上野駅3分
【耐震】 新耐震
【基準階】 110.04坪 【エントランス】 平日・土開放
【駐車場】 有り 【エレベーター】 1基
複数路線が利用可能で交通アクセス良好です。角地に位置しているので視認性に優れています。ワンフロア・ワンテナントなので使い勝手の良い貸室です。
図面 階数 面積 賃料(共益費込)
(坪単価)
保証金/敷金 礼金 入居可能日
6階 G 41.45坪
(137.05m2)
621,750
(15,000)
3,979,200
(8ヶ月)
2.0ヶ月 2026/2
中旬
ル・ソレイユの外観
物件番号:031486
更新日:2026/1/20
台東区池之端2-7-18
【竣工】1989/4
【階建て】地上10F
【最寄駅】
根津駅2分
京成上野駅11分
上野駅14分
【耐震】 新耐震
【基準階】 43.68坪 【エントランス】
【駐車場】 無し 【エレベーター】 1基
ル・ソレイユは、東京都台東区池之端2丁目7-18に位置するオフィスビルです。最寄り駅は東京メトロ千代田線「根津駅」から徒歩2分という抜群の立地で、アクセスの利便性が高く、通勤や営業活動、…
図面 階数 面積 賃料(共益費込)
(坪単価)
保証金/敷金 礼金 入居可能日
1階 G 31.92坪
(105.52m2)
492,000
(15,413)
4,540,000
(10ヶ月)
1.0ヶ月 即日
1-2階 G 75.60坪
(249.92m2)
1,300,000
(17,195)
11,800,000
(10ヶ月)
1.0ヶ月 即日

※取引態様:媒介
※フロア図面と現況が異なる場合は現況を優先いたします。
※貸室内部の写真・貸室からの景色に関しては、現在の募集フロアと異なる場合がございます。

総数:62棟(98件)

(さいたま)の賃料相場

(さいたま)エリアの平均賃料

で募集している物件の、1坪あたりの賃料(共益費を含む)の平均価格です。
数値の右側にある矢印は、一週間前の数値と比較した結果を表しています。
賃料価格は毎日集計をしている最新の値です。

  • 2040 未調査
  • 4060 未調査
  • 60100 未調査
  • 100坪以上 未調査

(さいたま)エリアの募集賃料

の1坪あたりの賃料(共益費を含む)価格帯ごとの募集物件数です。
表の数値をクリックすると募集物件の一覧表が表示します。

【2026/02/12更新】