さいたまの貸事務所から希望エリアの物件を検索!
0120-33-9533
ご相談、お問合せ

お問合せはこちら

※ご入居を検討されているお客様向けの情報サイトです。
※駐車場単体・管理会社・テナントに関するお問合せにはお応えいたしかねます。
ご相談、お問合せ
0120-33-9533
※ご入居を検討されているお客様向けの情報サイトです。
※駐車場単体・管理会社・テナントに関するお問合せにはお応えいたしかねます。

の貸事務所・賃貸オフィス一覧

 
 

総数:141棟(284件)
スイテ新横浜の外観
物件番号:082167
更新日:2026/1/21
横浜市港北区新横浜3-7-8
【竣工】2025/9
【階建て】地上14F 、地下1F
【最寄駅】
新横浜駅2分
【耐震】 新耐震
【基準階】 195.61坪 【エントランス】 平日のみ開放
【駐車場】 有り 【エレベーター】 4基
「スイテ新横浜」は、2025年9月に竣工予定の新横浜エリアの新たなランドマークタワーです。地上14階・地下1階建てのハイグレードオフィスビルとして誕生し、スタイリッシュなガラス張りの外観と…
図面 階数 面積 賃料(共益費込)
(坪単価)
保証金/敷金 礼金 入居可能日
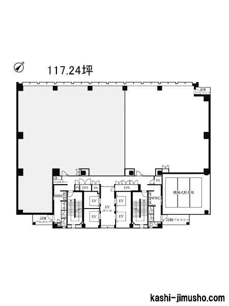
2階 N 117.24坪
(387.57m2)
(未公開) (未公開) 相談
3階 N 78.38坪
(259.11m2)
(未公開) (未公開) 相談
4階 N 195.62坪
(646.71m2)
(未公開) (未公開) 即日
5階 N 195.62坪
(646.71m2)
(未公開) (未公開) 即日
8階 N 195.62坪
(646.71m2)
(未公開) (未公開) 即日
9階 N 195.62坪
(646.71m2)
(未公開) (未公開) 即日
10階 N 78.38坪
(259.13m2)
(未公開) (未公開) 即日

7件を確認する

M CRESTの外観
物件番号:083354
更新日:2026/2/5
品川区西五反田2-7-11
【竣工】2025/7
【階建て】地上11F 、地下1F
【最寄駅】
五反田駅1分
【耐震】 新耐震
【基準階】 75.97坪 【エントランス】 オートロック
【駐車場】 有り 【エレベーター】 2基
M CRESTは、東京都品川区西五反田2-7-11に位置する地上11階・地下1階建てのオフィスビルです。2025年7月に竣工し、RC造(鉄筋コンクリート造)で建てられています。新耐震基準にも適合しているた…
図面 階数 面積 賃料(共益費込)
(坪単価)
保証金/敷金 礼金 入居可能日
2階 G 74.56坪
(246.48m2)
(未公開) 12ヶ月 即日
3階 G 75.97坪
(251.14m2)
(未公開) 12ヶ月 即日
4階 G 75.97坪
(251.14m2)
(未公開) 12ヶ月 即日
5階 G 75.97坪
(251.14m2)
(未公開) 12ヶ月 即日
6階 G 75.97坪
(251.14m2)
(未公開) 12ヶ月 即日
8階 G 75.97坪
(251.14m2)
(未公開) 12ヶ月 即日

6件を確認する

品川区大井二丁目一棟ビルの外観
物件番号:083555
更新日:2026/1/16
品川区大井2-18
【竣工】2025/2
【階建て】地上3F
【最寄駅】
西大井駅8分
大井町駅10分
【耐震】 新耐震
【基準階】 【エントランス】
【駐車場】 有り 【エレベーター】
大井町駅・西大井駅が徒歩圏内、複数路線が利用可能です。2025年2月竣工、新耐震基準の綺麗な建物です。駐車スペースがあるので、車利用の方にもおすすめです。
図面 階数 面積 賃料(共益費込)
(坪単価)
保証金/敷金 礼金 入居可能日
1-3階 G 65.28坪
(215.80m2)
1,000,000
(15,319)
6,000,000
(6ヶ月)
1.0ヶ月 即日
ウィラ大井 オフィス棟の外観
物件番号:081630
更新日:2026/2/2
品川区勝島1-6-22
【竣工】2024/3
【階建て】地上8F
【最寄駅】
大井競馬場前駅2分
立会川駅9分
【耐震】 新耐震
【基準階】 264.13坪 【エントランス】 平日のみ開放
【駐車場】 無し 【エレベーター】 2基
角地に位置しているので視認性に優れています。管理の行き届いた清潔感のあるエントランスです。トイレは室外で男女別にわかれています。
図面 階数 面積 賃料(共益費込)
(坪単価)
保証金/敷金 礼金 入居可能日
7階 G 264.14坪
(873.19m2)
(未公開) 12ヶ月 即日
PMO五反田の外観
物件番号:070406
更新日:2026/2/6
品川区西五反田8-1-3
【竣工】2019/7
【階建て】地上12F
【最寄駅】
大崎広小路駅2分
五反田駅5分
大崎駅9分
【耐震】 新耐震+制震
【基準階】 47.65坪 【エントランス】 オートロック
【駐車場】 有り 【エレベーター】 2基
PMO五反田は、品川区西五反田8-1-8にある賃貸オフィスビルです。最寄駅は、東急池上線の大崎広小路駅です。徒歩2分圏内でアクセス可能な好立地です。徒歩5分圏内でJR山手線・都営浅草線の五反田…
図面 階数 面積 賃料(共益費込)
(坪単価)
保証金/敷金 礼金 入居可能日
3階 G 47.73坪
(157.79m2)
(未公開) (未公開) 2026/2/11
大崎ウィズタワーの外観
物件番号:062697
更新日:2026/2/4
品川区大崎2-11-1
【竣工】2014/2
【階建て】地上24F 、地下2F
【最寄駅】
大崎駅4分
【耐震】 新耐震+制震
【基準階】 271.99坪 【エントランス】 平日・土開放
【駐車場】 有り 【エレベーター】 9基
大崎ウィズタワーは、品川区大崎2-11-1にある物件です。JR山手線・JR埼京線・りんかい線の大崎駅が最寄駅です。ペデストリアンデッキ直結で徒歩4分圏内でアクセス可能です。都内主要エリアやター…
図面 階数 面積 賃料(共益費込)
(坪単価)
保証金/敷金 礼金 入居可能日
5階 N 154.71坪
(511.44m2)
(未公開) 12ヶ月 2026/3/1
新横浜SHビルの外観
物件番号:082746
更新日:2026/1/19
横浜市港北区新横浜3-9-3
【竣工】2009/1
【階建て】地上11F 、地下2F
【最寄駅】
新横浜駅4分
【耐震】 新耐震
【基準階】 138.62坪 【エントランス】 オートロック
【駐車場】 有り 【エレベーター】 2基
新横浜SHビルは、神奈川県横浜市港北区新横浜に位置する地上11階建て、地下2階建ての中規模オフィスビルです(住所:新横浜3-9-3)。交通アクセスが非常に優れており、東急新横浜線、新横浜駅、…
図面 階数 面積 賃料(共益費込)
(坪単価)
保証金/敷金 礼金 入居可能日
7階 N 138.62坪
(458.25m2)
(未公開) 12ヶ月 即日
8階 N 138.62坪
(458.25m2)
(未公開) 12ヶ月 即日
アリーナタワーの外観
物件番号:051814
更新日:2026/1/22
横浜市港北区新横浜3-1-9
【竣工】2008/5
【階建て】地上15F 、地下1F
【最寄駅】
新横浜駅6分
【耐震】 新耐震
【基準階】 425.42坪 【エントランス】 平日のみ開放
【駐車場】 有り 【エレベーター】 7基
新横浜エリアに位置するアリーナタワーは、横浜市港北区新横浜3-1-9にあるハイグレードオフィスビルです。JR横浜線および東海道新幹線の新横浜駅、さらに横浜市営地下鉄ブルーラインの新横浜駅か…
図面 階数 面積 賃料(共益費込)
(坪単価)
保証金/敷金 礼金 入居可能日
5階 N 151.64坪
(501.29m2)
(未公開) 12ヶ月 相談
7階 N 145.32坪
(480.42m2)
(未公開) 12ヶ月 相談
9階 N 223.37坪
(735.80m2)
(未公開) 12ヶ月 即日
LIVMOライジングビルの外観
物件番号:050320
更新日:2026/1/22
横浜市港北区新横浜3-19-1
【竣工】2008/3
【階建て】地上11F 、地下1F
【最寄駅】
新横浜駅2分
【耐震】 新耐震+免震
【基準階】 203.22坪 【エントランス】 平日・土開放
【駐車場】 有り 【エレベーター】 3基
新横浜エリア、基準階面積約203坪の大型オフィスビルです。LIVMOライジングビルは、横浜市港北区新横浜3-19-1に位置するオフィスビルです。最寄り駅のブルーライン新横浜駅、相鉄新横浜線、東急…
図面 階数 面積 賃料(共益費込)
(坪単価)
保証金/敷金 礼金 入居可能日
6階 N 203.25坪
(671.90m2)
(未公開) 12ヶ月 2026/5/1
11階 N 203.25坪
(671.90m2)
(未公開) 12ヶ月 2026/5/1
大森TSビルの外観
物件番号:081769
更新日:2026/1/15
品川区南大井6-6-5
【竣工】2008/1
【階建て】地上4F
【最寄駅】
大森駅7分
大森海岸駅12分
【耐震】 新耐震
【基準階】 44.59坪 【エントランス】 オートロック
【駐車場】 - 【エレベーター】 1基
大森TSビルは、東京都品川区南大井6丁目に位置するスタイリッシュで機能的なオフィスビルです。JR京浜東北線「大森駅」から徒歩7分、京急本線「大森海岸駅」からも徒歩12分と、複数路線が利用可…
図面 階数 面積 賃料(共益費込)
(坪単価)
保証金/敷金 礼金 入居可能日
3階 G 44.59坪
(147.43m2)
800,000
(17,941)
3,000,000
(6ヶ月)
1.0ヶ月 即日
SD16ビルの外観
物件番号:051646
更新日:2026/1/28
横浜市港北区新横浜3-8-8
【竣工】2007/10
【階建て】地上11F 、地下1F
【最寄駅】
新横浜駅3分
【耐震】 新耐震
【基準階】 107.21坪 【エントランス】 オートロック
【駐車場】 有り 【エレベーター】 2基
日総第16ビルは、閑静で整った街並みが人気の新横浜エリアに位置する賃貸オフィスビルです。物件は横浜市港北区新横浜3-8-8にあり、ブルーラインの新横浜駅まで徒歩4分、JR東海道新幹線およびJR…
図面 階数 面積 賃料(共益費込)
(坪単価)
保証金/敷金 礼金 入居可能日
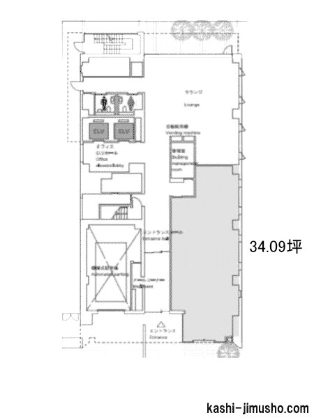
1階 G 34.09坪
(112.69m2)
(未公開) 12ヶ月 2026/6
上旬
品川シーサイドサウスタワーの外観
物件番号:041840
更新日:2026/2/9
品川区東品川4-12-1
【竣工】2004/8
【階建て】地上18F 、地下1F
【最寄駅】
品川シーサイド駅3分
青物横丁駅10分
【耐震】 新耐震+制震
【基準階】 596.44坪 【エントランス】 平日のみ開放
【駐車場】 有り 【エレベーター】 13基
品川区東品川4丁目にある、品川シーサイドサウスタワーです。最寄駅は、りんかい線の品川シーサイド駅です。徒歩3分圏内でアクセス可能です。京急本線の青物横丁駅も徒歩10分圏内でアクセス可能…
図面 階数 面積 賃料(共益費込)
(坪単価)
保証金/敷金 礼金 入居可能日
2階 N 85.00坪
(280.99m2)
(未公開) 12ヶ月 相談
2階 N 89.00坪
(294.22m2)
(未公開) 12ヶ月 相談
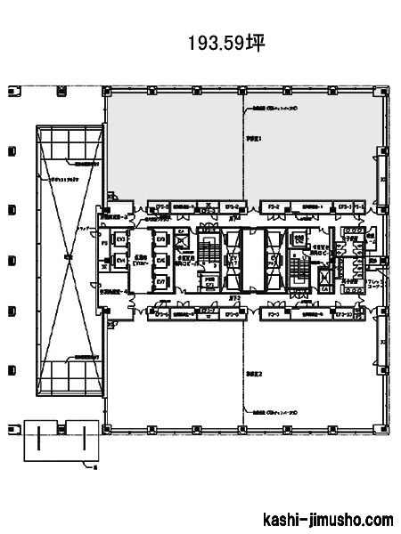
2階 N 193.59坪
(639.97m2)
(未公開) 12ヶ月 2026/5/1
2階 N 193.59坪
(639.97m2)
(未公開) 12ヶ月 即日
12階 N 133.04坪
(439.81m2)
(未公開) 12ヶ月 相談
12階 N 363.36坪
(1201.20m2)
(未公開) 12ヶ月 相談
12階 N 496.40坪
(1641.00m2)
(未公開) 12ヶ月 即日

7件を確認する

GRC品川イノベーションパークの外観
物件番号:041245
更新日:2026/1/20
品川区東品川4-12-2
【竣工】2004/8
【階建て】地上18F 、地下1F
【最寄駅】
品川シーサイド駅1分
青物横丁駅8分
【耐震】 新耐震+制震
【基準階】 434.08坪 【エントランス】 平日のみ開放
【駐車場】 有り 【エレベーター】 11基
品川シーサイドウエストタワーは、東京都品川区東品川4-12-2に位置する、アクセス便利な賃貸オフィスビルです。海岸通り沿いの角地に位置しており、視認性が高く、自然光が豊富に入ることが期待…
図面 階数 面積 賃料(共益費込)
(坪単価)
保証金/敷金 礼金 入居可能日
3階 N 129.82坪
(429.16m2)
(未公開) 12ヶ月 2026/5/1
13階 N 434.08坪
(1434.99m2)
(未公開) 12ヶ月 2026/4
予定
14階 N 434.08坪
(1434.99m2)
(未公開) 12ヶ月 2026/4
予定
15階 N 434.08坪
(1434.99m2)
(未公開) 12ヶ月 2026/4
予定
16階 N 434.08坪
(1434.99m2)
(未公開) 12ヶ月 2026/4
17階 N 434.08坪
(1434.99m2)
(未公開) 12ヶ月 2026/4
予定

6件を確認する

品川シーサイドパークタワーの外観
物件番号:062570
更新日:2026/2/3
品川区東品川4-12-4
【竣工】2003/7
【階建て】地上23F 、地下2F
【最寄駅】
品川シーサイド駅1分
青物横丁駅7分
【耐震】 新耐震+制震
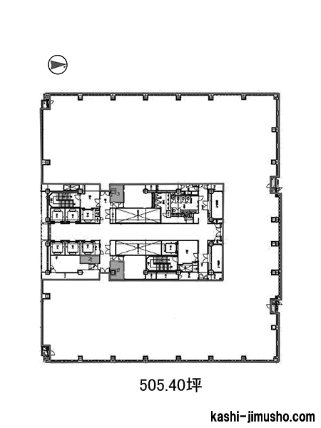
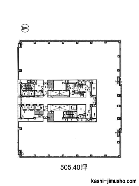
【基準階】 505.40坪 【エントランス】 全日開放(制限有)
【駐車場】 有り 【エレベーター】 13基
品川区東品川4丁目にある、品川シーサイドパークタワーです。最寄駅は、りんかい線の品川シーサイド駅です。徒歩1分圏内で利用可能です。品川シーサイド駅近くで、アクセス抜群の立地です。京急…
図面 階数 面積 賃料(共益費込)
(坪単価)
保証金/敷金 礼金 入居可能日
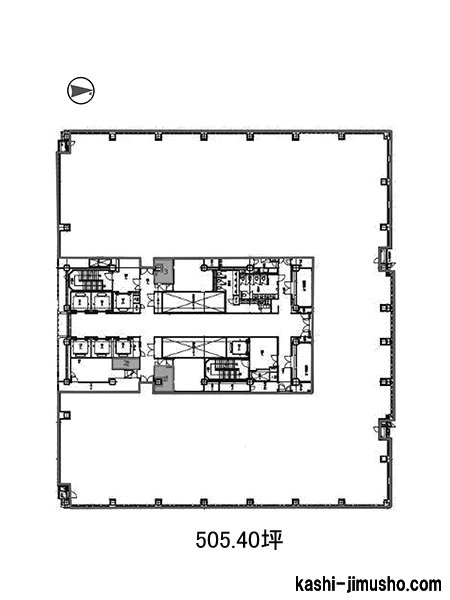
3階 N 505.40坪
(1670.75m2)
(未公開) 12ヶ月 2027/1
4階 N 505.40坪
(1670.75m2)
(未公開) 12ヶ月 2026/10/1
5階 N 505.40坪
(1670.75m2)
(未公開) 12ヶ月 2026/10/1
6階 N 505.40坪
(1670.75m2)
(未公開) 12ヶ月 2027/1/1

4件を確認する

品川シーサイドTSタワーの外観
物件番号:036568
更新日:2026/2/2
品川区東品川4-12-3
【竣工】2003/7
【階建て】地上23F 、地下2F
【最寄駅】
品川シーサイド駅1分
青物横丁駅8分
【耐震】 新耐震+制震
【基準階】 446.49坪 【エントランス】 オートロック
【駐車場】 有り 【エレベーター】 12基
品川シーサイドTSタワーは、品川区東品川4-12-3に位置する大型賃貸オフィスビルです。最寄りのりんかい線「品川シーサイド駅」から徒歩1分と、駅近の好立地にあります。さらに、京急本線「青物横…
図面 階数 面積 賃料(共益費込)
(坪単価)
保証金/敷金 礼金 入居可能日
図面
5階 N 225.83坪
(746.55m2)
(未公開) 12ヶ月 即日
12階 N 446.49坪
(1476.00m2)
(未公開) 12ヶ月 相談
17階 N 468.64坪
(1549.20m2)
(未公開) 12ヶ月 即日
18階 N 468.64坪
(1549.20m2)
(未公開) 12ヶ月 即日
19階 N 468.64坪
(1549.20m2)
(未公開) 12ヶ月 即日

5件を確認する

目黒東急ビルの外観
物件番号:037302
更新日:2026/2/4
品川区上大崎2-13-17
【竣工】2003/1(改修:2015)
【階建て】地上7F
【最寄駅】
目黒駅4分
【耐震】 新耐震
【基準階】 343.93坪 【エントランス】
【駐車場】 有り 【エレベーター】 3基
「目黒東急ビル」は、東京都品川区上大崎2-13-17に位置する、地上7階建ての現代的かつ機能的なオフィスビルです。2003年1月に竣工された本物件は、鉄骨造(S造)で建てられ、新耐震基準にも適合…
図面 階数 面積 賃料(共益費込)
(坪単価)
保証金/敷金 礼金 入居可能日
6階 N 343.93坪
(1136.96m2)
(未公開) 12ヶ月 2026/5/1
品川シーサイドキャナルタワーの外観
物件番号:040460
更新日:2026/1/17
品川区東品川4-12-6
【竣工】2002/9
【階建て】地上22F 、地下2F
【最寄駅】
品川シーサイド駅1分
青物横丁駅9分
【耐震】 新耐震+制震
【基準階】 403.31坪 【エントランス】 平日のみ開放
【駐車場】 有り 【エレベーター】 13基
品川シーサイドキャナルタワーは、品川区東品川4-12-6に位置するハイグレードな賃貸オフィスビルです。最寄りのりんかい線「品川シーサイド駅」まで徒歩1分と、駅近の好立地にあります。さらに、…
図面 階数 面積 賃料(共益費込)
(坪単価)
保証金/敷金 礼金 入居可能日
8階 N 96.84坪
(320.13m2)
(未公開) 12ヶ月 即日
11階 N 200.08坪
(661.42m2)
(未公開) 12ヶ月 2026/6
予定
13階 N 200.08坪
(661.42m2)
(未公開) 12ヶ月 即日
日昇ビルの外観
物件番号:022806
更新日:2026/2/3
品川区大崎1-17-6
【竣工】2001/12
【階建て】地上9F
【最寄駅】
大崎駅4分
【耐震】 新耐震
【基準階】 42.52坪 【エントランス】 オートロック
【駐車場】 有り 【エレベーター】 1基
日昇ビルは、品川区大崎1-17-6に位置し、2001年に竣工した清潔感あふれるグレー基調の外観の賃貸オフィスビルです。このビルは、JR山手線、JR埼京線、りんかい線が乗り入れる大崎駅から徒歩4分と…
図面 階数 面積 賃料(共益費込)
(坪単価)
保証金/敷金 礼金 入居可能日
2階 G 42.52坪
(140.56m2)
630,000
(14,817)
6,000,000
(10ヶ月)
1.0ヶ月 即日
3階 G 42.52坪
(140.56m2)
630,000
(14,817)
6,000,000
(10ヶ月)
1.0ヶ月 即日
アイシスパークビルの外観
物件番号:083601
更新日:2026/1/28
横浜市港北区新横浜2-17-24
【竣工】1999/3
【階建て】地上3F
【最寄駅】
新横浜駅6分
【耐震】 新耐震
【基準階】 27.67坪 【エントランス】
【駐車場】 有り 【エレベーター】
東海道新幹線・JR横浜線・ブルーライン・相鉄線が使える新横浜駅です!事務所部分は2階と3階の区画のみ。一棟貸しのように使える物件です!タワーパーキング併設なので、営業車を利用する企業様へ特…
図面 階数 面積 賃料(共益費込)
(坪単価)
保証金/敷金 礼金 入居可能日
2-3階 G 55.07坪
(182.05m2)
770,000
(13,982)
5,280,000
(8ヶ月)
1.0ヶ月 2026/1
予定
TANOSIO新横浜の外観
物件番号:039550
更新日:2026/2/9
横浜市港北区新横浜2-5-16
【竣工】1998/9
【階建て】地上9F 、地下3F
【最寄駅】
新横浜駅2分
【耐震】 新耐震
【基準階】 142.64坪 【エントランス】 全日開放(24h)
【駐車場】 有り 【エレベーター】 3基
tanosio shin-yokohamaは、神奈川県横浜市港北区新横浜に位置する地上9階建て、地下3階建てのオフィスビルです。新横浜エリアでも特に利便性の高い場所にあり、ブルーライン新横浜駅から徒歩2分…
図面 階数 面積 賃料(共益費込)
(坪単価)
保証金/敷金 礼金 入居可能日
6階 G 142.64坪
(471.54m2)
(未公開) 10ヶ月 相談
7階 G 142.64坪
(471.54m2)
(未公開) 10ヶ月 即日
8階 G 142.64坪
(471.54m2)
(未公開) 10ヶ月 相談
9階 G 120.96坪
(399.87m2)
(未公開) 10ヶ月 即日

4件を確認する

ミスミコーチ事務棟の外観
物件番号:063829
更新日:2026/2/6
横浜市港北区新横浜1-4-7
【竣工】1997/11
【階建て】地上4F
【最寄駅】
新横浜駅6分
【耐震】 新耐震
【基準階】 69.70坪 【エントランス】 平日のみ開放
【駐車場】 有り 【エレベーター】 1基
車でのアクセスが良い立地です。交差点角で採光の良い明るい貸室内です。平置きの駐車場があり、お車が必要な業種にも対応可能です。
図面 階数 面積 賃料(共益費込)
(坪単価)
保証金/敷金 礼金 入居可能日
3階 G 69.70坪
(230.41m2)
627,300
(9,000)
3,136,500
(5ヶ月)
1.0ヶ月 相談
オノビルの外観
物件番号:054564
更新日:2026/1/19
品川区大崎5-4-2
【竣工】1996/12
【階建て】地上5F
【最寄駅】
五反田駅5分
【耐震】 新耐震
【基準階】 122.00坪 【エントランス】 オートロック
【駐車場】 有り 【エレベーター】 1基
オノビルは、東京都品川区大崎5丁目に位置する地上5階建てのオフィスビルです。1996年12月に竣工し、構造は鉄筋コンクリート造(RC造)で建てられています。新耐震基準に適合しているので、安心…
図面 階数 面積 賃料(共益費込)
(坪単価)
保証金/敷金 礼金 入居可能日
3階 G 122.10坪
(403.63m2)
2,074,000
(16,986)
24,888,000
(12ヶ月)
2026/4
予定
リードシー目黒不動前ビルの外観
物件番号:073085
更新日:2026/2/4
品川区西五反田3-15-6
【竣工】1996/10
【階建て】地上8F
【最寄駅】
不動前駅5分
目黒駅12分
【耐震】 新耐震
【基準階】 39.45坪 【エントランス】 全日開放(24h)
【駐車場】 無し 【エレベーター】 1基
リードシー目黒不動前ビルは、東京都品川区西五反田3-15-6に位置する魅力的なオフィスビルです。交通アクセスが非常に便利で、東急目黒線不動前駅から徒歩5分圏内、JR山手線、東急目黒線、東京メ…
図面 階数 面積 賃料(共益費込)
(坪単価)
保証金/敷金 礼金 入居可能日
2階 G 39.45坪
(130.44m2)
907,350
(23,000)
即日
THE PORTAL SHIN-YOKOHAMAの外観
物件番号:058832
更新日:2026/1/19
横浜市港北区新横浜2-14-9
【竣工】1996/3
【階建て】地上9F
【最寄駅】
新横浜駅6分
【耐震】 新耐震
【基準階】 86.62坪 【エントランス】 オートロック
【駐車場】 有り 【エレベーター】 1基
THE PORTAL SHIN-YOKOHAMAは、神奈川県横浜市港北区新横浜2丁目に位置する地上9階建ての賃貸オフィスビルです。1996年3月に竣工し、構造は鉄骨鉄筋コンクリート造(SRC造)です。新耐震基準に適…
図面 階数 面積 賃料(共益費込)
(坪単価)
保証金/敷金 礼金 入居可能日
2階 G 69.89坪
(231.04m2)
(未公開) 6ヶ月 2026/1
予定
3階 G 69.95坪
(231.24m2)
(未公開) 6ヶ月 即日
4階 G 86.62坪
(286.35m2)
(未公開) 6ヶ月 即日
5階 G 86.62坪
(286.35m2)
(未公開) 6ヶ月 即日
6階 G 87.03坪
(287.71m2)
(未公開) 6ヶ月 即日
7階 G 41.02坪
(135.60m2)
(未公開) 4ヶ月 即日
7階 G 46.00坪
(152.07m2)
(未公開) 4ヶ月 即日
8階 G 41.02坪
(135.63m2)
(未公開) 4ヶ月 即日
8階 G 46.00坪
(152.08m2)
(未公開) 4ヶ月 即日
9階 G 33.74坪
(111.54m2)
(未公開) 4ヶ月 即日

10件を確認する

アセンド目黒駅前ビルの外観
物件番号:022403
更新日:2026/2/9
品川区上大崎2-15-17
【竣工】1996/2
【階建て】地上7F 、地下1F
【最寄駅】
目黒駅1分
【耐震】 新耐震
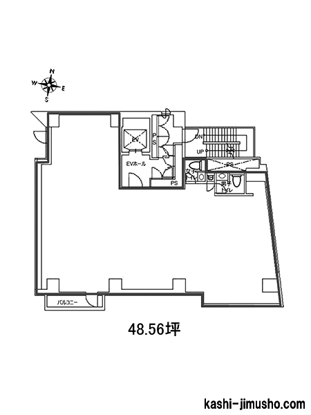
【基準階】 48.56坪 【エントランス】 全日開放(制限有)
【駐車場】 無し 【エレベーター】 1基
駅前!来店型のオフィス・店舗に最適です。機械警備・光ケーブルで設備の整ったオフィスです。
図面 階数 面積 賃料(共益費込)
(坪単価)
保証金/敷金 礼金 入居可能日
NEW5階 G 48.56坪
(160.53m2)
(未公開) 12ヶ月 2026/7/1
NEW6階 G 48.56坪
(160.53m2)
(未公開) 12ヶ月 2026/7/1
プライム新横浜ビルの外観
物件番号:038630
更新日:2026/2/3
横浜市港北区新横浜2-3-19
【竣工】1995/4
【階建て】地上10F 、地下2F
【最寄駅】
新横浜駅3分
【耐震】 新耐震
【基準階】 255.20坪 【エントランス】 全日開放(制限有)
【駐車場】 有り 【エレベーター】 3基
プライム新横浜ビルは、最寄駅は、JR横浜線・JR東海道新幹線・ブルーラインの新横浜駅です。徒歩3分圏内でアクセス可能です。JR東海道新幹線の利用で、出張等のビジネスシーンにおいて便利な環境…
図面 階数 面積 賃料(共益費込)
(坪単価)
保証金/敷金 礼金 入居可能日
5階 N 128.00坪
(423.14m2)
(未公開) 12ヶ月 即日
天王洲パークサイドビルの外観
物件番号:022894
更新日:2026/2/9
品川区東品川2-5-8
【竣工】1995/1(改修:2018)
【階建て】地上22F 、地下2F
【最寄駅】
天王洲アイル駅1分
【耐震】 新耐震
【基準階】 402.66坪 【エントランス】 平日のみ開放
【駐車場】 有り 【エレベーター】 10基
天王洲パークサイドビルは東京都品川区東品川2-5-8にある賃貸オフィスビルです。海岸通り角地に位置する視認性の高い立地です。天王洲アイルの大型インテリジェントビルです。開放的な空間のモダ…
図面 階数 面積 賃料(共益費込)
(坪単価)
保証金/敷金 礼金 入居可能日
9階 N 196.83坪
(650.68m2)
(未公開) 12ヶ月 2026/6/1
15階 N 95.49坪
(315.66m2)
(未公開) 12ヶ月 即日
SAISEI池田山ビルの外観
物件番号:043976
更新日:2026/2/9
品川区東五反田5-10-25
【竣工】1994/10
【階建て】地上5F
【最寄駅】
五反田駅2分
高輪台駅9分
【耐震】 新耐震
【基準階】 153.44坪 【エントランス】 平日のみ開放
【駐車場】 有り 【エレベーター】 2基
SAISEI池田山ビルは、東京都品川区東五反田5丁目10-25に位置する賃貸オフィスビルで、利便性と快適性を兼ね備えた優れた物件です。最寄り駅は都営浅草線の五反田駅で徒歩2分圏内、さらにJR山手線…
図面 階数 面積 賃料(共益費込)
(坪単価)
保証金/敷金 礼金 入居可能日
4階 G 64.10坪
(211.90m2)
(未公開) 10ヶ月 即日
4階 G 89.34坪
(295.34m2)
(未公開) 10ヶ月 即日
4階 G 153.44坪
(507.24m2)
3,068,800
(20,000)
30,688,000
(10ヶ月)
即日
プラスタリアビルの外観
物件番号:039569
更新日:2026/2/2
横浜市港北区新横浜3-1-4
【竣工】1994/4
【階建て】地上9F 、地下1F
【最寄駅】
新横浜駅7分
【耐震】 新耐震
【基準階】 155.35坪 【エントランス】 平日・土開放
【駐車場】 有り 【エレベーター】 2基
新横浜エリアに位置するプラスタリアビルは、横浜市港北区新横浜3-1-4にあるハイグレード・ハイスペックのオフィスビルです。この物件は、JR横浜線と東海道新幹線の新横浜駅、さらに横浜市営地下…
図面 階数 面積 賃料(共益費込)
(坪単価)
保証金/敷金 礼金 入居可能日
5階 G 74.43坪
(246.05m2)
(未公開) 12ヶ月 2026/4
中旬
ベネックス S-3の外観
物件番号:038889
更新日:2026/1/21
横浜市港北区新横浜3-20-8
【竣工】1994/3
【階建て】地上12F 、地下1F
【最寄駅】
新横浜駅4分
【耐震】 新耐震
【基準階】 201.66坪 【エントランス】 平日・土開放
【駐車場】 有り 【エレベーター】 3基
ベネックスS-3は、横浜市港北区新横浜3丁目に位置する、洗練された外観が目を引く賃貸オフィスビルです。全面ガラス張りの美しいファサードが特徴で、現代的で高級感のある佇まいは、来訪者に強…
図面 階数 面積 賃料(共益費込)
(坪単価)
保証金/敷金 礼金 入居可能日
10階 G 89.23坪
(294.98m2)
(未公開) 12ヶ月 2026/2/1
10階 G 94.98坪
(313.98m2)
(未公開) 12ヶ月 2026/2/1

※取引態様:媒介
※フロア図面と現況が異なる場合は現況を優先いたします。
※貸室内部の写真・貸室からの景色に関しては、現在の募集フロアと異なる場合がございます。

総数:141棟(284件)

(さいたま)の賃料相場

(さいたま)エリアの平均賃料

で募集している物件の、1坪あたりの賃料(共益費を含む)の平均価格です。
数値の右側にある矢印は、一週間前の数値と比較した結果を表しています。
賃料価格は毎日集計をしている最新の値です。

  • 2040 未調査
  • 4060 未調査
  • 60100 未調査
  • 100坪以上 未調査

(さいたま)エリアの募集賃料

の1坪あたりの賃料(共益費を含む)価格帯ごとの募集物件数です。
表の数値をクリックすると募集物件の一覧表が表示します。

【2026/02/12更新】